Myydään liiketilat - Hyvinkää
Hämeenkatu 8, Parantola, 05800 Hyvinkää #10814764
Tilava liiketila Hyvinkään keskustassa, hyvin hoidetusta taloyhtiöstä!
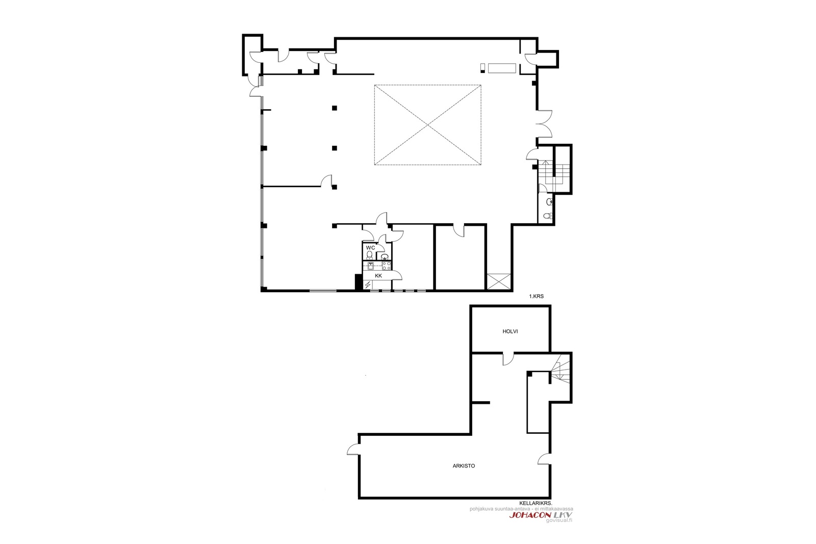
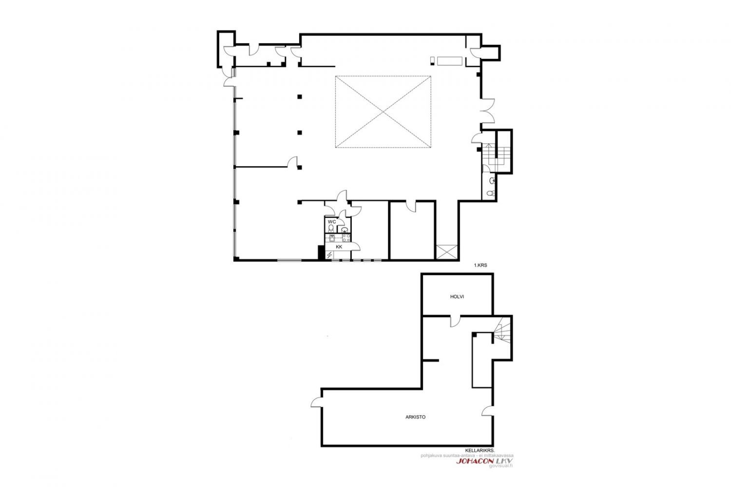
Tilat ovat kahdessa tasossa; maantasokerroksessa 340 m² ja kellarikerroksessa 99,5 m². Oma tontti ja lämmitysmuotona kaukolämpö.
Yhtiöltä vuokrattavissa autohalli- talli- ja pistokepaikkoja (isännöitsijä jakaa paikat jonotuksen perusteella).
Kauppakeskus Willa n. 40 m ja rautatieasemalle n. 400 m.
Lisätiedot: Jussi Hannukkala p. 0400 363 025.
Osoite
Hämeenkatu 8, 05800 Hyvinkää
Tilatyyppi
Liiketilaa
340 m2
Pohjapiirros
Myyntihinta
118000 €
Kiinteistö
Hyvinkään Kassatalo Oy
Muuta
Hoitovastike jakaantuu seuraavasti: LH 1a 2 082,92 €/kk ja 1b 432,58 €/kk. Kylmä (4,68 m³) lämmin vesi (10,30 m³) kulutuksen mukaan, laskutus 4 kertaa vuodessa.
Kaukolämpö sisältyy vastikkeeseen, taloussähkö kulutuksen mukaan.
Varainsiirtovero 1,5 % velattomasta kauppahinnasta.
Jääkaappi, allas ja sähköhella.
Julkisivujen ja vesikatteen korjauksen hankesuunnitelman teettäminen. Liikehuoneistojen ovien ja ikkunoiden kunnon tarkkailu ja tarvittaessa uusiminen. Huoneistoiden ulko-ovien kunnon tarkkailu ja tarvittaessa uusiminen. IV-kanavien nuohous ja säätö.
Kaukolämpö sisältyy vastikkeeseen, taloussähkö kulutuksen mukaan.
Varainsiirtovero 1,5 % velattomasta kauppahinnasta.
Jääkaappi, allas ja sähköhella.
Julkisivujen ja vesikatteen korjauksen hankesuunnitelman teettäminen. Liikehuoneistojen ovien ja ikkunoiden kunnon tarkkailu ja tarvittaessa uusiminen. Huoneistoiden ulko-ovien kunnon tarkkailu ja tarvittaessa uusiminen. IV-kanavien nuohous ja säätö.
Lisätietoa saneerauksista
Korjauspäiväkirja nähtävillä esittelyssä, mm: antenniverkon kunnostus 2004, ikkunoiden ja parvekeovien uusiminen kerroksiin 2005, sähkö- ja turvavalaistussaneeraus 2011, viemäriverkoston ja sadevesilinjojen sukitus 2021, käyttövesiputkistojen uusiminen ja huoneistokohtaiset vesimittarit 2021.
Vapautuu
Kysy
Kerros
1 / 3
Energiatehokkuusluokka
F2013
Ota yhteyttä

Johacon LKV
Riihimäenkatu 2
05900 HYVINKÄÄ
Näytä puhelinnumero
0400 353 920
Hannukkala Jussi
Yrittäjä, LKV
Näytä puhelinnumero
0400363025
Pyydä lisätietoa