Myydään toimistotilat, liiketilat, varastotilat - Helsinki
Hiihtomäentie 39, Herttoniemi, 00800 Helsinki #10814421
Myydään valoisa ja muunneltavissa oleva liiketila erinomaisella sijainnilla – oma tavarahissi, jolla pääsee tilasta omaan varastoon.
Osoite
Hiihtomäentie 39, 00800 Helsinki
Tilatyyppi
Toimistotilaa
186 m2
Liiketilaa
186 m2
Varastotilaa
186 m2
Yhteensä
186 m2
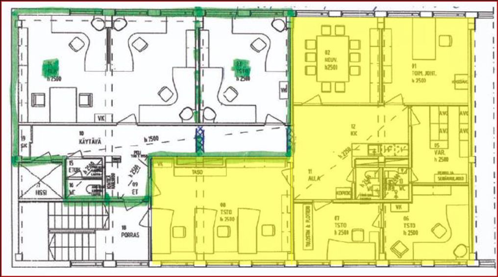
Tilajako
Jaettavissa
Myyntihinta
100 000
Kiinteistö
Tässä läpitalon tilassa yhdistyvät käytännöllisyys, valoisuus ja erinomainen logistiikka. Tilassa on kaikki valmiina yrittäjälle tai sijoittajalle – ja yhtiössä ei ole tiedossa suurempia remontteja.
Toimitilan tiedot:
- Pinta-ala: n. 186 m² + n. 20 m² varasto
- 3 WC:tä + suihku
- Avokeittiö
- Monikäyttöinen liiketila suositulla ja kehittyvällä Vanhan Herttoniemen alueella.
- Hyväkuntoinen, siisti ja heti käyttövalmis
- Oma 1000 kg tavarahissi, joka kulkee suoraan tilasta varastoon
- Lastauslaituri kellarissa – täydellinen esim. verkkokaupan tai tukkutoiminnan tarpeisiin
- Myös lastaaminen sisäänkäynnin eli kadunpuolelta tilaan johtavaan hissiin onnistuu.
- Muunneltavissa useaan käyttötarkoitukseen
Sijainti ja taloyhtiö:
- Arvostettu sijainti Siilitien metroaseman lähellä
- Alakerrassa myös bussipysäkki
- Alakerrassa Alepa, joka tuo kävijävirtaa ja tuo vuokratuottoa yhtiölle
- Hyvin hoidettu taloyhtiö, ei isompia remontteja tiedossa
Sopii loistavasti:
- Esim. verkkokauppaan, showroomiksi, logistiikkakeskukseksi
- Toimistoksi, studiotilaksi tai terapia-/valmennuskäyttöön
Myyntihinta: 150 000 € (Velaton hinta)
Velaton, selkeä ja tehokas kokonaisuus ilman piilokuluja.
Tämä tila on harvinainen yhdistelmä sijaintia, toimivuutta ja sijoituspotentiaalia.
Ota yhteyttä ja sovi esittely – kohde ei tule kauan olemaan markkinoilla!
Toimitilan tiedot:
- Pinta-ala: n. 186 m² + n. 20 m² varasto
- 3 WC:tä + suihku
- Avokeittiö
- Monikäyttöinen liiketila suositulla ja kehittyvällä Vanhan Herttoniemen alueella.
- Hyväkuntoinen, siisti ja heti käyttövalmis
- Oma 1000 kg tavarahissi, joka kulkee suoraan tilasta varastoon
- Lastauslaituri kellarissa – täydellinen esim. verkkokaupan tai tukkutoiminnan tarpeisiin
- Myös lastaaminen sisäänkäynnin eli kadunpuolelta tilaan johtavaan hissiin onnistuu.
- Muunneltavissa useaan käyttötarkoitukseen
Sijainti ja taloyhtiö:
- Arvostettu sijainti Siilitien metroaseman lähellä
- Alakerrassa myös bussipysäkki
- Alakerrassa Alepa, joka tuo kävijävirtaa ja tuo vuokratuottoa yhtiölle
- Hyvin hoidettu taloyhtiö, ei isompia remontteja tiedossa
Sopii loistavasti:
- Esim. verkkokauppaan, showroomiksi, logistiikkakeskukseksi
- Toimistoksi, studiotilaksi tai terapia-/valmennuskäyttöön
Myyntihinta: 150 000 € (Velaton hinta)
Velaton, selkeä ja tehokas kokonaisuus ilman piilokuluja.
Tämä tila on harvinainen yhdistelmä sijaintia, toimivuutta ja sijoituspotentiaalia.
Ota yhteyttä ja sovi esittely – kohde ei tule kauan olemaan markkinoilla!
Pysäköinti
Runsaasti kiekkopaikkoja
Vapautuu
Heti
Kerros
2 / 3
Energiatehokkuusluokka
H (ei luokitusta)
Näkyvällä paikalla
Jaettavissa
Ota yhteyttä
Arvo Premises Oy
Joakim Kukkonen
Osakas, Toimitilavälittäjä
Näytä puhelinnumero
040 555 8106
Seppo Pakarinen
Osakas, Kiinteistönvälittäjä. LKV, YKV, AKA
Näytä puhelinnumero
040-703 8000
Pyydä lisätietoa
