Vuokrataan - Naantali
Viestitie 4, 21100 Naantali #10814140
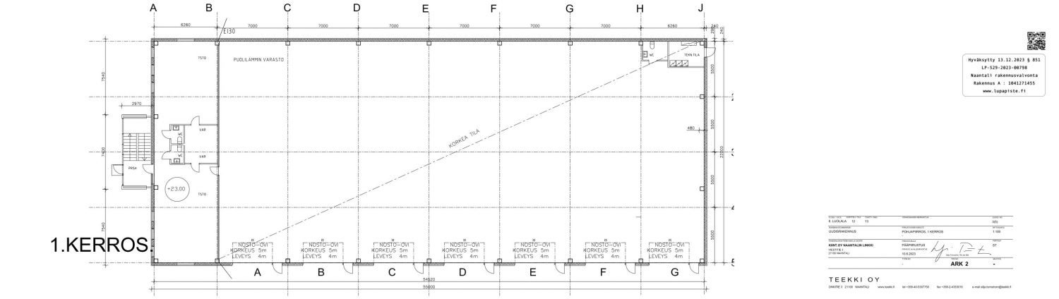
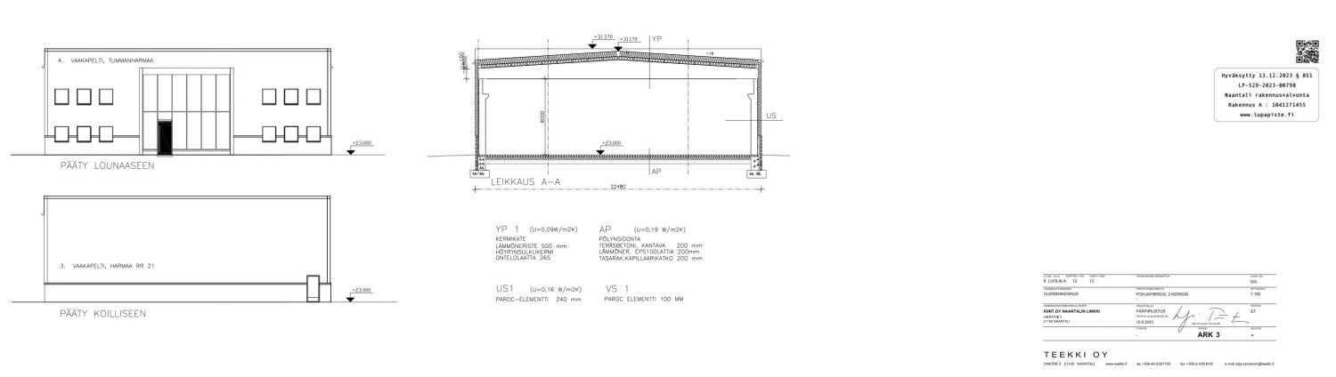
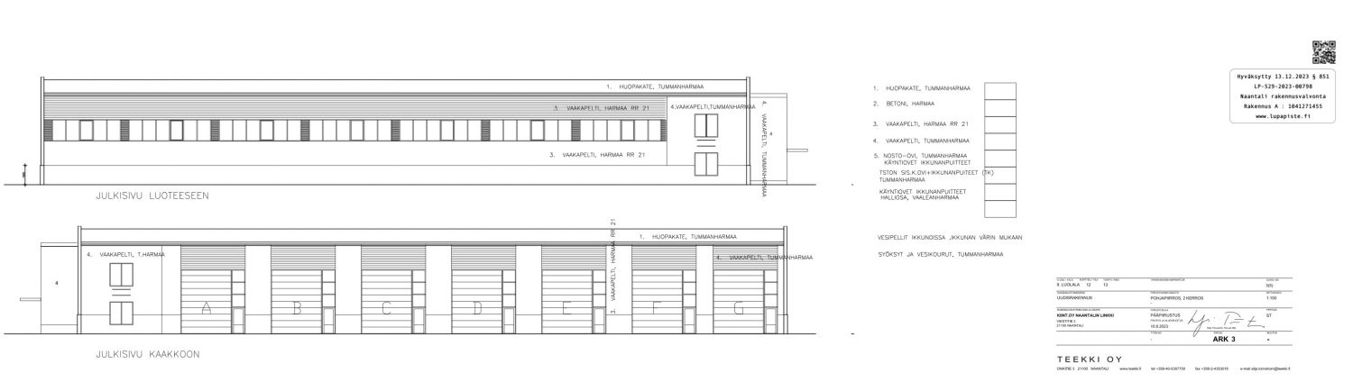
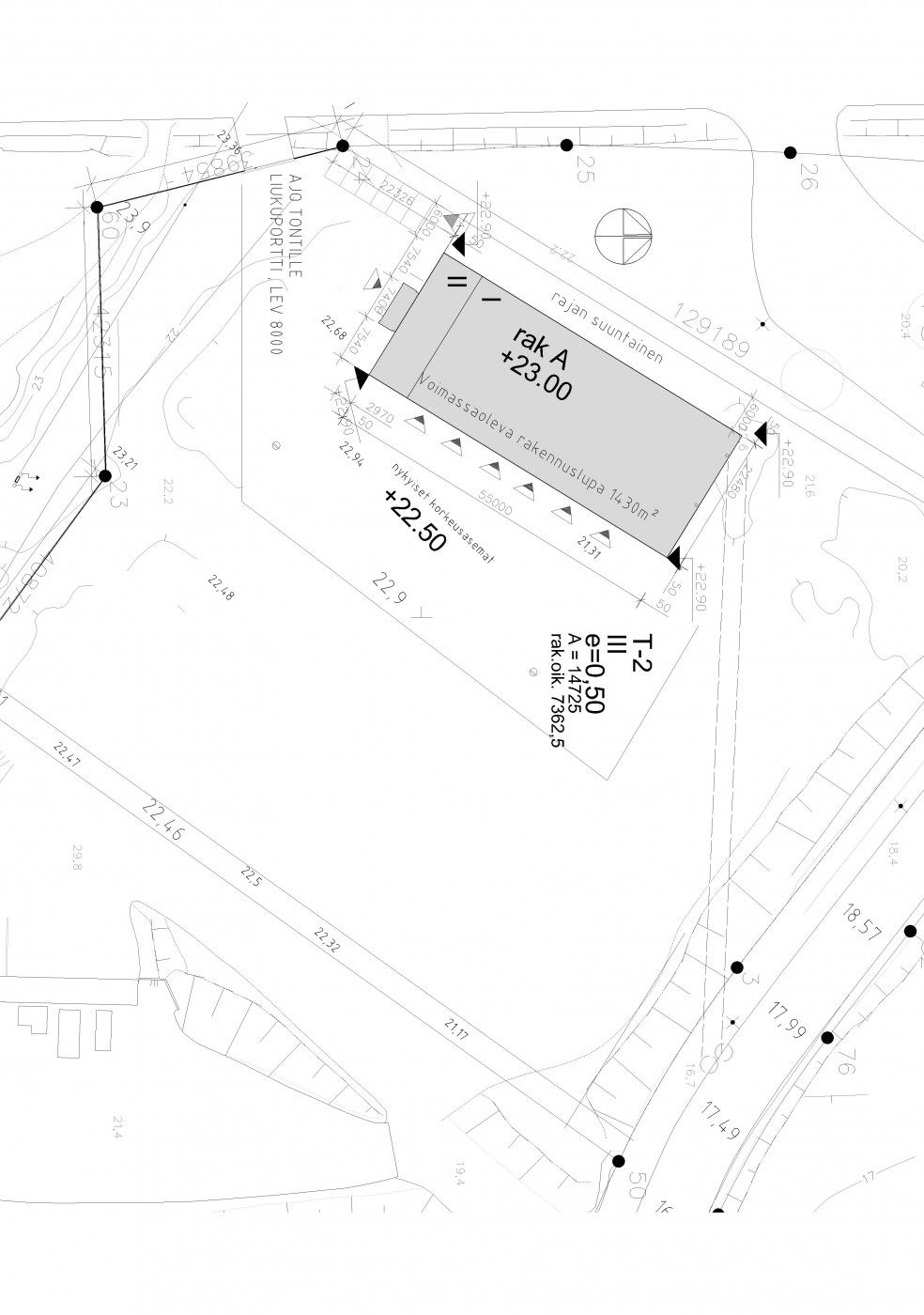
Vuokrattavana 1 400 m² toimitilat Naantalin Luolalan teollisuusalueella, osoitteessa Viestitie 4, Naantali. Tontille rakennetaan korkealuokkainen tuotantohalli, jossa tuotantotilat ovat 1 100 m² ja toimiston osuus 300 m². Tilat räätälöidään tulevan käyttäjän tarpeisiin. Tontilla on suuri rakennusoikeus, joten tarvittaessa rakennuslupa voidaan saada nopeasti, jos tilantarve on tätä suurempi. Kiinteistön sijainti on Naantalin sataman välittömässä läheisyydessä. Tontti rajoittuu uuden TEN-T-verkoston satamaan johtavaan tiehen
Ota yhteyttä, niin suunnitellaan yhdessä teidän tulevat toimitilat! Tässä vaiheessa pääsette vaikuttamaan tulevien tilojen layoutiin ja varusteluun.
- Tontin pinta-ala: 14 725 m²
- Rakennusoikeus: 7 362 k-m²
- Kaavoitus: T-2 III (teollisuus- ja varastorakennusten korttelialue)
- Kiinteistötunnus: 529-8-12-12
Lisää toimitiloja www.rhg.fi
Uudiskohde
RHG Real Estate
Hämeenkatu 2 B20, 20500 Turku
Näytä puhelinnumero
020 734 4020
Tony Rosenblad
Hallituksen puheenjohtaja
Näytä puhelinnumero
+358 50 551 5375
