Myydään tuotantotilat - Raahe
Yrittäjäntie 5, Yritysperä, 92120 Raahe #10813845
Myydään teollisuuskiinteistö Raahen Yritysperältä, osoitteessa Yrittäjäntie 5.
Kiinteistötunnus: 678-23-2304-20. Oma tontti, jonka pinta-ala 1,3563ha
Asemakaava, kaavamääräys T-1 (Teollisuus- ja varastorakennnusten korttelialue). Rakennusoikeuden tehokkuusluku 0,6
Vesi- ja viemäriliittymät, sähköliittymä (3x200A), kaukolämpöliittymä.
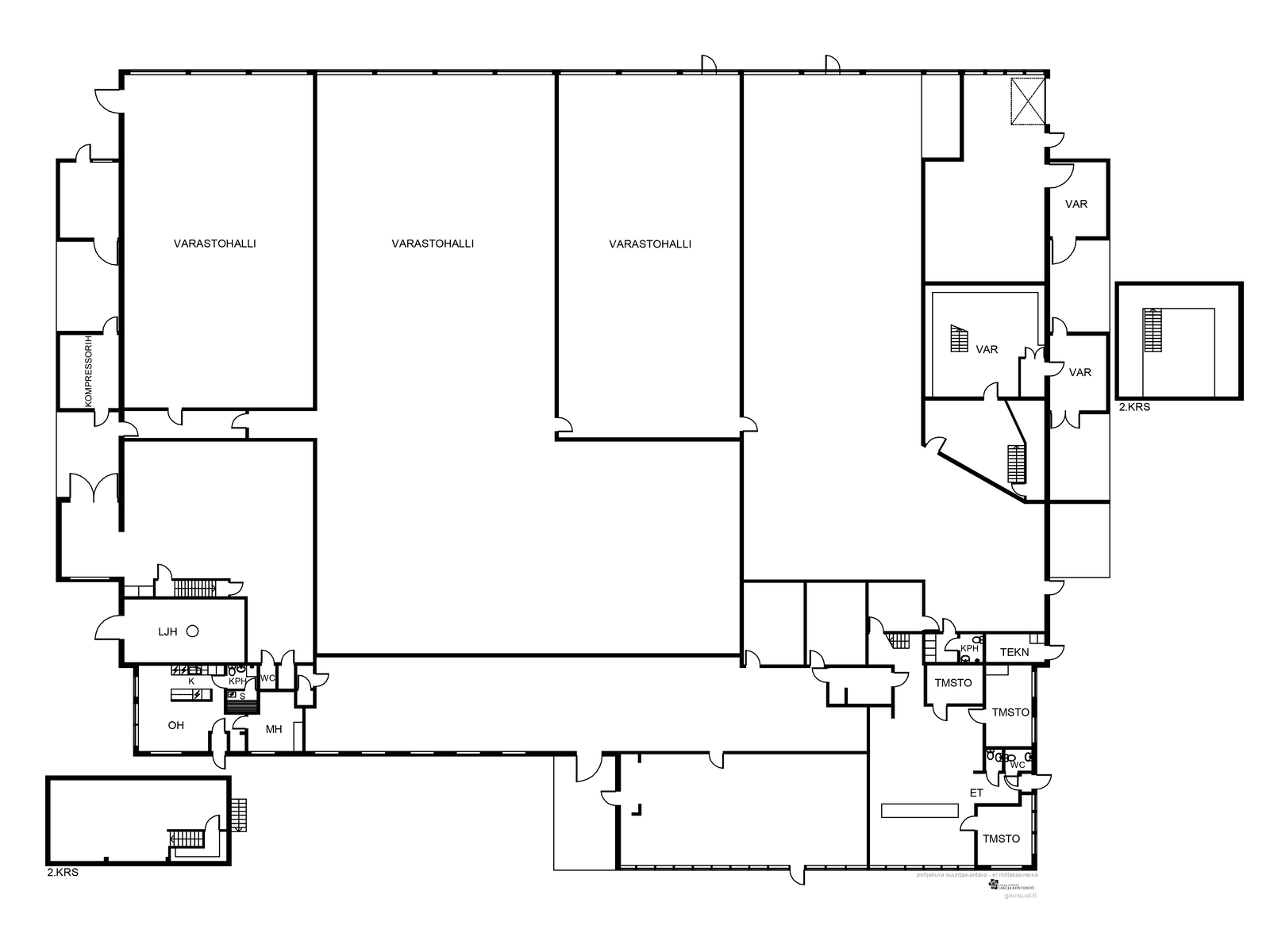
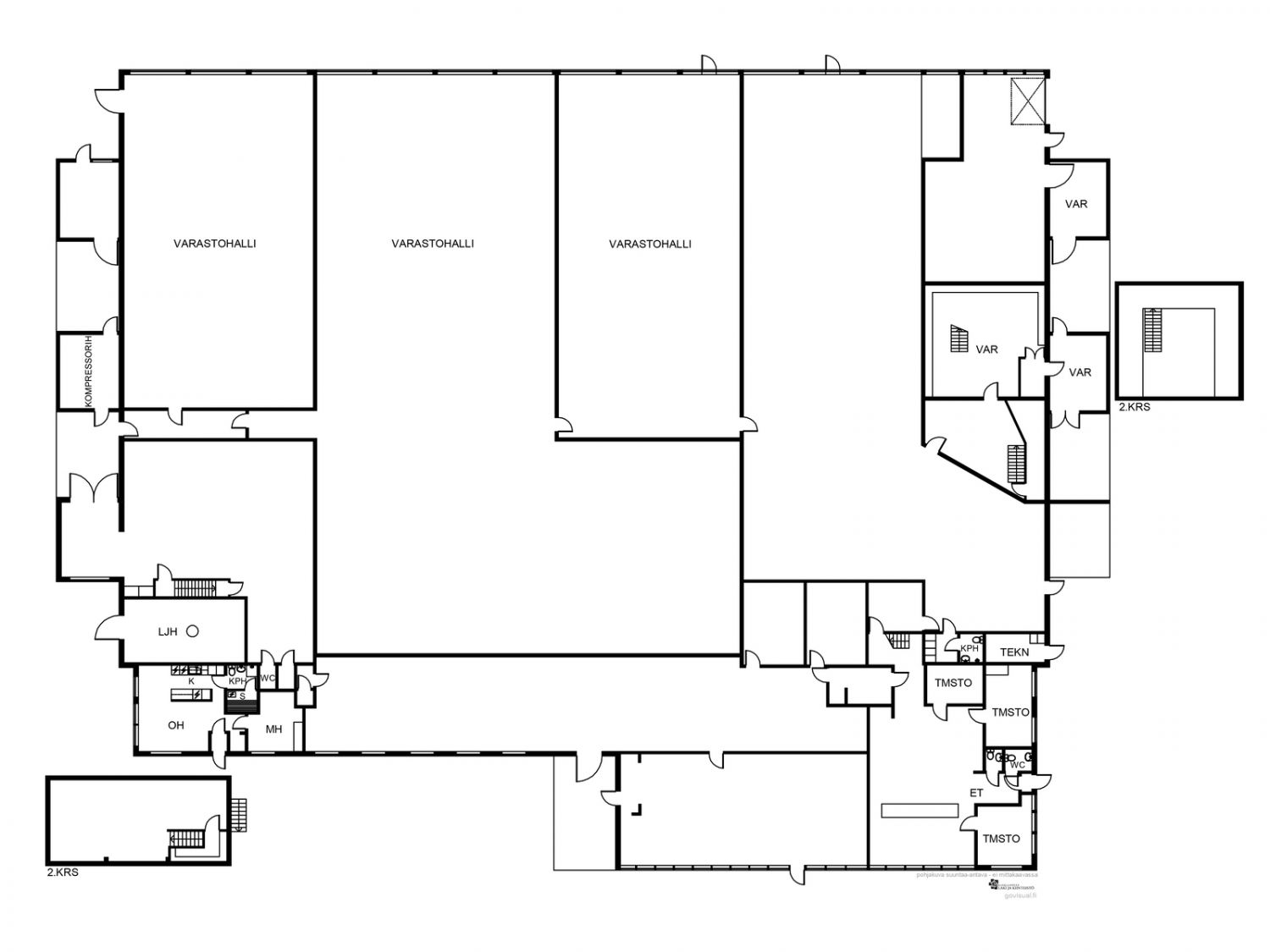
Teollisuusrakennus:
- Valmistunut vuonna 1974
- Kerrosala noin 3058m2
- Tilavuus noin 16790m3
- Liimapuupalkkirunko/pelti-mineritverhous
- Tasakatto/huopakate
- Keskuslämmitys (kaukolämpö). Lämmönkajo halleissa puhalluksella ja muissa tiloissa patterit.
- Rakennuksessa yhteensä 7 hallitilaa, toimitila (entinen kuntosali), yksi asunto, kolme varastotilaa, toimistotila, lämpökeskus, lisäksi yläkerrassa toimistotilaa.
Tilaerittely:
-Halli nro 1, noin 450m², korkeus noin 4,5m; hallitila, toimisto, sosiaalitilat ja parvi. Neljä nosto-ovea. Tilassa toiminut katsastusalan yritys, jonka tarpeisiin tilat on muokattu.
- Halli nro 2, noin 164m², korkeus (korkeimmillaan) noin 4,5m. Nosto-ovi.
- Halli nro 6, noin 240m², korkeus noin 4,5m. Nosto-ovi, jossa käynti samassa.
- Halli nro 7, noin 778m², korkeus noin 4,5m. Nosto-ovi.
- Halli nro 8 noin 250m², korkeus noin 4,5m.
- Halli nro 9, noin 150m², korkeus noin 2,4m.
- Halli nro 11/12, noin 104m², korkeus noin 2,4m.
- Asuinhuoneisto (As 10) noin 53m²; olohuone, makuuhuone, keittiö, Kylpyhuone ja sauna
- Toimitila (entinen kuntosali), jonka pinta-ala noin 200m².
- Toimistotila, jonka pinta-ala noin 130m²
Em. tiloista vuokrattuna asuinhuoneisto, hallit 2, 6, 8, 9 ja 11/12 sekä kaksi varastotilaa.
Rakennuksessa olevat tilat siistikuntoisia. Hallitilassa 11/12 kattovuoto.
Lisäksi tontista on vuokrattu alue työmaakoneiden säilytykseen.
Loistavat edellytykset teollisuus-, varasto- tai toimitilakäyttöön!
TEE TARJOUS!
Tervetuloa tutustumaan!
Sähkön kulutus noin 1000€/kk.
Kaukolämmön kustannus noin 2000€/kk.

Kankaanpään Laki ja Kiinteistö Oy
Keskuskatu 61
38700 KANKAANPÄÄ
Näytä puhelinnumero
+35825788991
Tuori Juhani
kiinteistönvälittäjä, kaupanvahvistaja
Näytä puhelinnumero
044-553 0215