Vuokrataan toimistotilat - Helsinki
VERK, Sörnäistenkatu 1, Kalasatama, 00580 Helsinki #10813434
Siisti 578 m² toimisto Helsingin Kalasatamasta.
Osoite
Sörnäistenkatu 1, 00580 Helsinki
Tilatyyppi
Toimistotilaa
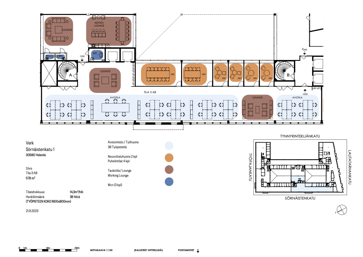
578 m2
Pohjapiirros
Kiinteistö
Kolmannen kerroksen toimistotila, joka räätälöidään vuokralaisen tarpeiden mukaan. Tilaan mahdollista toteuttaa viihtyisä ja valoisa lounge, johon tulvii valoa atriumpihalta.
Tämä kohde ympäristöineen on kuin luotu nuorelle ja luovalle yritykselle. Kiinteistö sijaitsee trendikkäällä Kalasataman alueella, joka kehittyy ja kasvaa koko ajan. Toimistotilat ovat muokattavissa, ja niitä voidaan uudistaa yrityksen tarpeiden mukaan. Kiinteistöstä on mahdollista saada suuria, jopa 3 000 neliön toimitiloja.
Valoisassa ja avarassa rakennuksessa on atriumpiha ja upeat näkymät, sillä ikkunat ulottuvat lattiasta kattoon asti. Kiinteistön palveluihin kuuluu muun muassa aulavastaanotto, Linkosuon lounasravintola-kahvila, kuntosali sekä kattavat kokoustilat. Lähellä sijaitsevan Teurastamon alueella on useita ravintoloita, baareja ja kahviloita.
Kulkuyhteydet Sörnäistenkadulle ovat erinomaiset. Metro pysähtyy viereisellä Kalasataman asemalla ja työmatka-autoilijoita varten on oma pysäköintihalli.
Kohteella on BREEAM Very Good -ympäristösertifikaatti, käytössä on hiilineutraali kiertolämpö sekä 100% tuulivoima, joka on käytössä kaikissa Antiloopin kiinteistöissä. Näin ollen kiinteistön käyttämä energia on hiilineutraalia eli käytön aikaiset päästöt kiinteistössä on nolla. Kohteen yleiset tilat on luotu kiertotaloutta hyödyntäen ja kohteen POOL-joustotila on kalustettu kokonaan kierrätyskalustein. Kohteen asiakasmuutostöissä hyödynnetään mahdollisuuksien mukaan kiertotaloutta, esimerkiksi lasielementeissä.
Tämä kohde ympäristöineen on kuin luotu nuorelle ja luovalle yritykselle. Kiinteistö sijaitsee trendikkäällä Kalasataman alueella, joka kehittyy ja kasvaa koko ajan. Toimistotilat ovat muokattavissa, ja niitä voidaan uudistaa yrityksen tarpeiden mukaan. Kiinteistöstä on mahdollista saada suuria, jopa 3 000 neliön toimitiloja.
Valoisassa ja avarassa rakennuksessa on atriumpiha ja upeat näkymät, sillä ikkunat ulottuvat lattiasta kattoon asti. Kiinteistön palveluihin kuuluu muun muassa aulavastaanotto, Linkosuon lounasravintola-kahvila, kuntosali sekä kattavat kokoustilat. Lähellä sijaitsevan Teurastamon alueella on useita ravintoloita, baareja ja kahviloita.
Kulkuyhteydet Sörnäistenkadulle ovat erinomaiset. Metro pysähtyy viereisellä Kalasataman asemalla ja työmatka-autoilijoita varten on oma pysäköintihalli.
Kohteella on BREEAM Very Good -ympäristösertifikaatti, käytössä on hiilineutraali kiertolämpö sekä 100% tuulivoima, joka on käytössä kaikissa Antiloopin kiinteistöissä. Näin ollen kiinteistön käyttämä energia on hiilineutraalia eli käytön aikaiset päästöt kiinteistössä on nolla. Kohteen yleiset tilat on luotu kiertotaloutta hyödyntäen ja kohteen POOL-joustotila on kalustettu kokonaan kierrätyskalustein. Kohteen asiakasmuutostöissä hyödynnetään mahdollisuuksien mukaan kiertotaloutta, esimerkiksi lasielementeissä.
Kulkuyhteydet
Metroasema 600 m, Raitiovaunupysäkki 400 m, Bussipysäkki 300 m, Juna-asema 3 km, Lentoasema 16,5 km
Vapautuu
Heti
Rakennusvuosi
1994
Kerros
3
Energiatehokkuusluokka
Ei lain edellyttämää energiatodistusta
Näkyvällä paikalla
Hissi
Ota yhteyttä
ScanReal Oy LKV
Opus Business Park
Hitsaajankatu 24
00810 Helsinki
info@scanreal.fi
Puh:
Näytä puhelinnumero
020 730 8830
Sopivat toimitilat yhdellä otolla!
Kartoitamme toimitilatarpeesi ja etsimme yrityksellesi parhaiten sopivat vapaat toimitilat. Koska vuokranantajat maksavat palvelumme, on tämä yrityksellesi veloituksetonta.
OTA YHTEYTTÄ - SOVI NÄYTTÖ!
Kaikki kohteemme eivät ole netissä, kerro tilatarpeesi niin kartoitamme vaihtoehdot.
Palvelumme on tilanhakijalle ilmainen
Pyydä lisätietoa
