Myydään/sijoituskohde toimistotilat, tuotantotilat, muut tilat - Kuopio
Asevarikontie 8, 70800 Kuopio #10813296
Monipuolinen uudehko (rak.vuosi 2022) tuotantohallirakennus Pienestä Neulamäestä.
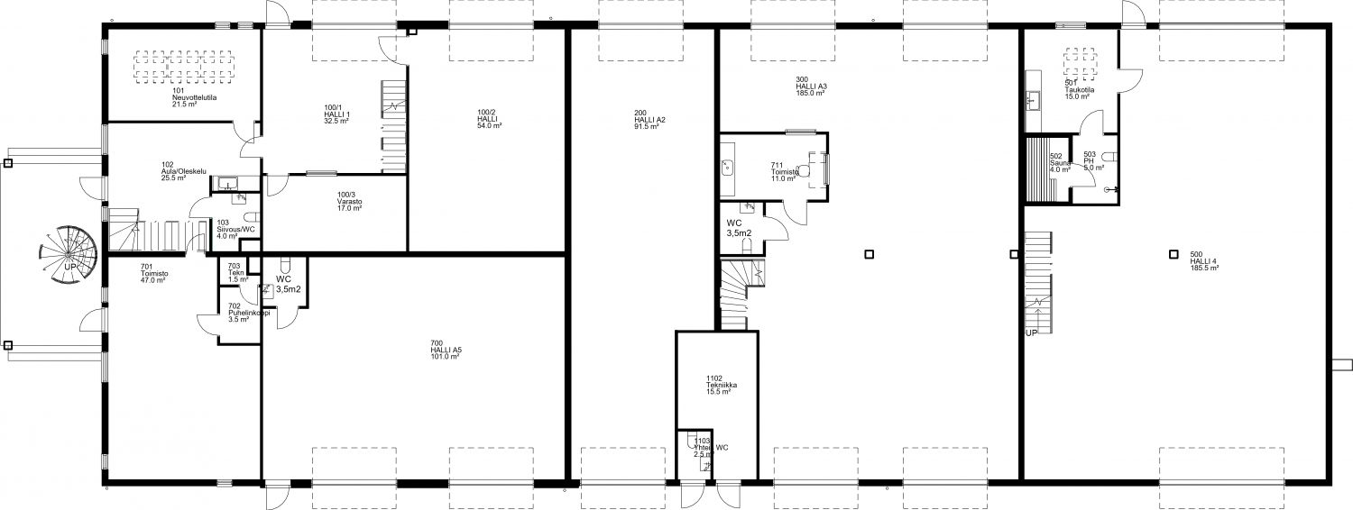
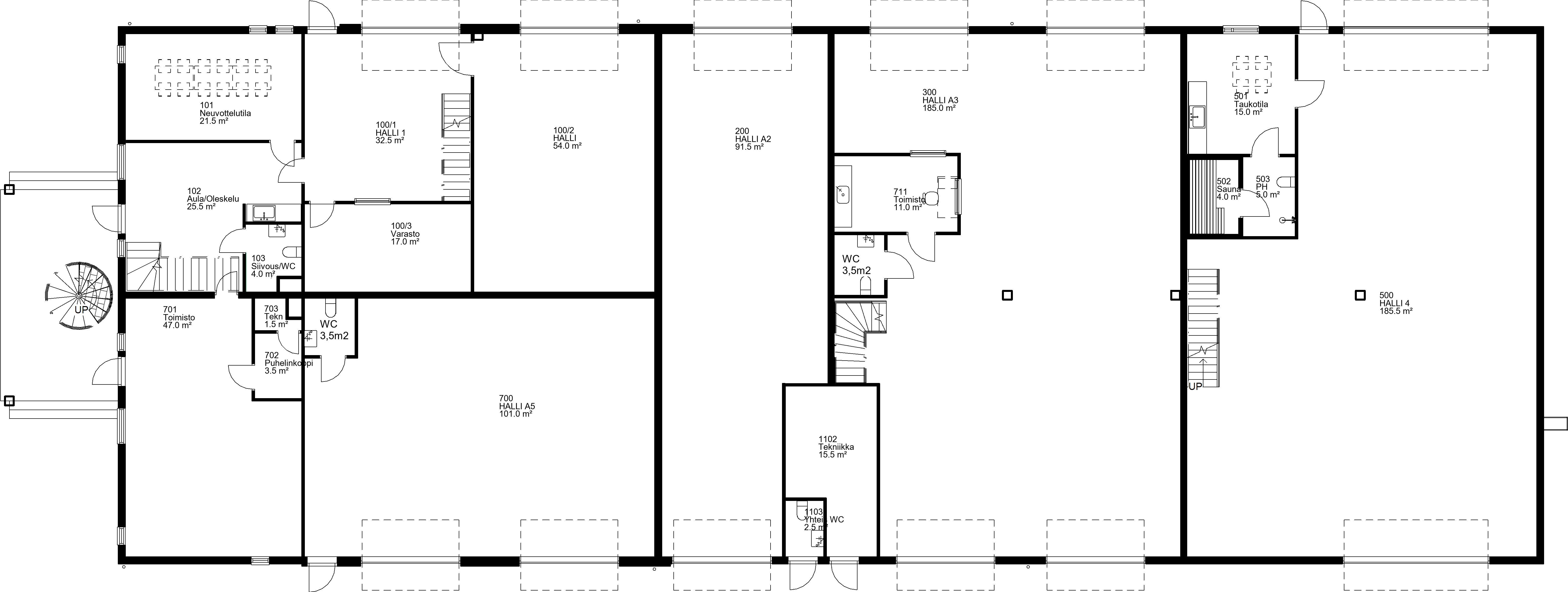
Täyteen vuokrattujen tuotantohallien tilat on suunniteltu vastaamaan nykyajan vaatimuksia ja työntekemisen mielekkyys on otettu huomioon monin tavoin. Rakennus sijaitsee 7902m2 vuokraoikeuden tontilla. Rakennusoikeitta on yhteensä 3160,8 k-m2, josta käytetty 1079 k-m2.
Kolme halliosaketta on läpiajettavat, jossa nosto-ovet molemmissa päissä 5m korkeat ja 5m leveät.
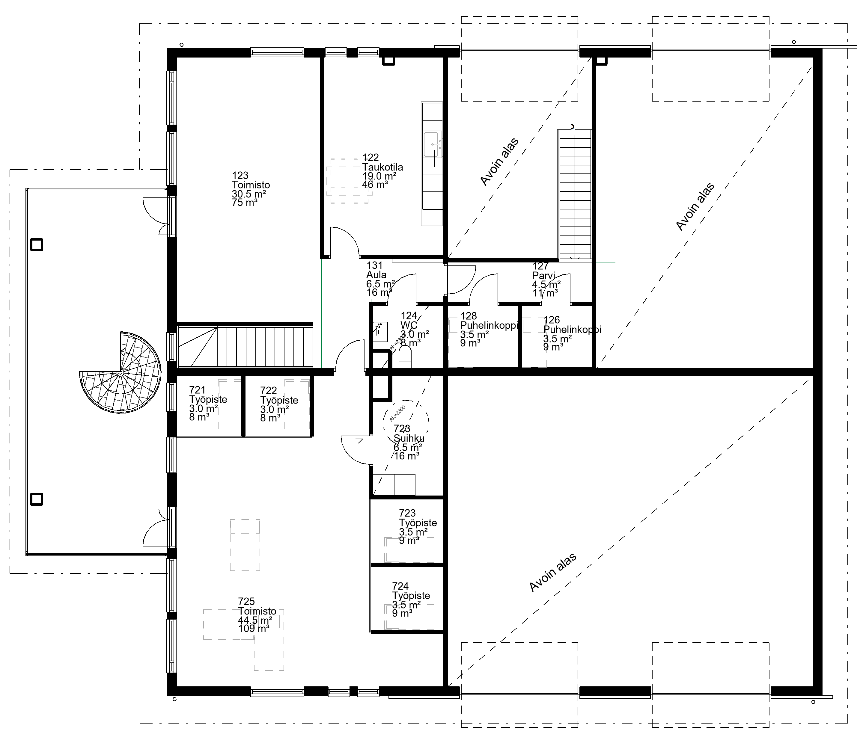
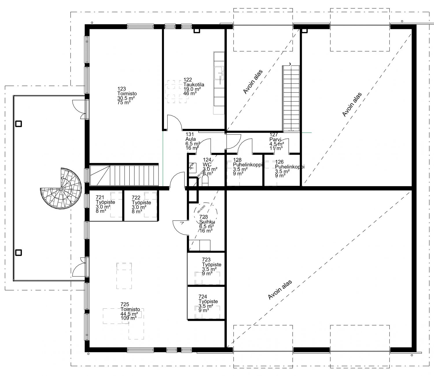
Yksi toimitila on tehty monipuoliseksi tilaksi, siinä hyvät toimistotilat, hiljaisen työskentelyntilat sekä kokoustilat ja lisäksi halliosa sekä varastotilaa.
Autokatos jossa on paikat 8 autolle, loput 6 autopaikka pihapaikkoja.
Kiinteistössä tekninen tila ja yhteiskäyttöinen wc-tila.
Lisäksi on mahdollista vielä rakentaa parvitiloja.
Maalämpö ja lattialämmitys.
Sijoituskohde! 100% vuokrattu.
Ota yhteyttä 050 5417349 ja tule tutustumaan tähän uudehkoon tuotantohalliin joka sijaitsee loistavalla ja logistisesti hyvällä paikalla!
Katutasossa
Näkyvällä paikalla

Fine LKV
Minna Moisio
Toimitilavuokraus, LKV
Näytä puhelinnumero
0505417349
minna@finelkv.fi
Leväsentie 2, 70700 Kuopio
Yliopistonkatu 28, 40100 Jyväskylä
Toimin kaupallisena managerina ja toimitilavuokraajana, otathan yhteyttä jos mietit mahdollisia muutostöitä tai esillä olevista toimitiloista ei löydy sitä mitä etsit. Selvitetään muut tila mahdollisuudet. Asiakaslähtöisyys on minulle tärkeää sekä asioiden sujuvuus. Ota yhteyttä, mielelläni autan sinua.