Uudiskohde
Vuokrataan toimistotilat, liiketilat, näyttelytilat, tuotantotilat, varastotilat, työtilat, autotalli/-hallitilat - Lieto
Vikkeläkuja 3, 20660 Lieto #10812885
hyvä näkyvyys Turun Kehätielle E18 - maaseudun kehittämistukialue - Fölipysäkki 150m - suuri sähköliittymä - energiatehokas
Osoite
Vikkeläkuja 3, 20660 Lieto
Tilatyyppi
Toimistotilaa
76 m2
Liiketilaa
387 m2
Näyttelytilaa
387 m2
Tuotantotilaa
387 m2
Varastotilaa
387 m2
Työtilaa
387 m2
Autotalli/-hallitilaa
387 m2
Yhteensä
463 m2
Vuokra
5190€ alv0%
Kiinteistö
Tarjolla modernia varasto- ja toimistotilaa Liedon Avantin alueelta. Kohde sijaitsee E18-tien välittömässä läheisyydessä, ja sieltä on suora näköyhteys kehätielle. Lähin Föli-pysäkki sijaitsee 150 metrin etäisyydellä.
Tilan tekniset tiedot:
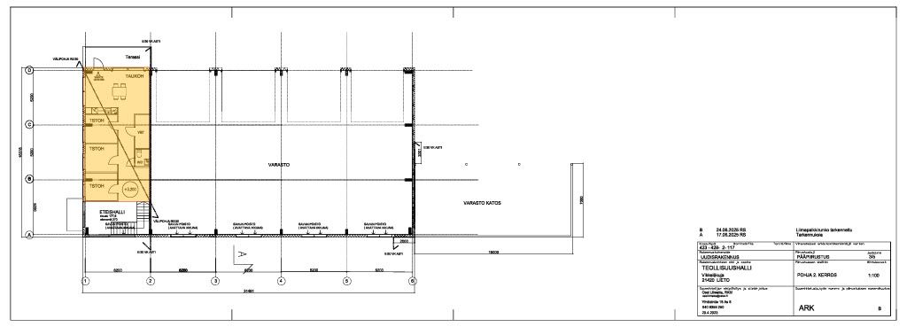
Korkeus: Korkeus nosto-oven edessä 6,3m.
Nosto-ovi: Korkeus 5,5 m ja leveys 5 m.
Lämmitys: VILP. Sekä varasto- että toimistotiloissa on vesikiertoinen lattialämmitys.
Energiatehokkuus: Rakennus on suunniteltu energiatehokkaaksi.
Ulkoalueet: Piha-alue on aidattu ja asfaltoitu.
Toimistotilat:
Toimistotilat sijaitsevat betonirakenteisen välipohjan päällä ja ne rakennetaan hyvin ääntä eristäviksi. Tilat toteutetaan laadukkailla materiaaleilla ja varustetaan vesikiertoisella lattialämmityksellä. Lisäksi taukohuone/neuvottelutila josta kulku pihan puolella olevalle terassille.
Näyttävään aula/sisäänkäyntitilaan on myös mahdollista muokata asiakaspalvelu piste tms. tarpeen mukaan.
Alue kuuluu maaseudunkehittämistukialueeseen jonne yritysten on mahdollista saada 20% investointitukea esimerkiksi tuotantolaite investointeihin.
korkeaa varastotilaa 290m2 10€/m2 alv0%
matalampaa varastotilaa (toimiston alapuoli): 96,5m2 8€/m2 alv0%
toimistotilaa 76m2 20€/m2 alv0%
Tilakokonaisuuden vuokra yhteensä 5190€/kk alv0%
Tilan tekniset tiedot:
Korkeus: Korkeus nosto-oven edessä 6,3m.
Nosto-ovi: Korkeus 5,5 m ja leveys 5 m.
Lämmitys: VILP. Sekä varasto- että toimistotiloissa on vesikiertoinen lattialämmitys.
Energiatehokkuus: Rakennus on suunniteltu energiatehokkaaksi.
Ulkoalueet: Piha-alue on aidattu ja asfaltoitu.
Toimistotilat:
Toimistotilat sijaitsevat betonirakenteisen välipohjan päällä ja ne rakennetaan hyvin ääntä eristäviksi. Tilat toteutetaan laadukkailla materiaaleilla ja varustetaan vesikiertoisella lattialämmityksellä. Lisäksi taukohuone/neuvottelutila josta kulku pihan puolella olevalle terassille.
Näyttävään aula/sisäänkäyntitilaan on myös mahdollista muokata asiakaspalvelu piste tms. tarpeen mukaan.
Alue kuuluu maaseudunkehittämistukialueeseen jonne yritysten on mahdollista saada 20% investointitukea esimerkiksi tuotantolaite investointeihin.
korkeaa varastotilaa 290m2 10€/m2 alv0%
matalampaa varastotilaa (toimiston alapuoli): 96,5m2 8€/m2 alv0%
toimistotilaa 76m2 20€/m2 alv0%
Tilakokonaisuuden vuokra yhteensä 5190€/kk alv0%
Sijainti
Avantin alue on viimevuosina kehittynyt suurin harppauksin ja alueelle on tullut suuri määrä uusia toimijoita. Ohikulkutien parannuksen myötä yhteydet mm. Helsinkiin päin ovat parantuneet huomattavasti. Hyvien yhteyksien ansiosta alueelle onkin tullut viimeaikoina useita logistiikan alan toimijoita.
Toimitilan välittömässä läheisyydessä n.150m sijaitsee myös Föli:n (Turun seudun joukkoliikenne) bussipysäkki joka mahdollistaa tehokkaan työpaikkaliikenteen myös ilman autoa.
Muutamia alueen yrityksiä:
DB Schenker, Posti logistiikkakeskus, Kesko logistiikka, UPS Turku, Avant Techno, Yaskawa Oy, Puuilo, Würth, Finnsusp Oy, Rotator, FinnSiirto, Inlook,
Toimitilan välittömässä läheisyydessä n.150m sijaitsee myös Föli:n (Turun seudun joukkoliikenne) bussipysäkki joka mahdollistaa tehokkaan työpaikkaliikenteen myös ilman autoa.
Muutamia alueen yrityksiä:
DB Schenker, Posti logistiikkakeskus, Kesko logistiikka, UPS Turku, Avant Techno, Yaskawa Oy, Puuilo, Würth, Finnsusp Oy, Rotator, FinnSiirto, Inlook,
Muuta
Rakennetaan toimitila liiketoimintasi tarpeisiin!
Rakentaja: Rakennusliike Osrak Oy
Lisätietoa: www.osrak.fi
Oskari Nieminen p.0503795305
Ossi Liimatta, RKM p.0408355250
Rakentaja: Rakennusliike Osrak Oy
Lisätietoa: www.osrak.fi
Oskari Nieminen p.0503795305
Ossi Liimatta, RKM p.0408355250
Vapautuu
sopimuksen mukaan
Rakennusvuosi
2026 (uudiskohde)
Uudiskohde
Näkyvällä paikalla
Ota yhteyttä
Rakennusliike Osrak Oy
Ossi Liimatta, RKM
Näytä puhelinnumero
0408355250
Oskari Nieminen
Näytä puhelinnumero
0503795305
Pyydä lisätietoa