Vuokrataan toimistotilat - Tampere
Hermiankatu 3A, Hermia, 33270 Tampere #10812425
Toimistotilaa 453 - 675 m² Hervannassa
Osoite
Hermiankatu 3A, 33270 Tampere
Tilatyyppi
Toimistotilaa
453 - 675 m2
Kiinteistö
Toimistotilaa 453 - 675 m² Hervannassa
Technopolis Hermia sijaitsee Hervannassa VTT:n ja Tampereen yliopiston vieressä. Matkaa Tampereen keskustaan ja mm. rautatieasemalle on alle 9 kilometriä. Hervannan Technopoliksen kampukselle on erinomaiset julkiset liikenneyhteydet ja esimerkiksi ratikka pysähtyy Hermia 15 -talon eteen. Hermiaan on helppo saapua myös autolla joka suunnasta kehätien ja moottoritien ansiosta. Autolla ajettaessa Tampereen keskustasta matka-aika on 15–20 minuuttia. Kampuksella on paljon kohtuuhintaista pysäköintitilaa autoilijoille. Yliopistonrinteen Technopolis käyttää 100 % uusiutuvaa sähköä ja sillä on LEED-sertifikaatti.
Erilaisten toimistotilojen lisäksi kampuksella on mahdollisuus käyttää useita erilaisia kokoustiloja. Vuokralaisia ja asiakkaita palvelee lisäksi kaksi Linkosuon ravintolaa. Asiakkaiden käytettävissä on lisäksi mm. ruokakauppa, kuntosali, liikuntakeskus ja paljon muuta. Hervannan Technopoliksella järjestetään säännöllisesti myös erilaisia tapahtumia esim. verkostoitumisaamuja.
Hervannan kampuksella toimii isäksi pientoimistoalue Technopolis HUB. Se koostuu 62 pienestä 1–12 hengen tiimeille sopivasta toimistotilasta. Kysy lisää näistä.
Vuokrattava tila:
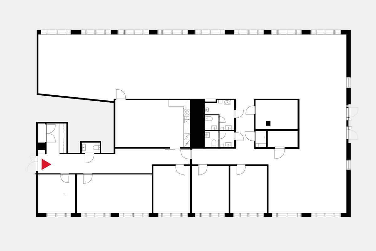
Vapaana vuokrattavaksi Hermia 10, 3.kerroksen toimitila 453 m².
Tämä 453- 675 m² toimisto sijaitsee kiinteistön 3. kerroksessa, huonejako voidaan muokata käyttäjän tarpeiden mukaan. Toimistossa on erikokoisia huoneita sekä omat keittiö- ja wc-tilat. Toimitila on esimerkiksi jaettavissa kahteen eri käyttöön: julkiseen ja ei-julkiseen osaan ovella, jossa on kulunvalvonta. Puolijulkisessa osassa on 3 neuvottelutilaa (5-10 henkeä), wc ja käynti kahviotilaan. Ei-julkisella puolella on kaksi työhuonetta, avotyötilaa, puhelinhuone, varasto, wc-tilat sekä iso IT-tila. Avotilaan voidaan toteuttaa eri kokoisia huoneita, käyttäjän tarpeiden mukaan.
Logistila on valtakunnallisesti paikallinen toimitilavälittäjä, joka tuntee alueesi tilatarjonnan. Ota yhteyttä, niin löydämme sinulle sopivan ratkaisun. Palvelumme on tilanhakijalle aina maksuton.
Technopolis Hermia sijaitsee Hervannassa VTT:n ja Tampereen yliopiston vieressä. Matkaa Tampereen keskustaan ja mm. rautatieasemalle on alle 9 kilometriä. Hervannan Technopoliksen kampukselle on erinomaiset julkiset liikenneyhteydet ja esimerkiksi ratikka pysähtyy Hermia 15 -talon eteen. Hermiaan on helppo saapua myös autolla joka suunnasta kehätien ja moottoritien ansiosta. Autolla ajettaessa Tampereen keskustasta matka-aika on 15–20 minuuttia. Kampuksella on paljon kohtuuhintaista pysäköintitilaa autoilijoille. Yliopistonrinteen Technopolis käyttää 100 % uusiutuvaa sähköä ja sillä on LEED-sertifikaatti.
Erilaisten toimistotilojen lisäksi kampuksella on mahdollisuus käyttää useita erilaisia kokoustiloja. Vuokralaisia ja asiakkaita palvelee lisäksi kaksi Linkosuon ravintolaa. Asiakkaiden käytettävissä on lisäksi mm. ruokakauppa, kuntosali, liikuntakeskus ja paljon muuta. Hervannan Technopoliksella järjestetään säännöllisesti myös erilaisia tapahtumia esim. verkostoitumisaamuja.
Hervannan kampuksella toimii isäksi pientoimistoalue Technopolis HUB. Se koostuu 62 pienestä 1–12 hengen tiimeille sopivasta toimistotilasta. Kysy lisää näistä.
Vuokrattava tila:
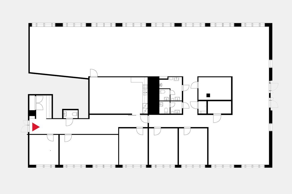
Vapaana vuokrattavaksi Hermia 10, 3.kerroksen toimitila 453 m².
Tämä 453- 675 m² toimisto sijaitsee kiinteistön 3. kerroksessa, huonejako voidaan muokata käyttäjän tarpeiden mukaan. Toimistossa on erikokoisia huoneita sekä omat keittiö- ja wc-tilat. Toimitila on esimerkiksi jaettavissa kahteen eri käyttöön: julkiseen ja ei-julkiseen osaan ovella, jossa on kulunvalvonta. Puolijulkisessa osassa on 3 neuvottelutilaa (5-10 henkeä), wc ja käynti kahviotilaan. Ei-julkisella puolella on kaksi työhuonetta, avotyötilaa, puhelinhuone, varasto, wc-tilat sekä iso IT-tila. Avotilaan voidaan toteuttaa eri kokoisia huoneita, käyttäjän tarpeiden mukaan.
Logistila on valtakunnallisesti paikallinen toimitilavälittäjä, joka tuntee alueesi tilatarjonnan. Ota yhteyttä, niin löydämme sinulle sopivan ratkaisun. Palvelumme on tilanhakijalle aina maksuton.
Vapautuu
Kysy
Kerros
3.
Ota yhteyttä
LogisTila Oy
Kauppakatu 14, 33210 TAMPERE
Tuomas Lehtinen
Näytä puhelinnumero
044 491 5961
Pyydä lisätietoa
