Vuokrataan toimistotilat - Kangasala
Hampuntie 1, 36220 Kangasala #10812337
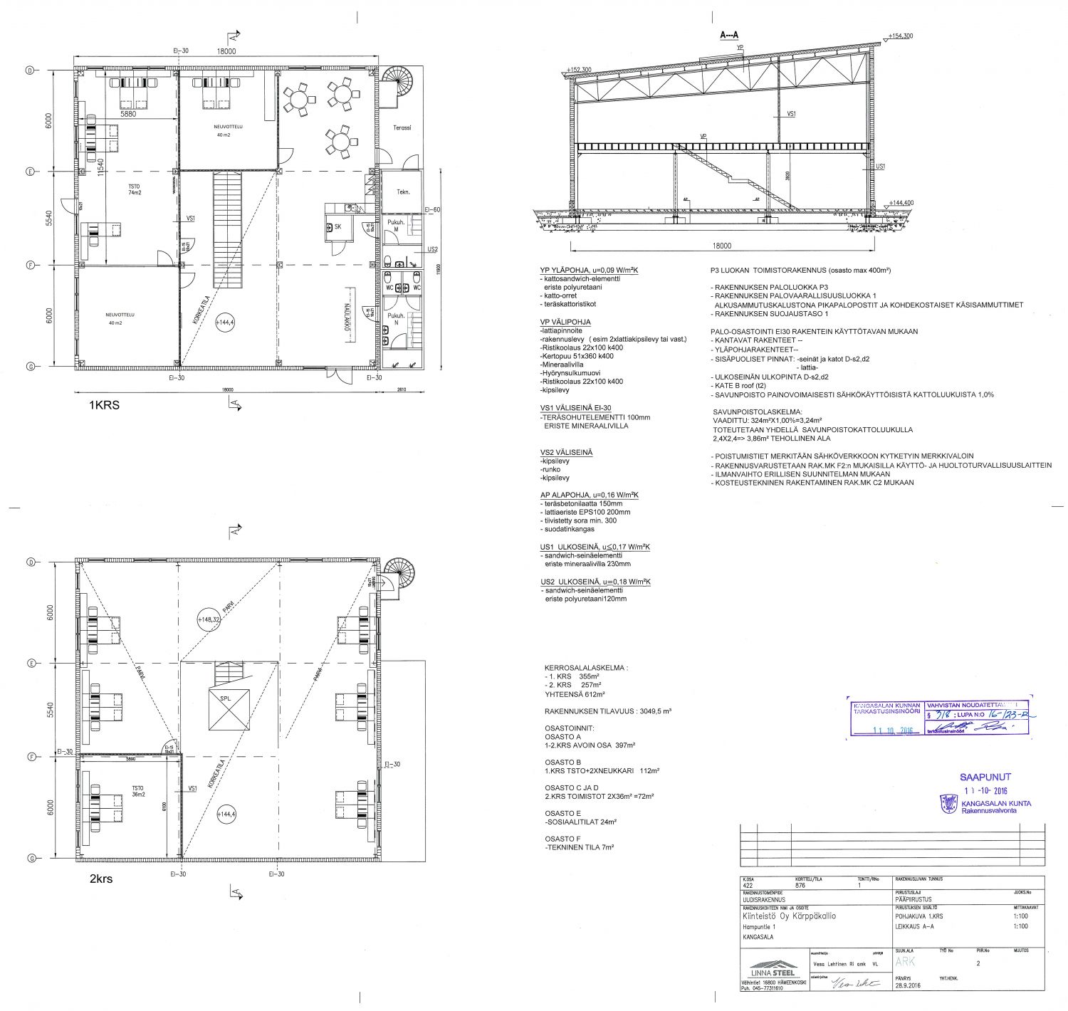
Vuokrattavana moderni ja monipuolinen toimistotila Kangasalan Kallion alueella – 612 m²
Nyt tarjolla erinomaisessa kunnossa oleva moderni toimistotila, joka sijaitsee kahdessa kerroksessa Kangasalan Kallion alueella. Kiinteistön tilat on saneerattu vastaamaan nykyaikaisen toimiston tarpeita, ja se sopii erinomaisesti monipuoliseen toimistokäyttöön.
- Avarat ja edustavat aulatilat
- Täysin varusteltu keittiö ja taukotilat
- Kaksi erillistä neuvotteluhuonetta
- Erillinen työtila, johon mahtuu jopa 10 työpistettä
- Kaksi WC-tilaa, joissa molemmissa suihkut
2. kerros – 257 m²
- Suuri ja valoisa avotyöskentelytila
- Erillinen toimistotila, jota voi käyttää neuvotteluhuoneena tai hiljaisen työn pisteenä
Yhteensä 612 m² laadukkaita toimistotiloja kahdessa kerroksessa.
Mahdolliset muutostyöt ja sopimusehdot ovat neuvoteltavissa asiakkaan tarpeiden mukaan.
Autopaikkoja on vuokrattavissa erikseen kohteelta. Tilojen vieressä sijaitsee myös suosittu lounasravintola.
Tämä kohde on loistava valinta yritykselle, joka arvostaa modernia ja toimivaa työympäristöä hyvien liikenneyhteyksien päässä. Sijainti Kangasalan Kalliolla tarjoaa yrityksellenne erinomaiset tilat liiketoiminnan kehittämiseen.
Kiinnostuitko? Ota yhteyttä ja varaa katselmusaika – tule katsomaan, miten tämä tilakokonaisuus voi tukea yrityksesi kasvua ja toimintaa.
Samla Toimitilat
Elina Venäläinen
Asset Manager
Näytä puhelinnumero
050 557 3659
Hannikaisenkatu 39
40100 JYVÄSKYLÄ
Samla Capital on suomalainen kiinteistösijoittamiseen erikoistunut yhtiö, joka sijoittaa kasvukeskusten kiinteistöihin hallinnoimiensa rahastojen kautta. Rahastorakenne mahdollistaa sijoittamisen kiinteistöihin sekä ammattimaisille että ei-ammattimaisille sijoittajille. Yhtiön perusti vuonna 2015 yhdistetyn kolminkertainen Olympiavoittaja, KTM, Samppa Lajunen.
http://www.samlacapital.fi