Vuokrataan toimistotilat, tuotantotilat, varastotilat, muut tilat - Jyväskylä
Laukaantie 4, Grafila, 40320 Jyväskylä #10812107
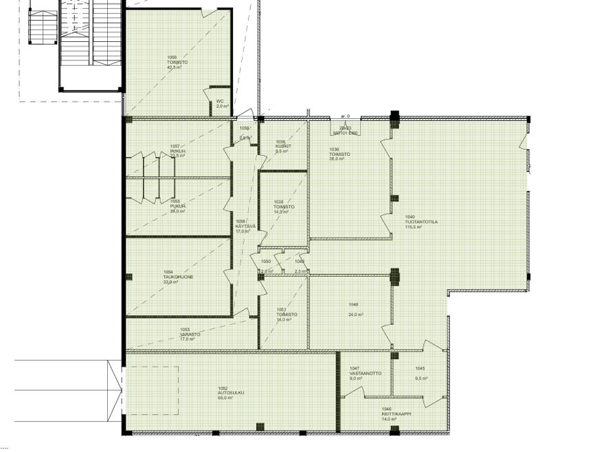
Vuokrataan loistavalla paikalla sijaitsevan Grafilan yrityskeskuksen n. 502 m2 tuotanto - / toimistotilakokonaisuus pohjakerroksesta. Tila koostuu neljästä erikokoisesta toimistohuoneesta, n. 115,5 m2 - kokoisesta tuotantotilasta, sekä n. 65 m2 autosulku-laiturista. Lisäksi tiloihin kuuluvat taukohuone, pukuhuoneet, oma WC sekä varastotilaa (katso pohjakuva!). Aiemmin tila on ollut rahakuljetusliikkeen / arvokuljetusyrityksen käytössä. Tilaan saadaan kassakaappeja ja tarvittaessa kassaholvi. Autojen säilytykselle aidattu piha.
Grafilan kiinteistössä vuokralaisia palvelee lounasravintola, kuntosali, saunatilat sekä erilliset neuvottelutilat. Kiinteistössä on koneellinen ilmanvaihto ja jäähdytys. Pihassa lämpötolpallisia autopaikkoja on mahdollista vuokrata.
Lisätiedot ja näytöt: Henri Kumpulainen, Puh 040 864 3631, s-posti henri.kumpulainen@aveon.fi
Kiinteistössä lisäksi vapaana:
Siisti ja remontoitu n. 41 m2 toimistotila, 2.krs, yhteiskäyttö wc ja keittiö
13 m2 toimistohuone, 2. krs
168,5 m2 toimisto kokonaisuus, joka viimeistellään käyttäjän toiveiden mukaan.
50 m2 toimisto tila
Katutasossa
Aveon Real Estate Oy
Kauppakatu 18 C 26, 40100 Jyväskylä
Henri Kumpulainen
Puh.
Näytä puhelinnumero
040 864 3631
henri.kumpulainen@aveon.fi
Olemme kiinteistöliiketoiminnan asiantuntija, joka toimii yrittäjämäisesti neuvonantajana kiinteistökaupoissa, toimitilavälittämisessä sekä kiinteistökehityksessä.
Asiakkaitamme ovat kotimaiset ja ulkomaiset kiinteistönomistajat, -sijoittajat sekä tilojen käyttäjät kaikkialla Suomessa.
