Vuokrataan toimistotilat - Espoo
Sinimäentie 8b, Mankkaa, Espoo #10810995
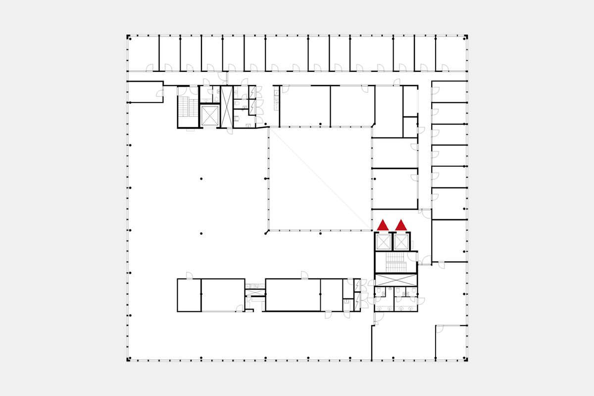
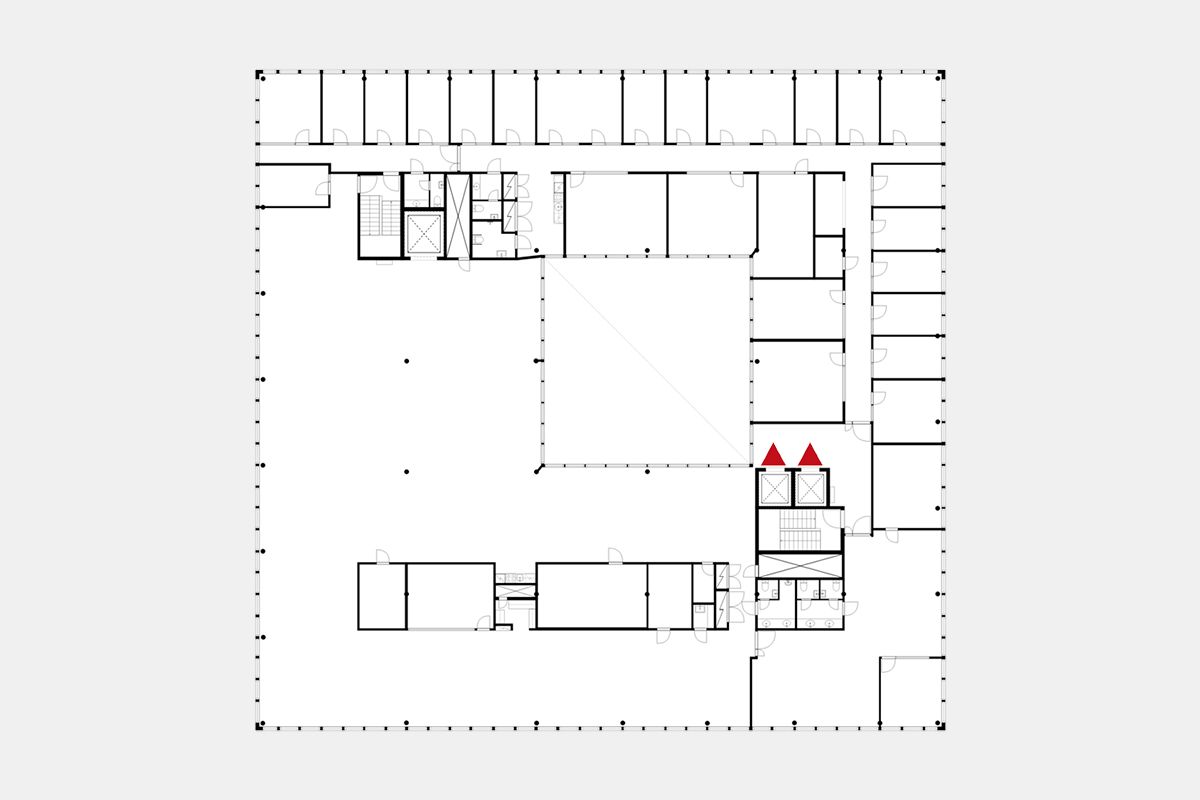
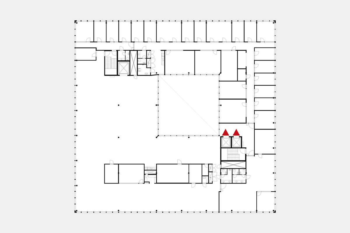
Vuokrattavana toisen kerroksen toimisto joka koostuu avotilasta ja huoneista.
Mankkaalla sijaitseva Sinimäentie 8 on viisikerroksinen toimistorakennus, joka tarjoaa valoisat ja avarat puitteet monipuolisiin tilaratkaisuihin. Kokonaislaajuus on 17 500 m2. Joustavat tilat uudistetaan yrityksesi tarpeiden mukaisiksi edullisesta hintatasosta tinkimättä.
Ensimmäisen ja toisen kerroksen tilat sopivat myös liike- ja näyttelytiloiksi. Kiinteistössä on lisäksi kaksi logistiikkahallia, joiden yhteydessä on tilavat lastauslaiturit.
Toimistorakennuksen ja logistiikkahallien väliseen yhdysrakennukseen sijoittuu sosiaalitiloja, teknisiä tiloja ja muita tukitiloja. Tontilla on käyttämätöntä rakennusoikeutta n. 4 300 k-m2, joten lisärakennuskin on mahdollinen. Vapaana ensimmäisestä kerroksesta 119 m2 varastotilaa.
Lisätietoja numerosta 020 7290 710. Lisää kohteita osoitteessa www.premises.fi.
Energialuokka C 2018Kerros: 2
CRE PREMISES
Puh. Näytä puhelinnumero 020 7290 710
Vantaankoskentie 14
01670 VANTAA
