Vuokrataan toimistotilat, tuotantotilat, varastotilat, autotalli/-hallitilat, muut tilat - Porvoo
Kulloon Kartanontie 145, 06830 Porvoo #10810611
Vuokrataan elintarvike- ja varastotila Kulloonkylässä!
Osoite
Kulloon Kartanontie 145, 06830 Porvoo
Tilatyyppi
Toimistotilaa
50 m2
Tuotantotilaa
100 - 300 m2
Varastotilaa
100 - 300 m2
Autotalli/-hallitilaa
100 - 300 m2
Muuta tilaa
100 - 300 m2
Yhteensä
100 - 300 m2
Tilajako
Jaettavissa
300 m² Elintarvike- ja varastotila
Virtuaaliesittely
Tila soveltuu
Elintarviketila
Vuokra
2'500 €/kk + alv
Muuta
Kulloon kartanon etupihalla, idyllisessä maalaisympäristössä vuokrattavana erinomainen elintarvike – ja varastotila moneen käyttöön. Tilassa on aikaisemmin toiminut mm. pieni limonaditehdas ja sitä ennen elintarvikkeiden tuotanto- ja varastointitila.
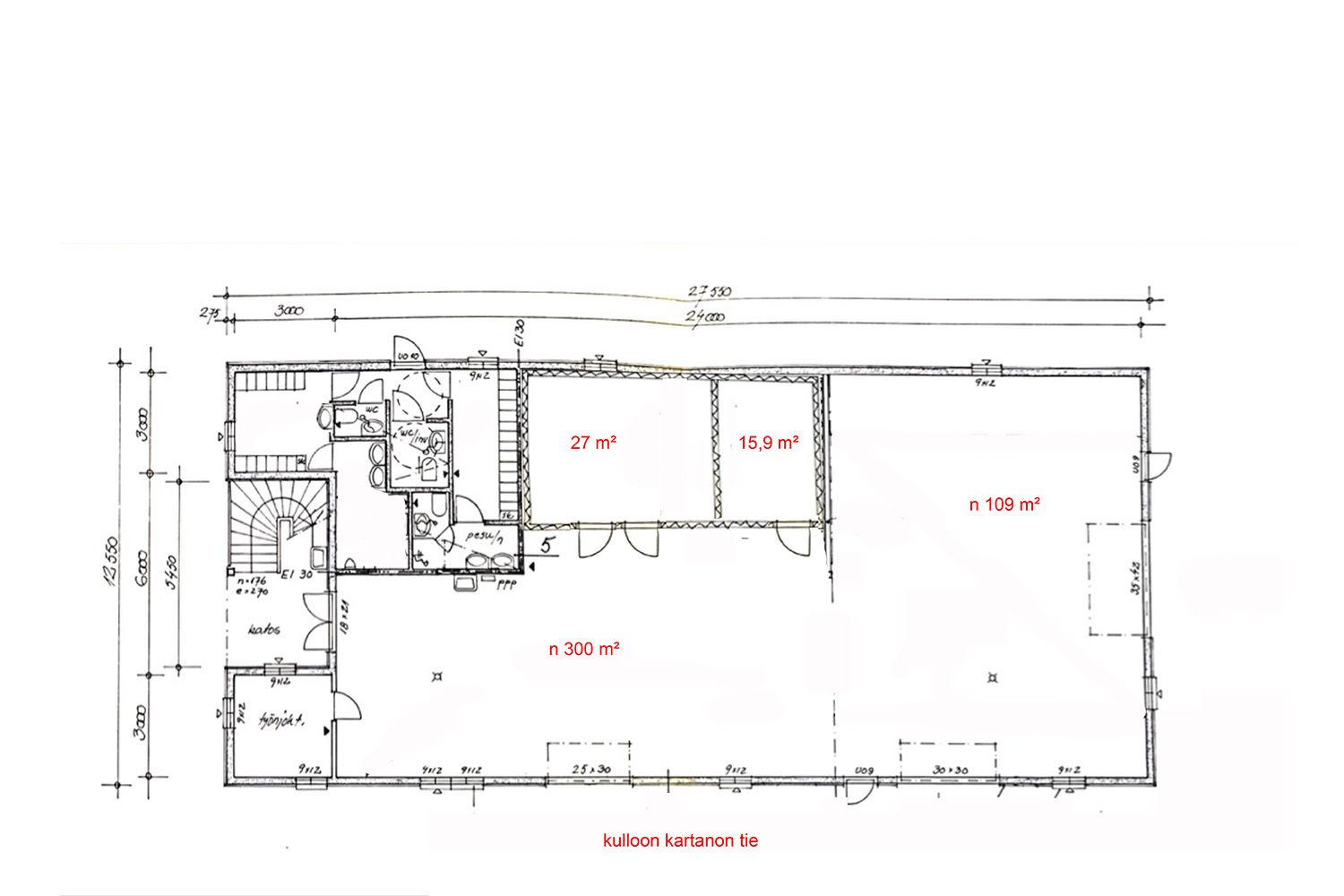
Rakennus on pääasiassa avointa tuotantotilaa ja toisessa päädyssä on valmiina wc- ja keittiötilat sekä toimistohuone. Pinta-alaltaan tilat ovat yhteensä 300 m². Mahdollisuus ajaa autolla sisään, kolme erillistä nosto-ovea. Tuotantotilassa kaksi kylmiötä, useita lattiakaivoja ja vesipisteitä ja ne ovat elintarviketuotantoon hyväksytyt tilat. Tuotantotilan vapaa korkeus on noin 3,3 metriä. Rakennuksen päädyssä on iso avoin varastotila pinta-alaltaan noin 109 m² ja sen vapaa korkeus 5,1 metriä. Nosto-ovien tarkemmat mitat ovat L2,4 m x K2,9 m ja isomman oven mitat ovat L3,5 m x K4,0 m
Piha-alue on reilunkokoinen ja ympäristö mahdollistaa erilaisia esittelytilaisuuksia Kulloon kartanon idyllisessä ympäristössä.
Rakennuksen yläkerrasta voidaan vuokrata ullakko, joka on pinta-alaltaan 100 m² lisätilaa esimerkiksi varastotilaksi. Ullakon tila voisi soveltua myös näyttely-, edustus-, toimisto- ja kokoustiloiksi, mutta vaatii lämmityksen asennuksen tilaan (nyt vain kylmä mutta kuiva tila).
Rakennuksen tiloja voidaan räätälöidä uudelle vuokralaiselle erikseen sovitusti.
Loistava tuotanto-, varasto-, ja elintarviketila nyt vuokrattavana!
Kohdetiedot
Sijainti
Katuosoite: Kulloon kartanontie 145, 06830 Porvoo
Kaupunginosa: Kulloo
Ympäristö: Kartanon piha-alue
Rakennus
Pinta-alat: 300 m²
Rakennustyyppi: Teollisuus – ja pienteollisuustalot
Rakennusvuosi: 2001
Huoneistoselitelmä: Elintarvike- ja varastotila
Kerros: Katutaso + ullakko
Kunto, varusteet ja palvelut: Hyvä kunto, nosto-ovia, lattiakaivo, kylmiötä 2 kpl, vesipiste, wc, voimavirtapistokkeita, toimistotila, lisävarastotila ullakolta
Energiatodistus: Ei lain edellyttämää todistusta
Vapautuu: Heti vapaa
Pysäköinti: Pihalla
Vuokrahinta ja kulut
Kuukausivuokra: 2’500 €/kk + alv
Vesimaksu: Mittauksen mukaan
Sähkö: Mittauksen mukaan
Lämmitys: Vuokralainen maksaa (maalämpö)
Autopaikkamaksu: Ei ole
Muuta: 3kk vuokraa vastaava summa ja luottotiedot oltava kunnossa. Minimi sopimuskausi 12kk
Rakennus on pääasiassa avointa tuotantotilaa ja toisessa päädyssä on valmiina wc- ja keittiötilat sekä toimistohuone. Pinta-alaltaan tilat ovat yhteensä 300 m². Mahdollisuus ajaa autolla sisään, kolme erillistä nosto-ovea. Tuotantotilassa kaksi kylmiötä, useita lattiakaivoja ja vesipisteitä ja ne ovat elintarviketuotantoon hyväksytyt tilat. Tuotantotilan vapaa korkeus on noin 3,3 metriä. Rakennuksen päädyssä on iso avoin varastotila pinta-alaltaan noin 109 m² ja sen vapaa korkeus 5,1 metriä. Nosto-ovien tarkemmat mitat ovat L2,4 m x K2,9 m ja isomman oven mitat ovat L3,5 m x K4,0 m
Piha-alue on reilunkokoinen ja ympäristö mahdollistaa erilaisia esittelytilaisuuksia Kulloon kartanon idyllisessä ympäristössä.
Rakennuksen yläkerrasta voidaan vuokrata ullakko, joka on pinta-alaltaan 100 m² lisätilaa esimerkiksi varastotilaksi. Ullakon tila voisi soveltua myös näyttely-, edustus-, toimisto- ja kokoustiloiksi, mutta vaatii lämmityksen asennuksen tilaan (nyt vain kylmä mutta kuiva tila).
Rakennuksen tiloja voidaan räätälöidä uudelle vuokralaiselle erikseen sovitusti.
Loistava tuotanto-, varasto-, ja elintarviketila nyt vuokrattavana!
Kohdetiedot
Sijainti
Katuosoite: Kulloon kartanontie 145, 06830 Porvoo
Kaupunginosa: Kulloo
Ympäristö: Kartanon piha-alue
Rakennus
Pinta-alat: 300 m²
Rakennustyyppi: Teollisuus – ja pienteollisuustalot
Rakennusvuosi: 2001
Huoneistoselitelmä: Elintarvike- ja varastotila
Kerros: Katutaso + ullakko
Kunto, varusteet ja palvelut: Hyvä kunto, nosto-ovia, lattiakaivo, kylmiötä 2 kpl, vesipiste, wc, voimavirtapistokkeita, toimistotila, lisävarastotila ullakolta
Energiatodistus: Ei lain edellyttämää todistusta
Vapautuu: Heti vapaa
Pysäköinti: Pihalla
Vuokrahinta ja kulut
Kuukausivuokra: 2’500 €/kk + alv
Vesimaksu: Mittauksen mukaan
Sähkö: Mittauksen mukaan
Lämmitys: Vuokralainen maksaa (maalämpö)
Autopaikkamaksu: Ei ole
Muuta: 3kk vuokraa vastaava summa ja luottotiedot oltava kunnossa. Minimi sopimuskausi 12kk
Vapautuu
Heti
Rakennusvuosi
2001
Kerros
1 / 2
Katutasossa
Näkyvällä paikalla
Jaettavissa
Ota yhteyttä
Tilat.fi
KTM, LKV Antti Soivio
Näytä puhelinnumero
0400 446 553
OTM, LKV Riikka Tuominen
Näytä puhelinnumero
0400 551 790
KTM, LKV Maria-Sofia Puhakka
Näytä puhelinnumero
0400-150330
HTM, LKV Aleksandra Riki
Näytä puhelinnumero
0400-211288
Tilat.fi Oy on toimitilojen välitykseen erikoistunut yritys.
http://www.tilat.fiPyydä lisätietoa
