Vuokrataan toimistotilat - Tampere
Aarporankatu 15 B, Lahdesjärvi, 33840 Tampere #10810414
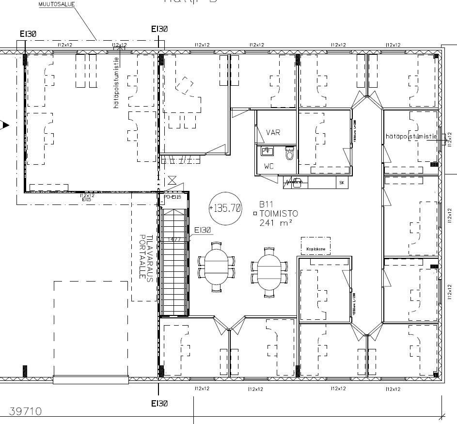
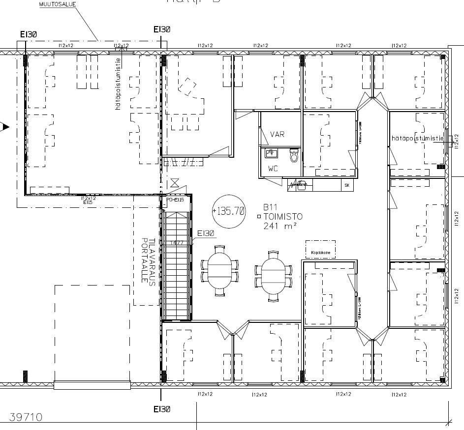
Hyvällä sijainnilla, kehätien vierestä, vuokrataan noin 241m2 2krs. toimistotilaa. Pihassa autopaikoitus sekä sähköautoille latauspisteet. Tilassa on viilentävä ilmalämpöpumppu. Ikkunoissa on sälekaihtimet. Led-valaistus.
Tila koostuu 13:sta huoneesta, isommasta neuvotteluhuoneesta, avotilasta, vessasta ja keittonurkasta.
Vuokrapyyntö on 8,5 €/m2. Vuokraan lisätään arvonlisävero. Vuokra ja tilan remontit/muutostyöt neuvoteltavissa vuokralaisen tarpeen ja kokonaisuuden mukaan. Vesimaksusta neuvotellaan tilannekohtaisesti. Vuokralainen ottaa oman sähkösopimuksen tilaan. Lämmitys sisältyy vuokraan.
Onko tämä kiinnostava toimitila? Ota yhteyttä välittäjään Väinö Kähkönen, 050 389 6811 tai vaino.kahkonen@op.fi
Vuokra on 8,5 €/m2 alv 0%. Vuokraan lisätään arvonlisävero. Vuokralainen ottaa oman sähkösopimuksen, vesi kulutuksen mukaan. Lämmitys sisältyy vuokraan.
Vuokratta tila sijaitsee kiinteistön toisessa kerroksessa, lukitusta ovesta tullaan aulaan josta on suorat portaat ylös vuokrattavaan tilaan. Lämmitys sisältyy vuokraan. Kiinteistö on valmistunut 2006.
OP Koti Sisä-Suomi Oy LKV
Tampere
Hämeenkatu 12
33100 TAMPERE
Ma - Pe klo 10. - 16.30
Väinö Kähkönen
Vuokravälittäjä, toimitilavälittäjä, LKV, KiLAT
Näytä puhelinnumero
050 389 6811
