Myydään tuotantotilat, varastotilat - Kaarina
Krossinkatu 12, Krossi, 20780 Kaarina #10809599
Erittäin tehokkaasti suunniteltu ja monikäyttöinen toimitilahuoneisto Kaarinan Krossista. Rakennus on juuri valmistunut ja tilat etsivät nyt ensimmäistä käyttäjää. Kiinteistö sijaitsee näkyvällä paikalla Krossinkadun varrella.
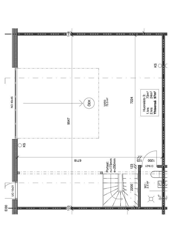
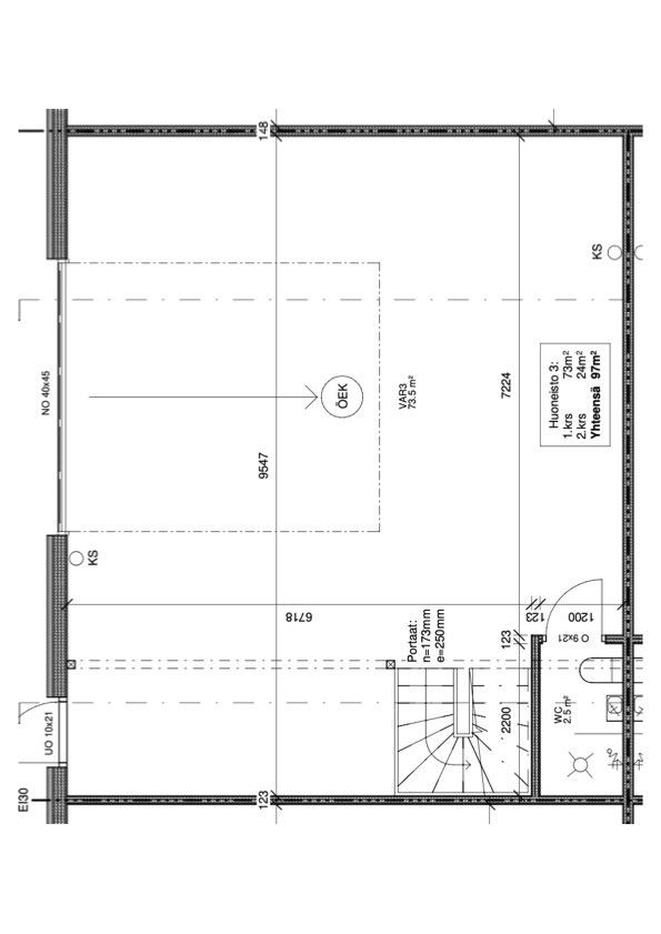
Myytävän huoneiston katutason kerroksessa on 73 m2. Hallitila on varustettu öljyn- ja hiekanerotuskaivolla. Lattiassa on Master-pinnoitus. Seinät ovat 1,2 metrin korkeuteen muovipinnoitettua, veden kestävää vaneria.
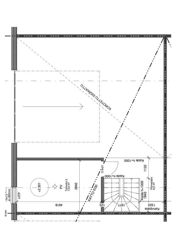
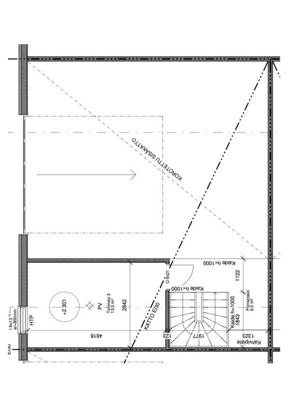
Toisessa kerroksessa on 24 m2 toimisto- ja keittiötilat. Alakerran wc-tiloissa on myös suihku. Tilat ovat laadukkaasti rakennettu.
Huoneistossa on valokuitu ja valmius sähköauton latausasemalle. Tiloissa on ilmalämpöpumppu ja koneellinen ilmanvaihto lämmön talteenotolla. Nosto-ovi toimii sähköisesti. Lisäksi piha-alueella on tallentava kameravalvonta. Huoneistoon kuuluu kaksi autopaikkaa.
Yhtiössä on erittäin edullinen hoitovastike 123,19 €/kk sis. alv 25,5 % (hoitovastikearvio 1,27 €/m2 sis. alv 25,5 %).
Huoneistoon on mahdollista jättää yhtiölainaa noin 51 000,00 €. Tarkemmat tiedot yhtiövastikkeista saa välittäjältä.
Katso kohteen esittelyvideo https://www.youtube.com/watch?v=YneFpDuZLpA
Uudiskohde
RHG Real Estate
Hämeenkatu 2 B20, 20500 Turku
Juho Viljanen
LKV
Näytä puhelinnumero
040 741 7522
