Vuokrataan toimistotilat - Helsinki
Malminkartanonkuja 4, Konala, 00390 Helsinki #10809293
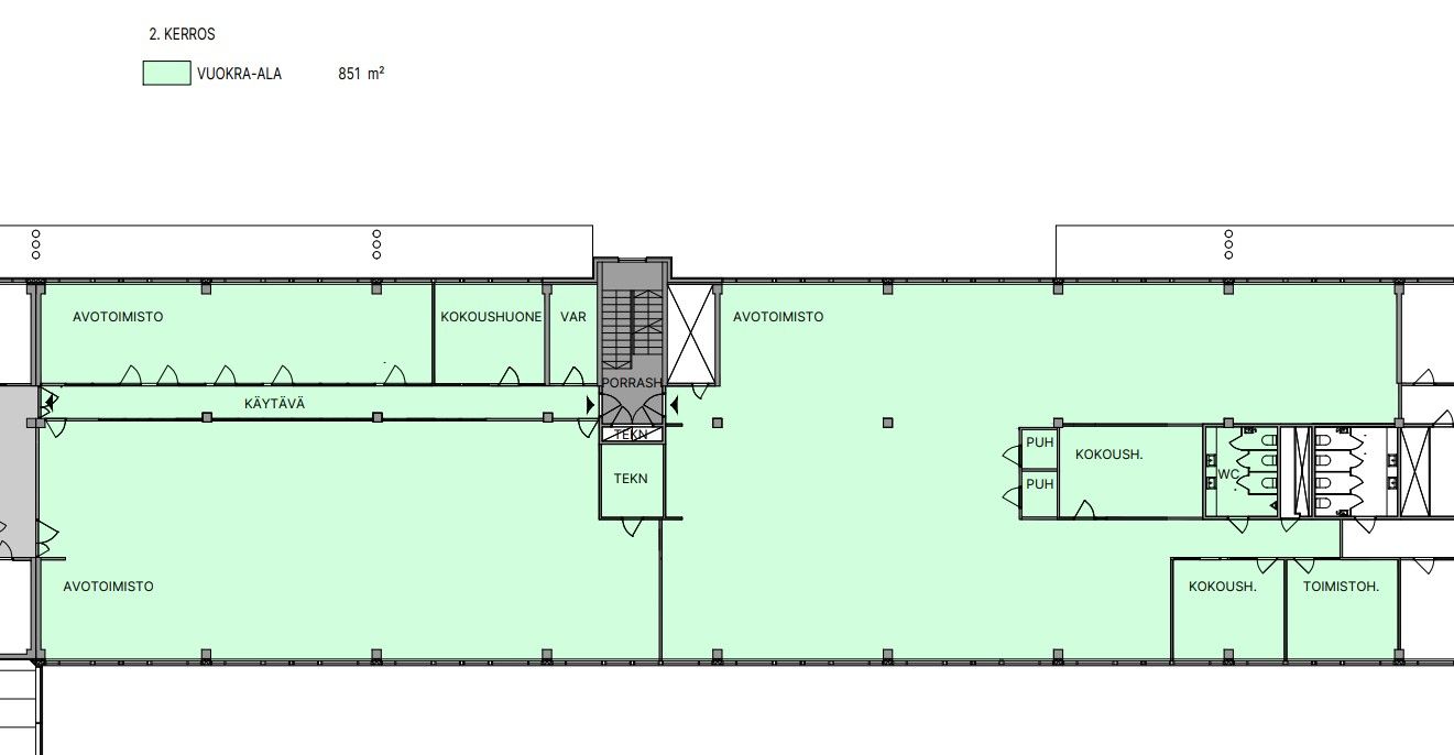
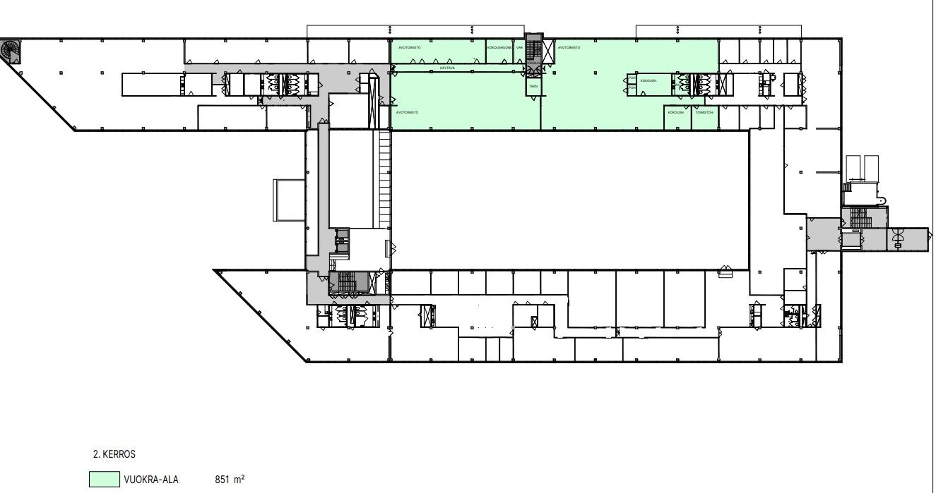
Vuokrataan edustavaa alkaen 851m2 toimistotilaa Konalasta. Kiinteistössä on erittäin kattavat business parkeille tunnusomaiset palvelut, kuten lounasravintola, 24/7 valvonta, lämmin parkkihalli sekä kuntosali ja – palloiluhalli. Lämpimässä parkkihallissa on myös erillinen pyöräparkki polkupyöräilijöille. Kiinteistön vuokralaiset voivat vuokrata edulliseen tuntihintaan ajanmukaisia neuvottelutiloja sekä noin 50 paikkaisen erillisen auditorion käyttöönsä. Neuvottelutiloja on useita ja ne sopivat 6-18 hengen kokouksiin. Yhdessä neuvotteluhuoneessa on myös videoneuvottelumahdollisuus.
Toimistotiloissa on palkkijäähdytys sekä asennuslattia, jotka takaavat tilojen teknisen toimivuuden sekä vapaan muunneltavuuden. Varastorakennuksen puolelta on tarvittaessa mahdollisuus vuokrata varastotiloja. Toimistorakennuksesta on kulku sisäkautta varastorakennuksen puolelle. Vuokratilat jaettavissa tarpeen mukaan. Katso pohjakuva liitetiedoston linkistä.
SOITA ja SOVI ESITTELY, palvelumme on maksutonta.
Kiinteistössä on 24/7 valvonta. Varastorakennuksen puolella sijaitsee Fazer Food & Co lounasravintola, joka on avoinna arkisin klo 08.00-14.00 välillä. Ravintolassa on tarjolla lounaan lisäksi myös aamiaista ja heidän kauttaan onnistuu kokoustarjoilujen tilaus. Kuntosali, palloiluhalli ja golf-huone ovat kiinteistön vuokralaisten vapaassa käytössä. Kuntosalin ja palloiluhallin yhteydessä on naisten ja miesten saunalliset pukuhuoneet ja sosiaalitilat.
Hissi
Senaatin Notariaatti Oy LKV
Lämmittäjänkatu 4 A
FIN-00880 Helsinki
Tel:
Näytä puhelinnumero
+358 9 7745 100
