Uudiskohde
Vuokrataan toimistotilat - Helsinki
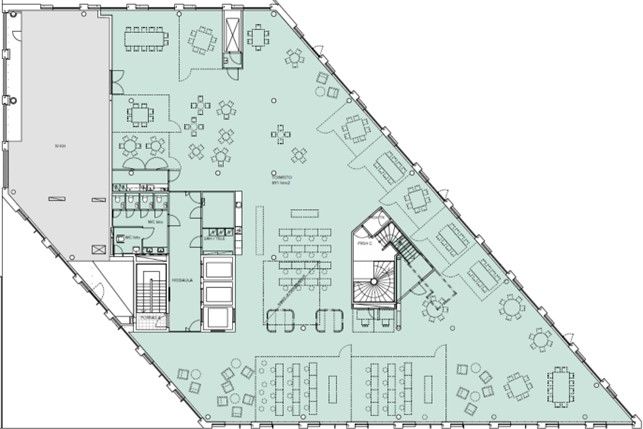
Lyyra, Toinen Linja 7, Kallio, 00530 Helsinki #10808972
Vuokrataan vastavalmistuneen Lyyran kahdeksannen kerroksen toimistotila, jossa pääset nauttimaan modernista toimistotilasta ja upeista näkymistä Eläintarhanlahdelle. Tila on jaettavissa kahdelle ja se remontoidaan vuokralaisen tarpeiden mukaisesti.
Osoite
Toinen Linja 7, 00530 Helsinki
Tilatyyppi
Toimistotilaa
891 m2
Muuta
Lyyra on ylihuomisen Helsinkiä edustava tieteen, tutkimuksen ja yritysten kohtaamispaikka. Vuonna 2024 Hakaniemen ja Kallion rajalle nousseesta Lyyrasta tuli tervetullut uusi keskipiste alueelle, joka on yksi kaupungin elävimmistä. Lyyra on paitsi inklusiivisuuden, myös vihreän rakentamisen edelläkävijä. Lyyran toimistotilat ja hotelli kantavat LEED Platinum -sertifikaatteja, jotka osoittavat, että rakennukset on suunniteltu kestävän kehityksen periaatteiden mukaisesti.
Kattotiloja käytetään mahdollisimman laajasti viherkattoina, jotka luovat viihtyisyyttä ja tuovat palan luontoa lähelle rakennusta. Toimistotilat puolestaan on suunniteltu helposti vuokralaisten erilaisiin tarpeisiin muunneltavaksi niin, että joustavia tiloja voidaan käyttää tehokkaasti tulevina vuosikymmeninä käyttäjien tarpeiden muuttuessa.
Ainutlaatuisen sijaintinsa vuoksi Lyyra mahdollistaa kaikille kävijöille lyömättömät mahdollisuuden julkisen liikenteen käyttöön.
Rakennusten energiakulutusta on pyritty minimoimaan ja rakennusvaiheesta alkaen on tähdätty korkeaan energiatehokkuuteen. Kiinteistön omistaja on ensimmäisten joukossa sitoutunut ympäristöministeriön ja RAKLI ry:n kestävän purkamisen Green deal -sopimukseen. Lyyra-hankkeessa tavoiteltu purkumateriaalin 95 prosentin kierrätysastetta.
Kattotiloja käytetään mahdollisimman laajasti viherkattoina, jotka luovat viihtyisyyttä ja tuovat palan luontoa lähelle rakennusta. Toimistotilat puolestaan on suunniteltu helposti vuokralaisten erilaisiin tarpeisiin muunneltavaksi niin, että joustavia tiloja voidaan käyttää tehokkaasti tulevina vuosikymmeninä käyttäjien tarpeiden muuttuessa.
Ainutlaatuisen sijaintinsa vuoksi Lyyra mahdollistaa kaikille kävijöille lyömättömät mahdollisuuden julkisen liikenteen käyttöön.
Rakennusten energiakulutusta on pyritty minimoimaan ja rakennusvaiheesta alkaen on tähdätty korkeaan energiatehokkuuteen. Kiinteistön omistaja on ensimmäisten joukossa sitoutunut ympäristöministeriön ja RAKLI ry:n kestävän purkamisen Green deal -sopimukseen. Lyyra-hankkeessa tavoiteltu purkumateriaalin 95 prosentin kierrätysastetta.
Vapautuu
Kysy
Rakennusvuosi
2024 (uudiskohde)
Kerros
8
Uudiskohde
Ota yhteyttä
Juhola Asset Management Oy
Itsehallintokuja 4 02600 Espoo
Näytä puhelinnumero
040 4551 390
Leena Juhola
Pyydä lisätietoa
