Vuokrataan toimistotilat - Helsinki
Opus Business Park - Opus 3, Hitsaajankatu 20, Herttoniemi, 00810 Helsinki #10808208
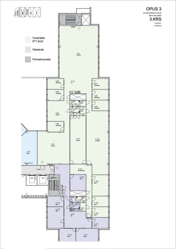
Nykyaikainen ja korkealaatuinen kolmannen kerroksen 571,5 m² toimisto Opus 3-talosta, Herttoniemen Opus Business Parkista.
Osoite
Hitsaajankatu 20, 00810 Helsinki
Tilatyyppi
Toimistotilaa
571,5 m2
Pohjapiirros
Kiinteistö
Opus Business Parkissa vuokrattavana isokokoinen toimistotila kiinteistön kolmannessa kerroksessa. Tilaa on mahdollista muokata vuokralaisen tarpeiden ja toivoiden mukaan.
Opus 3 -rakennus on osa Opus Business Parkia, joka sijaitsee Herttoniemessä vain 10 minuutin päässä itään Helsingin keskustasta.
Rakennuksessa on 8 100 neliömetriä vuokrattavaa tilaa viidessä kerroksessa. Jokaisessa kerroksessa on joustava pohjaratkaisu ja laadukkaita toimistotiloja.
Opus 3:een pääsee helposti autolla ja bussilla sekä metrolla, jonka lähin asema sijaitsee lyhyen kävelymatkan päässä. Autolla liikkuville löytyy pysäköintipaikkoja rakennuksessa sijaitsevasta pysäköintihallista.
Pohjakerroksessa on ruokakauppa ja yhteisiä tiloja, muu osa rakennuksesta on toimistokäytössä. Opus Business Park tarjoaa monia suosittuja palveluja ravintola- ja kokouspalveluiden lisäksi. Alueella on myös autopesu ja hammaslääkäri ja Opus Business Parkista on suora yhteys ruokakauppaan.
Ilmoituksen sisäkuvat ovat yleiskuvia kiinteistön eri tiloista.
Opus 3 -rakennus on osa Opus Business Parkia, joka sijaitsee Herttoniemessä vain 10 minuutin päässä itään Helsingin keskustasta.
Rakennuksessa on 8 100 neliömetriä vuokrattavaa tilaa viidessä kerroksessa. Jokaisessa kerroksessa on joustava pohjaratkaisu ja laadukkaita toimistotiloja.
Opus 3:een pääsee helposti autolla ja bussilla sekä metrolla, jonka lähin asema sijaitsee lyhyen kävelymatkan päässä. Autolla liikkuville löytyy pysäköintipaikkoja rakennuksessa sijaitsevasta pysäköintihallista.
Pohjakerroksessa on ruokakauppa ja yhteisiä tiloja, muu osa rakennuksesta on toimistokäytössä. Opus Business Park tarjoaa monia suosittuja palveluja ravintola- ja kokouspalveluiden lisäksi. Alueella on myös autopesu ja hammaslääkäri ja Opus Business Parkista on suora yhteys ruokakauppaan.
Ilmoituksen sisäkuvat ovat yleiskuvia kiinteistön eri tiloista.
Vapautuu
Heti
Rakennusvuosi
2006
Kerros
3 / 5
Energiatehokkuusluokka
Ei lain edellyttämää energiatodistusta
Ympäristöluokitus
BREEAM In-Use Very Good
Näkyvällä paikalla
Hissi
Ota yhteyttä
ScanReal Oy LKV
Opus Business Park
Hitsaajankatu 24
00810 Helsinki
info@scanreal.fi
Puh:
Näytä puhelinnumero
020 730 8830
Sopivat toimitilat yhdellä otolla!
Kartoitamme toimitilatarpeesi ja etsimme yrityksellesi parhaiten sopivat vapaat toimitilat. Koska vuokranantajat maksavat palvelumme, on tämä yrityksellesi veloituksetonta.
Palvelumme on tilanhakijalle ilmainen
Pyydä lisätietoa
