Vuokrataan liiketilat - Helsinki
Kaisaniemenkatu 4, Kluuvi, 00100 Helsinki #10807005
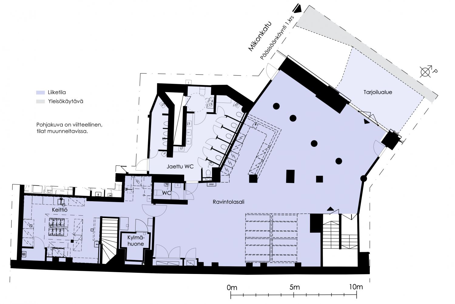
Ravintolatila Fennian suositun Ruoka & Mat -food courtin vieressä omalla asiakasalueella. Viereisessä food courtissa toimivat premium-kebabeja tarjoava Baba Döner, trooppisiin poke-annoksiin erikoistunut Freshman sekä elämyksellisen ruoanvalmistuksen nimiin vannova Sizzle Station, nepalilaisia herkkuja tarjoava Onni Nepal ja herkullisia burgereita tarjoava Shoku burger. Ravintolan naapurissa toimii FLQ, jolla on tarjolla sushibuffet.
Vuonna 1929 valmistunut rakennus Kaisaniemenkatu 4:ssä tunnetaan myös nimellä Paulon talo. Herman Paulonin rakennuttama talo on aikansa arkkitehtoninen taidonnäyte, jossa yhdistyvät uusklassistiset ja funktionalistiset tyylipiirteet. Talo toimi alun perin niin asuinrakennuksena kuin liiketiloinakin, ja se oli suunniteltu palvelemaan kasvavaa Helsingin liikekeskustaa.
Tänä päivänä kiinteistön katutasossa on liiketiloja ja ylemmissä kerroksissa on toimistotilaa. Kahdeksankerroksisen kiinteistön tilat ovat valoisat ja helposti muunneltavissa yrityksen tarpeiden mukaisesti. Kiinteistössä on tehty putkiremontti vuoden 2025 aikana ja tämän yhteydessä uusittiin samalla kaikkien tilojen wc-pinnat sekä kalusteet.
Kiinteistö palvelee erinomaisesti hyviä kulkuyhteyksiä ja keskustan palvelutarjontaa arvostavaa yritystä. Helsingin yliopiston metroaseman yläpuolella sijaitsevalle kiinteistölle on erinomaiset julkisen liikenteen yhteydet ympäri pääkaupunkiseutua. Keskeisen sijainnin ansiosta myös kaikki Helsingin keskustan palvelut ovat lyhyen kävelymatkan etäisyydellä.
Kaikille Fennia-korttelin kiinteistöille on myönnetty BREEAM In-Use Excellent -tason ympäristösertifikaatti ja koko kortteli toimii 100 % päästöttömällä energialla, kuten tuulisähköllä ja uusiutuvalla kaukolämmöllä.
Lähimmälle juna-asemalle 300 m
Lähimmälle metroasemalle 150 m
Lähimmälle raitiovaunupysäkille 100 m
Lentokentälle 30 min
Sponda Oy
Yrjönkatu 29C, 00100 Helsinki
Näytä puhelinnumero
020 43131
Sirpa Vuorimaa
Retail leasing
Näytä puhelinnumero
+358 40 7654 222
Laura Toponen
Senior Leasing Manager
Näytä puhelinnumero
+35850 413 4223
Sponda Oy
https://www.sponda.fi