Vuokrataan toimistotilat, tuotantotilat, varastotilat - Naantali
Linkkikatu 9, 21100 Naantali #10806977
1.7.2025 vapautuu 2200m2 teollisuushalli Naantalin Luolalassa
Osoite
Linkkikatu 9, 21100 Naantali
Tilatyyppi
Toimistotilaa
310 m2
Tuotantotilaa
1800 m2
Varastotilaa
90 m2
Yhteensä
2200 m2
Vuokra
16000€/kk+alv +käyttökulut
Kiinteistö
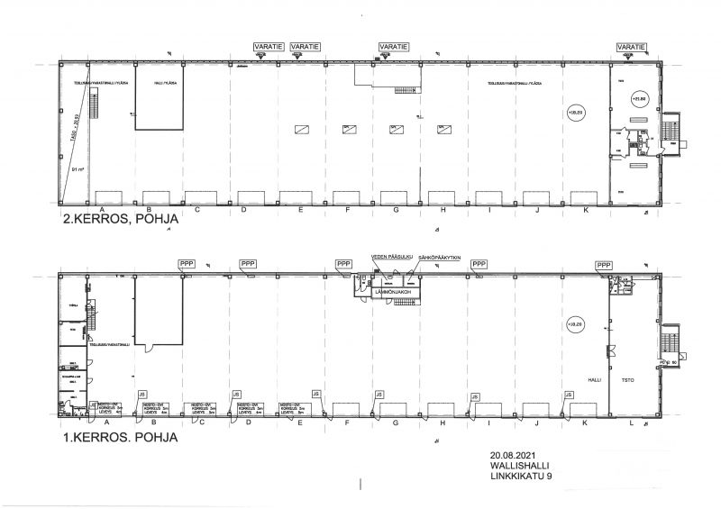
Naantalin Luolalassa vapautuu erittäin siisti 2200m2 teollisuushalli 1.7.2025.
Hallissa on sisäkorkeus 6 m. 11 Nosto-ovea 5x4,4-5,0m. Hallissa on siltanosturi 2x2tn 65metrin radalla.
Kaukolämpö lattialämmityksellä.
Toimistotilaa 2 kerroksessa yht. n 300m2. Asianmukaiset tauko- ja sosiaalitilat.
Aidattu asfaltoitu piha-alue. Kaksi katuliittymää.
Hallissa on sisäkorkeus 6 m. 11 Nosto-ovea 5x4,4-5,0m. Hallissa on siltanosturi 2x2tn 65metrin radalla.
Kaukolämpö lattialämmityksellä.
Toimistotilaa 2 kerroksessa yht. n 300m2. Asianmukaiset tauko- ja sosiaalitilat.
Aidattu asfaltoitu piha-alue. Kaksi katuliittymää.
Vapautuu
01.07.2025
Katutasossa
Näkyvällä paikalla
Siltanosturi
Ota yhteyttä
X-Index Oy
Näytä puhelinnumero 0400 861 282
Vähäheikkiläntie 56 C 70
20810 Turku
Pyydä lisätietoa
