Vuokrataan toimistotilat - Helsinki
Annankatu 34, Kamppi, 00100 Helsinki #10806641
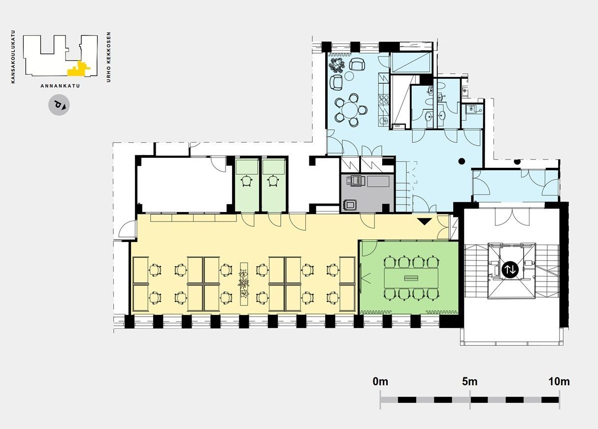
Valoisa toimistotila näkymillä Annankadulle. Tila koostuu avokonttorista, neuvottelutilasta sekä kahdesta vetäytymistilasta. Omien tilojen lisäksi toimistoon kuuluu yhteiskäyttöinen taukotila keittiöineen, aula skeä wc:t. Toimistotila on kooltaan 120 m2. Vuokra maksetaan omasta 120 m2 tilasta sekä puolesta (29.5 m2) yhteisestä tilasta, yhteensä 149.5 m2.
Elias Paalasen piirtämä kiinteistö on valmistunut 1950-luvulla. Rakennuttajansa Rautakirjan mukaan alun perin Lehtitaloksi nimetyn punatiilisen toimistorakennuksen julkisivu on alkuperäisessä asussaan. Tämän helpompaa ei saavutettavuus keskustassa voi olla - Kampin keskus, metro, Narinkkatori yms. aivan vieressä.
Me Croisettella autamme teitä löytämään teille parhaat tilat! Olemme puolueettomia asiantuntijoita ja tunnemme toimitilamarkkinat, talot sekä tilat vankalla kokemuksella. Meillä on välityksessä kaikki toimitilat ja tiedämme niiden alustavat vuokratasot.
Tehtävämme on tehdä toimitilahaustanne onnistunut ja helppo. Saamme palkkiomme kiinteistönomistajalta, joten sinulle palvelumme on täysin maksuton.
Hissi
Croisette Real Estate Partner
Erottajankatu 5 A 6, 00130 Helsinki
Näytä puhelinnumero
+358 400 585 857
Croisette Vuokraus
Näytä puhelinnumero
+358400585857
