Vuokrataan liiketilat - Helsinki
Bertha Pauligin Katu 7, LH 1A, Aurinkolahti, 00990 Helsinki #10806565
Vuokrattavana uusi liiketila Aurinkolahden Kahvikorttelissa.
Alue kasvaa ja kehittyy voimakkaasti asuntorakentamisen myötä, ja palveluiden kysyntä kasvaa jatkuvasti.
Nyt on erinomainen tilaisuus tuoda oma liiketoiminta mukaan alueen kehitykseen.
Tila soveltuu monenlaiseen käyttöön, kuten kauneuden- ja terveydenhoitoalan toimintaan, parturi-kampaamoksi, toimistoksi tai myymäläksi.
Tilaa on myös mahdollista käyttää kahviona, mutta ei ravintolakäyttöön.
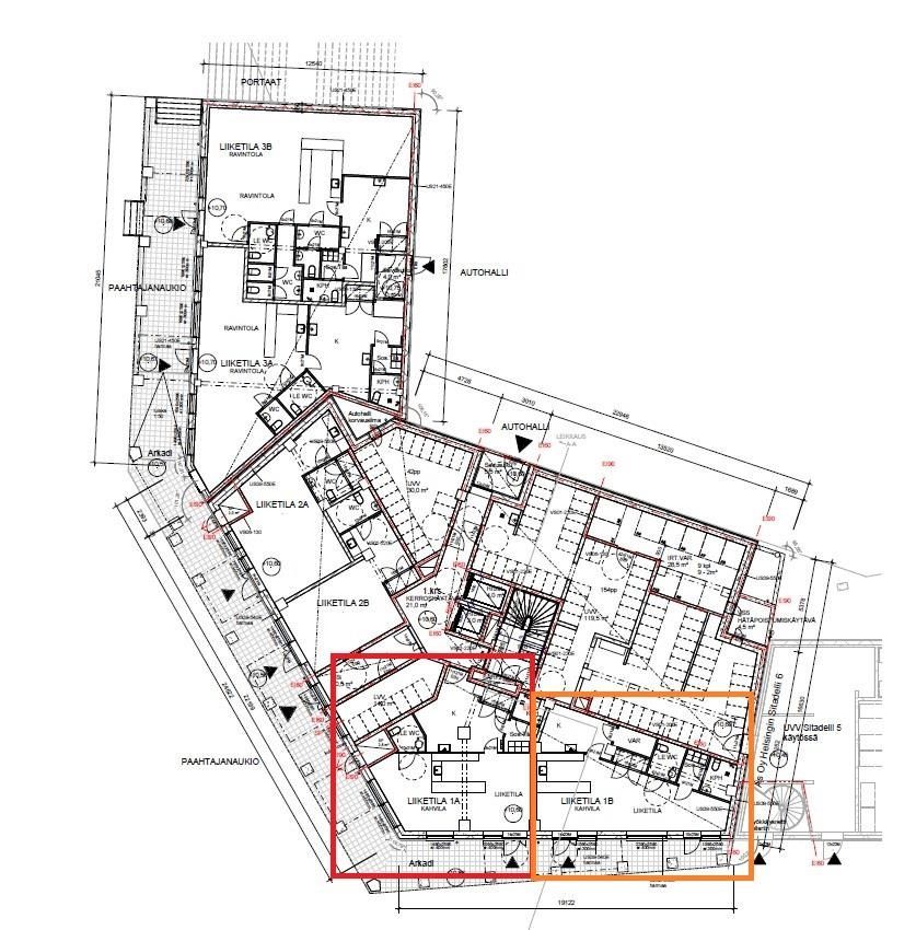
Liiketila on mahdollista yhdistää viereiseen tilaan 1B, jonka pinta-ala on 61,5 m². Yhdistettynä kokonaispinta-ala on 126 m².
Tilassa on varaukset minikeittiölle tai keittiölle.
Investoinnit ja lisätyöt, kuten keittiön rakentaminen, seinien maalaukset, vesipisteet ja ilmalämpöpumppu, ovat erillisveloitettavia
Vakuus vastaa 2-4 kk alv:sta vuokraa.
Lisätietoja:
Mika Nyman 0400347758 tai mika.nyman@op.fi
Oma tontti.
Kaukolämpö. Vesikiertoinen patterilämmitys, märkätiloissa sähk. lattialämmitys.
Koneellinen tulo- ja poistoilmanvaihtojärjestelmä lämmöntalteenotolla.
Liikehuoneisto 1A: 64,50 m²
Mahdollista yhdistää liiketilaan 1B, pinta-alaltaan 61,5 m².
Vakuus 2-4 kk alv:sta vuokraa vastaava summa.
Investoinnit ja lisätyöt erillisveloitettavia.
Esim. keittiö, seinien maalaukset, vesipisteet, ilmalämpöpumppu.
Tilassa ei ole suunniteltuja lattiakaivoa eikä rasvakanavaa.
Liikehuoneiston pääsisäänkäynti kadulta, toinen uloskäynti porrashuoneeseen.
Ei erillisiä asiakaspaikkoja. Kadunvarsipysäköinti Bertha Pauligin Kadulla.
Vuokrausehdot:
Vuokralainen maksaa vedestä todellisen kulutuksen mukaisesti. Laskutus yleisesti 2-4 krt vuodessa.
Vuokralainen tekee oman sähkösopimuksen.
Vuokraan sisältyy maksuton Telian 10M taloyhtiölaajakaistaliittymä. Lisänopeudet maksullisia.
Vuokralainen maksaa erillisen jätekulun. Jätetilat ovat yhteisiä asukkaiden kanssa:
Pienestä jätemäärästä ei välttämättä seuraa erillistä jätekulua (pieni kampaamo tai toimisto)
Suuremmasta jätemäärästä aiheutuu erillinen jätemaksu (kahvila, myymälä, varasto/tukku)
Jätekustannus arvioidaan ja sovitaan sopimusneuvottelujen yhteydessä.
Autopaikat autohallissa vuokrattava aina erikseen. Autopaikkoja ei sisällytetä vuokraan. Autopaikan
hinta määritellään myöhemmin, yleinen kustannustaso 60-150 €/kk, alv 0. Autohallista pääsy sisätiloja
pitkin liikehuoneistoihin.
Helsigin Sitadelli 5 on asuinkerrostalo. Liikehuoneistojen yläpuolella asutaan.
Vuokralaisen toiminnan ei haluta aiheuttavan häiriötä asukkaille, eikä asiakkaiden haluta aiheuttavan häiriötä tai sotkua.
OP Koti Uusimaa Oy LKV
Toimitilapalvelut
Arkadiankatu 23
00100 HELSINKI
Mika Nyman
Toimitilavälittäjä, Kiinteistöarvioija, LKV, YKV, AKA/KHK
Näytä puhelinnumero
0400 347 758
