Vuokrataan toimistotilat, liiketilat, muut tilat - Tampere
Haarlankatu 4, Onkiniemi, 33230 Tampere #10806238
Haarlan paperitehdaskiinteistössä monikäyttöinen tila vapaana
Osoite
Haarlankatu 4, 33230 Tampere
Tilatyyppi
Toimistotilaa
220 m2
Liiketilaa
220 m2
Muuta tilaa
220 m2
Yhteensä
220 m2
Pysäköinti
Pihassa
Muuta
Haarlan entisessä paperitehdaskiinteistössä monikäyttöistä toimistotilaa
Bertel Strömmerin suunnittelemassa tehdasrakennuksessa toimi vuosina 1920-1989 Kauppaneuvos Rafael Haarlan perustama Haarlan Paperitehdas Oy.
Nykyään kiinteistössä toimii lukuisia eri alojen toimijoita, ja tilat on remontoitu uudenaikaisiksi, kuitenkin vanhaa tehdasrakennusta kunnioittaen.
Rakennus sijaitsee Rantatunnelin länsipuolen tunnelin suulla ja sinne on erittäin hyvät kulkuyhteydet niin omalla autolla kuin ratikalla tai paikallisbussillakin. Pyöräilyreitti kulkee vieressä. Näsijärven rantaan, Santalahden tapahtumapuistoon ja Särkänniemeen on lyhyt matka, samoin keskustan ja Lielahden alueen palveluihin. Paasikiven tien liikenne on erittäin vilkas ja näkyvyys kiinteistölle erittäin hyvä.
Pihassa on runsaasti pysäköintitilaa ja asiakaspysäköinnit sekä peruspysäköintipaikat vuokralaisille ovat ilmaisia. Lämmitystolpallisia paikkoja vuokrataan hyvin kohtuulliseen hintaan. Vanhassa pihan kaarihallissa sijaitsee lounas-kahvio.
Nyt vapaana monikäyttöistä ikkunallista toimitilaa pihassa sijaitsevan punatiilisen kaarihallin alakerrassa. Kaarihallin yläkerrassa sijaitsee lounas-kahvio ja myymälä. Tämä pihaluiskan tai loivien rappusten alapäässä sijaitseva tila soveltuu hyvin monenlaiseen käyttötarkoitukseen. Se sopii myymäläksi, toimistoksi, harrastetilaksi, palveluiden tarjoajille yms.
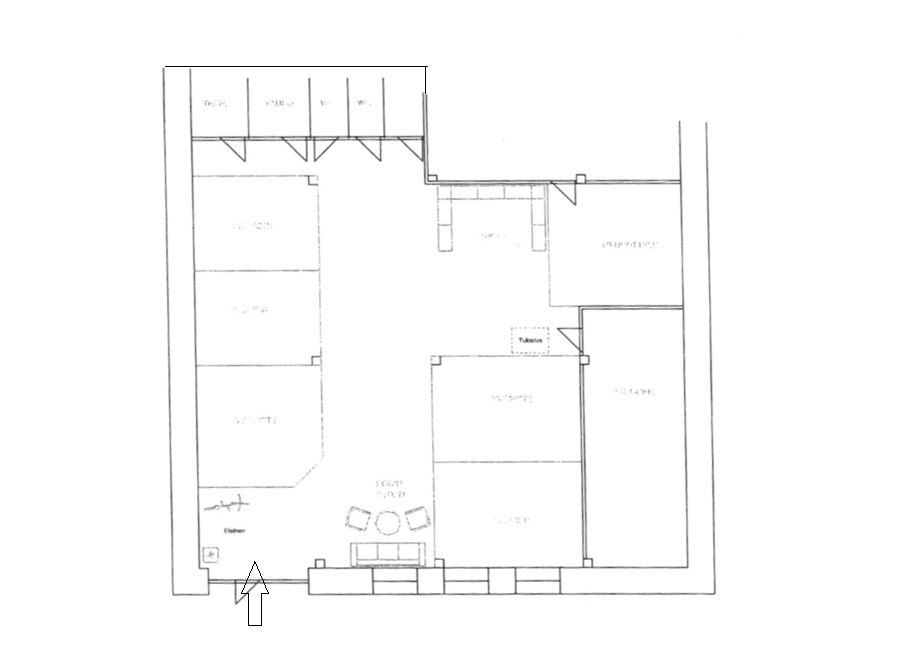
Tilan koko on 220 m2. Se koostuu avotilasta, useista erikokoisista huoneista ja keittiö- sekä wc-tiloista. Lisäksi tilassa on siivouskomero, pukuhuone ja suihku.
Osa huoneista lasiseinin ja osa umpinaisia. Hyvä ilmanvaihto ja jäähdytys. Tilaa on mahdollista räätälöidä käyttäjän tarpeisiin sopivaksi.
Tämä on kohtuuhintaista toimitilaa.
Tervetuloa tutustumaan, varaathan välittäjältä oman esittelyaikasi. Voit kysyä meiltä myös muita sopivia vaihtoehtoja, kauttamme löydät juuri Teidän tarpeisiinne sopivat tilat. Palvelumme on tilanhakijalle veloitukseton!
Bertel Strömmerin suunnittelemassa tehdasrakennuksessa toimi vuosina 1920-1989 Kauppaneuvos Rafael Haarlan perustama Haarlan Paperitehdas Oy.
Nykyään kiinteistössä toimii lukuisia eri alojen toimijoita, ja tilat on remontoitu uudenaikaisiksi, kuitenkin vanhaa tehdasrakennusta kunnioittaen.
Rakennus sijaitsee Rantatunnelin länsipuolen tunnelin suulla ja sinne on erittäin hyvät kulkuyhteydet niin omalla autolla kuin ratikalla tai paikallisbussillakin. Pyöräilyreitti kulkee vieressä. Näsijärven rantaan, Santalahden tapahtumapuistoon ja Särkänniemeen on lyhyt matka, samoin keskustan ja Lielahden alueen palveluihin. Paasikiven tien liikenne on erittäin vilkas ja näkyvyys kiinteistölle erittäin hyvä.
Pihassa on runsaasti pysäköintitilaa ja asiakaspysäköinnit sekä peruspysäköintipaikat vuokralaisille ovat ilmaisia. Lämmitystolpallisia paikkoja vuokrataan hyvin kohtuulliseen hintaan. Vanhassa pihan kaarihallissa sijaitsee lounas-kahvio.
Nyt vapaana monikäyttöistä ikkunallista toimitilaa pihassa sijaitsevan punatiilisen kaarihallin alakerrassa. Kaarihallin yläkerrassa sijaitsee lounas-kahvio ja myymälä. Tämä pihaluiskan tai loivien rappusten alapäässä sijaitseva tila soveltuu hyvin monenlaiseen käyttötarkoitukseen. Se sopii myymäläksi, toimistoksi, harrastetilaksi, palveluiden tarjoajille yms.
Tilan koko on 220 m2. Se koostuu avotilasta, useista erikokoisista huoneista ja keittiö- sekä wc-tiloista. Lisäksi tilassa on siivouskomero, pukuhuone ja suihku.
Osa huoneista lasiseinin ja osa umpinaisia. Hyvä ilmanvaihto ja jäähdytys. Tilaa on mahdollista räätälöidä käyttäjän tarpeisiin sopivaksi.
Tämä on kohtuuhintaista toimitilaa.
Tervetuloa tutustumaan, varaathan välittäjältä oman esittelyaikasi. Voit kysyä meiltä myös muita sopivia vaihtoehtoja, kauttamme löydät juuri Teidän tarpeisiinne sopivat tilat. Palvelumme on tilanhakijalle veloitukseton!
Vapautuu
Kysy
Kerros
0.
Ota yhteyttä
Tuloskiinteistöt Oy
Finlaysoninkatu 4, 33210 Tampere
Näytä puhelinnumero
050 502 4639
Sanna Eerilä-Vänni
Director, Partner
Näytä puhelinnumero
+358 50 5024639
Pyydä lisätietoa
