Videoesittely
Vuokrataan toimistotilat - Helsinki
Mannerheimintie 103, Ruskeasuo, 00280 Helsinki #10805307
Modernia toimistotilaa keskeisellä paikalla Mannnerheimintien päädyssä.
Osoite
Mannerheimintie 103, 00280 Helsinki
Tilatyyppi
Toimistotilaa
800 m2
Tilajako
Jaettavissa
Tilaa on mahdollista jakaa muutamalle käyttäjälle.
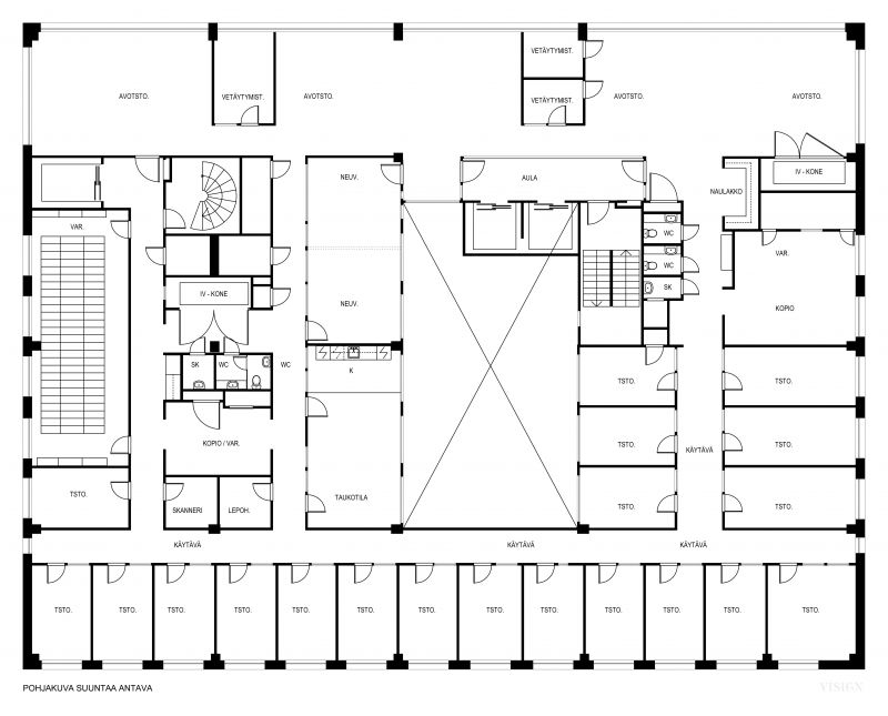
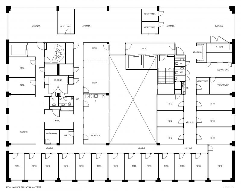
Pohjapiirros
Kiinteistö
Muuttovalmista toimistotilaa rakennuksen 5. tai 6. kerroksesta. Kerrosala on 800 m2 jota on mahdollista vuokrata myös jakaa muutaman käyttäjän kesken. Tiloja voidaan muokata täysin myös vuokralaisen tarpeita vaativiksi. Toimistotilassa on avotilaa, toimistohuoneita, neuvottteltuhuoneita, keittiö, taukotila ja wc:t.
Nauvontien puoleisesta toimistotilasta upea näköala suoraan edessä olevaan siirtolapuutarhaan.
Toimistokerrokseen tulee myös tavarahissi suoraan kiinteistön lastauslaiturilta joka takaa helpon logistiikan tavaroiden kuljettamiseen.
Kolmanteen kerrokseen on rakennettu yhteiskäyttötilat jotka on jokaisen talossa olevan vuokralaisen vapaassa käytössä. Tämän lisäksi yrityksen on mahdollista saada CO-working passeja VALO Hotel & Work:n kiinteistöön.
Katso kohde-esitteen viimeisistä valokuvista kuvia juuri remontoidusta toimistotilasta.
Nauvontien puoleisesta toimistotilasta upea näköala suoraan edessä olevaan siirtolapuutarhaan.
Toimistokerrokseen tulee myös tavarahissi suoraan kiinteistön lastauslaiturilta joka takaa helpon logistiikan tavaroiden kuljettamiseen.
Kolmanteen kerrokseen on rakennettu yhteiskäyttötilat jotka on jokaisen talossa olevan vuokralaisen vapaassa käytössä. Tämän lisäksi yrityksen on mahdollista saada CO-working passeja VALO Hotel & Work:n kiinteistöön.
Katso kohde-esitteen viimeisistä valokuvista kuvia juuri remontoidusta toimistotilasta.
Sijainti
Mannerheimintie 103b kiinteistö sijaitsee helppojen ja nopeiden kulkureittien varrella Mannerheimintien loppupäässä. Erinomainen saavutettavuus jokaisesta ilman suunnasta ja helppo, niin autoilijoille kuin julkisen liikenteen käyttäjille.
Ympäristö
Alueelle on sijoittunut paljon isojen yrityksien pääkonttoreita sekä pienempiä kasvuyrityksiä. Ruskeasuon siirtolapuutarha näkymät aukeavat upeasti kiinteistön toiselle puolelle.
Pysäköinti
Kiinteistöllä on iso ja tilava parkkihalli jossa tilaa isommankin yrityksen parkkitarpeisiin. Rakennuksen edessä, Nauvontiellä on hyvin tarjolla 2 tunnin kiekollisia paikkoja.
Palvelut
Kiinteistössä on oma lounasravintola sekä catering palvelut. Ensimmäisessä kerroksessa on erikokoisia vuokrattavia kokoustiloja sekä iso auditorio. Kiinteistössä on myös tarjolla siivouspalvelut. Samassa rakennuksessa on myös kampaamo-, ja parturi palvelut. Lähialueella toimii kauppa, bensa-asema ja lounaravintoloita.
VALO Hotel ja Work sijitsee miletin vieressä jossa on myös kattavat työskentelyalueet, wellness-palvelut ja majoitus on helposti käyettävissäsi. Käy aamusalilla ja saunassa tai rentoudu työpäivän jälkeen porealtaassa ja hotellissa.
VALO Hotel ja Work sijitsee miletin vieressä jossa on myös kattavat työskentelyalueet, wellness-palvelut ja majoitus on helposti käyettävissäsi. Käy aamusalilla ja saunassa tai rentoudu työpäivän jälkeen porealtaassa ja hotellissa.
Kulkuyhteydet
Erinomaiset liikenneyhteydet: raitiovaunu 100m, bussipysäkki oven edessä ja kiinteistöllä oma autohalli autolla liikkuville.
Vapautuu
Heti
Saneerausvuosi
2024
Energiatehokkuusluokka
Ei lain edellyttämää energiatodistusta
Katutasossa
Näkyvällä paikalla
Jaettavissa
Lastauslaituri
Ota yhteyttä
Comreal Oy LKV
Anna-Maija Hyppönen
Näytä puhelinnumero
050 534 8001
Läkkisepänkuja 6, 00620 Helsinki
Comreal on valtakunnallinen, asiantunteva ja aktiivinen kiinteistöalan kumppani, joka palvelee sekä kiinteistönomistajia että toimitilojen käyttäjiä. Toimintamme ydin on yksinkertainen: tarjota erinomaista palvelua kaikille.
Pyydä lisätietoa
