Videoesittely
Vuokrataan toimistotilat - Helsinki
Mannerheimintie 103, Ruskeasuo, 00280 Helsinki #10805305
Ylimmän 7 kerroksen valoisa toimistotila.
Osoite
Mannerheimintie 103, 00280 Helsinki
Tilatyyppi
Toimistotilaa
400 m2
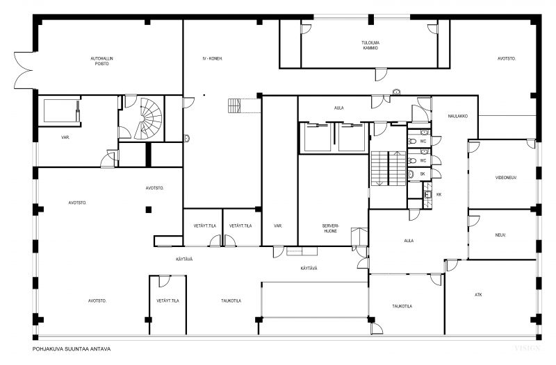
Pohjapiirros
Kiinteistö
Upea ja valoisa toimistokokonaisuus kiinteistön ylimmästä, seitsemännestä kerroksesta. Toimistotilassa on nykyjaolla avaraa avotilaa, ero kokoisia toimistohuoneita, neuvotteluhuonita, avokeittiö ja taoukotila sekä wc:t. Vuokaralaisella on käytössä myös oma hissiaula sekä tavarahissi josta pääsee kätevästi kiinteistön katutasossa olevalle lastauslaiturille.
Toimistotila on heti muuttovalmis mutta sitä voidaan myös muokata ja remontoida vuokranantajan puolesta. Katso kohde-esitteen viimeisistä valokuvista esimerkkikuvia remontoidusta toimistotilasta.
Kolmanteen kerrokseen on rakennettu yhteiskäyttötilat jotka on jokaisen talossa olevan vuokralaisen vapaassa käytössä. Tämän lisäksi yrityksen on mahdollista saada CO-working passeja VALO Hotel & Work:n kiinteistöön.
Toimistotila on heti muuttovalmis mutta sitä voidaan myös muokata ja remontoida vuokranantajan puolesta. Katso kohde-esitteen viimeisistä valokuvista esimerkkikuvia remontoidusta toimistotilasta.
Kolmanteen kerrokseen on rakennettu yhteiskäyttötilat jotka on jokaisen talossa olevan vuokralaisen vapaassa käytössä. Tämän lisäksi yrityksen on mahdollista saada CO-working passeja VALO Hotel & Work:n kiinteistöön.
Sijainti
Mannerheimintie 103b kiinteistö sijaitsee helppojen ja nopeiden kulkureittien varrella Mannerheimintien loppupäässä. Erinomainen saavutettavuus jokaisesta ilman suunnasta ja helppo, niin autoilijoille kuin julkisen liikenteen käyttäjille.
Ympäristö
Alueelle on sijoittunut paljon isojen yrityksien pääkonttoreita sekä pienempiä kasvuyrityksiä. Ruskeasuon siirtolapuutarha näkymät aukeavat upeasti kiinteistön toiselle puolelle.
Pysäköinti
Kiinteistöllä on iso ja tilava parkkihalli jossa tilaa isommankin yrityksen parkkitarpeisiin. Rakennuksen edessä, Nauvontiellä on hyvin tarjolla 2 tunnin kiekollisia paikkoja.
Palvelut
Kiinteistössä on oma lounasravintola sekä catering palvelut. Ensimmäisessä kerroksessa on erikokoisia vuokrattavia kokoustiloja sekä iso auditorio. Kiinteistössä on myös tarjolla siivouspalvelut. Samassa rakennuksessa on myös kampaamo-, ja parturi palvelut. Lähialueella toimii kauppa, bensa-asema ja lounaravintoloita.
VALO Hotel ja Work sijitsee miletin vieressä jossa on myös kattavat työskentelyalueet, wellness-palvelut ja majoitus on helposti käyettävissäsi. Käy aamusalilla ja saunassa tai rentoudu työpäivän jälkeen porealtaassa ja hotellissa.
VALO Hotel ja Work sijitsee miletin vieressä jossa on myös kattavat työskentelyalueet, wellness-palvelut ja majoitus on helposti käyettävissäsi. Käy aamusalilla ja saunassa tai rentoudu työpäivän jälkeen porealtaassa ja hotellissa.
Kulkuyhteydet
Erinomaiset liikenneyhteydet: raitiovaunu 100m, bussipysäkki oven edessä ja kiinteistöllä oma autohalli autolla liikkuville.
Vapautuu
Heti
Saneerausvuosi
2024
Energiatehokkuusluokka
Ei lain edellyttämää energiatodistusta
Katutasossa
Näkyvällä paikalla
Lastauslaituri
Ota yhteyttä
Comreal Oy LKV
Anna-Maija Hyppönen
Näytä puhelinnumero
050 534 8001
Läkkisepänkuja 6, 00620 Helsinki
Comreal on valtakunnallinen, asiantunteva ja aktiivinen kiinteistöalan kumppani, joka palvelee sekä kiinteistönomistajia että toimitilojen käyttäjiä. Toimintamme ydin on yksinkertainen: tarjota erinomaista palvelua kaikille.
Pyydä lisätietoa
