Videoesittely
Vuokrataan toimistotilat - Helsinki
Mannerheimintie 103, Ruskeasuo, 00280 Helsinki #10805301
Vuokralaisen toiveiden mukaisesti remontoitava toimistotila, isommankin yrityksen tarpeisiin.
Osoite
Mannerheimintie 103, 00280 Helsinki
Tilatyyppi
Toimistotilaa
1150 - 4300 m2
Tilajako
Jaettavissa
Tilaa on mahdollista jakaa tai yhdistää rakennuksen muihin kerroksiin.
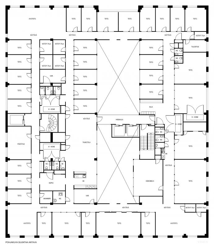
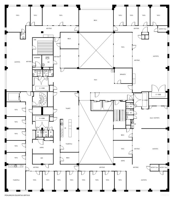
Pohjapiirros
Kiinteistö
Jos yrityksesi haluaa täysin uudistetut ja kustomoidut toimistotilat yrityksen tarpeita varten, niin Mannerheimintie 103b on yrityksellesi oikea osoite. Vuokranantajan tavoitteena on luoda yhteistyössä tilat vuokralaisen toiveiden mukaiseksi, moderneilla materiaaleilla käyttäen.
Toimistotila on myös suoraan muuttovalmis jos yrityksesi hakee kustannusäästöä.
Toimistotilassa on neuvotteluhuoneita, eri kokoisia toimistohuoneita, avotilaa, Keittiöt, sosiaalitilat ja wc:t. Koko kerroksen vuokralaisella on myös oma hissiaula sekä tavarahissi käytössä josta pääsee suoraan rakennuksen takana olevalle lastauslaiturille.
Toimistotilan näkymät Mannerheimintiellä sekä Nauvontielle jossa silmä lepää siirtolapuutahaa katsoessa. Tilaa on myös mahdollista jakaa osiin.
Kerroksia voidaan myös tarvittaessa yhdistää aina 4300 neliöön saakka.
Kolmanteen kerrokseen on rakennettu yhteiskäyttötilat jotka on jokaisen talossa olevan vuokralaisen vapaassa käytössä. Tämän lisäksi yrityksen on mahdollista saada CO-working passeja VALO Hotel & Work:n kiinteistöön.
Toimistotila on myös suoraan muuttovalmis jos yrityksesi hakee kustannusäästöä.
Toimistotilassa on neuvotteluhuoneita, eri kokoisia toimistohuoneita, avotilaa, Keittiöt, sosiaalitilat ja wc:t. Koko kerroksen vuokralaisella on myös oma hissiaula sekä tavarahissi käytössä josta pääsee suoraan rakennuksen takana olevalle lastauslaiturille.
Toimistotilan näkymät Mannerheimintiellä sekä Nauvontielle jossa silmä lepää siirtolapuutahaa katsoessa. Tilaa on myös mahdollista jakaa osiin.
Kerroksia voidaan myös tarvittaessa yhdistää aina 4300 neliöön saakka.
Kolmanteen kerrokseen on rakennettu yhteiskäyttötilat jotka on jokaisen talossa olevan vuokralaisen vapaassa käytössä. Tämän lisäksi yrityksen on mahdollista saada CO-working passeja VALO Hotel & Work:n kiinteistöön.
Sijainti
Mannerheimintie 103b kiinteistö sijaitsee helppojen ja nopeiden kulkureittien varrella Mannerheimintien loppupäässä. Erinomainen saavutettavuus jokaisesta ilman suunnasta ja helppo, niin autoilijoille kuin julkisen liikenteen käyttäjille.
Ympäristö
Alueelle on sijoittunut paljon isojen yrityksien pääkonttoreita sekä pienempiä kasvuyrityksiä. Ruskeasuon siirtolapuutarha näkymät aukeavat upeasti kiinteistön toiselle puolelle.
Pysäköinti
Kiinteistöllä on iso ja tilava parkkihalli jossa tilaa isommankin yrityksen parkkitarpeisiin. Rakennuksen edessä, Nauvontiellä on hyvin tarjolla 2 tunnin kiekollisia paikkoja.
Palvelut
Kiinteistössä on oma lounasravintola sekä catering palvelut. Ensimmäisessä kerroksessa on erikokoisia vuokrattavia kokoustiloja sekä iso auditorio. Kiinteistössä on myös tarjolla siivouspalvelut. Samassa rakennuksessa on myös kampaamo-, ja parturi palvelut. Lähialueella toimii kauppa, bensa-asema ja lounaravintoloita.
VALO Hotel ja Work sijitsee miletin vieressä jossa on myös kattavat työskentelyalueet, wellness-palvelut ja majoitus on helposti käyettävissäsi. Käy aamusalilla ja saunassa tai rentoudu työpäivän jälkeen porealtaassa ja hotellissa.
VALO Hotel ja Work sijitsee miletin vieressä jossa on myös kattavat työskentelyalueet, wellness-palvelut ja majoitus on helposti käyettävissäsi. Käy aamusalilla ja saunassa tai rentoudu työpäivän jälkeen porealtaassa ja hotellissa.
Kulkuyhteydet
Erinomaiset liikenneyhteydet: raitiovaunu 100m, bussipysäkki oven edessä ja kiinteistöllä oma autohalli autolla liikkuville.
Vapautuu
Heti
Saneerausvuosi
2024
Energiatehokkuusluokka
Ei lain edellyttämää energiatodistusta
Katutasossa
Näkyvällä paikalla
Jaettavissa
Lastauslaituri
Ota yhteyttä
Comreal Oy LKV
Anna-Maija Hyppönen
Näytä puhelinnumero
050 534 8001
Läkkisepänkuja 6, 00620 Helsinki
Comreal on valtakunnallinen, asiantunteva ja aktiivinen kiinteistöalan kumppani, joka palvelee sekä kiinteistönomistajia että toimitilojen käyttäjiä. Toimintamme ydin on yksinkertainen: tarjota erinomaista palvelua kaikille.
Pyydä lisätietoa
