Vuokrataan toimistotilat, liiketilat, näyttelytilat - Helsinki
Navigatortalo, Eteläinen makasiinikatu 4, Kaartinkaupunki, 00130 Helsinki #10805016
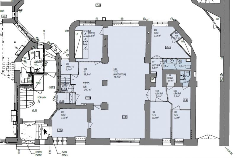
Näyttävä 270 m² liike- tai toimistotila arvokiinteistössä Helsingin Kaartinkaupungissa, upean Navigatortalon katutasossa
Tilalla on oma sisäänkäynti kadulta sekä toinen sisäänkäynti porraskäytävästä.
Julkisivu on tässä kerroksessa kokonaan kiveä ja yhdessä tammi-ikkunoiden kanssa erittäin arvokas kokonaisuus.
Katutason tilassa on korkea huonekorkeus ja suuret ikkunat Eteläiselle makasiinikadulle sekä sisäpihalle. Tila on on ollut toimitson lisäksi mm. showroom-käytössä sekä koulutustilana, joten se soveltuu moneen käyttötarkoitukseen. Tässä kerroksessa myös 2 x wc ja keittiö.
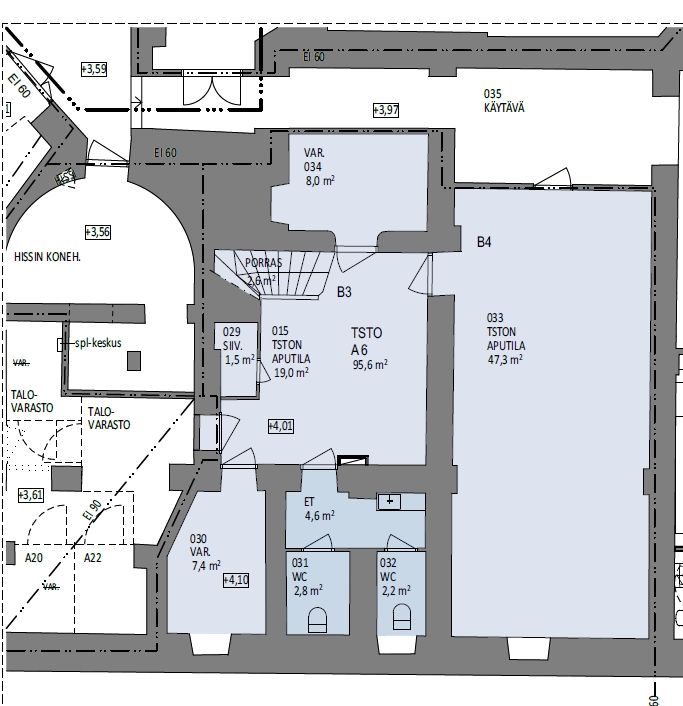
Sisäporrasyhteys kerrosten välillä. Kellarista kulku myös sisäpihalle.
Kellarikerroksessa 2 x wc, apu-ja varastotiloja ja kellarikerroksen iso huone on toiminut aiemmin luokkahuoneena (viimeisin käyttötarkoitus varasto).
Soveltuu liike-tai toimistokäyttöön (ei ravintolakäyttöön).
Pysäköintipaikkoja vuokrattavissa Kasarmitorin Q-Parkissa, lisäksi aluepysäköintitunnukset ja kadunvarsipysäköinti. Pyöräparkki sisäpihalla.
Välittömässä läheisyydessä lukuisia ravintoloita, keskustan palvelut kävelyetäisyydellä.
Metroasema 1 km, Raitiovaunupysäkki 100 m, Bussipysäkki 100 m, Rautatieasema 1,2 km, Lentoasema 21 km.
Katutasossa
Näkyvällä paikalla
Hissi
ScanReal Oy LKV
Opus Business Park
Hitsaajankatu 24
00810 Helsinki
info@scanreal.fi
Puh:
Näytä puhelinnumero
020 730 8830
Sopivat toimitilat yhdellä otolla!
Kartoitamme toimitilatarpeesi ja etsimme yrityksellesi parhaiten sopivat vapaat toimitilat. Koska vuokranantajat maksavat palvelumme, on tämä yrityksellesi veloituksetonta.
OTA YHTEYTTÄ - SOVI NÄYTTÖ!
Kaikki kohteemme eivät ole netissä, kerro tilatarpeesi niin kartoitamme vaihtoehdot.
Palvelumme on tilanhakijalle ilmainen
