Myydään - Kaarina
Kivitokeenkatu 4, 20780 Kaarina #10804976
Myydään 599 m² toimitilakiinteistö Kaarinan Krossin alueelta osoitteessa Kivitokeenkatu 4, Kaarina.
Tilakokonaisuus, jossa toimistotilojen lisäksi siisti n. 412m2 hallitila.
Hallitila on jaettu kahteen lohkoon n. 260m2 ja n.152m2. kevyellä väliseinällä, jossa on ovellinen kulkuaukko. Hallin syvyys 15,50 metriä ja vapaa korkeus 5,20 metriä.
152 m2 hallin yhteydessä wc ja vesipiste, 260m2 hallissa keittiö-taukotila. Voimavirtapistokkeita löytyy hallissa reilusti. Hallin puoleinen sähköpääkeskus 125 A.
Hallitiloihin 3kpl nosto-ovia ja erilliset käyntiovet. Nosto-ovien leveys 3,60 metriä x korkeus 4,50 metriä.
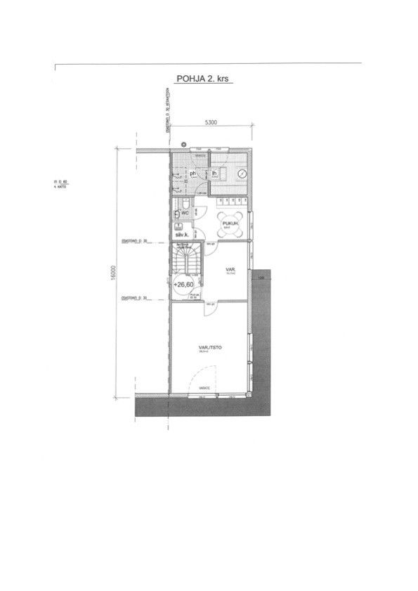
Lisäksi siisti toimistotila II-tasossa rakennuksen päädyssä, toimistotilojen yhteydessä keittiö sekä saunatilat.
Kiinteistössä on kauttaaltaan vesikiertoinen lattialämmitys.
Rakennuksen päädyssä on pieni avokatos.
Kiinteistötunnus: 202-6-661-14-L1
Tontin koko 2 744m2
Tontti: Kaarinan Kaupungin vuokratontti, maanvuokrasopimus voimassa 4.9.2055 asti
Vuosivuokra: 3 400 euroa.
Kaava: TY, Teollisuusrakennusten korttelialue, jolla ympäristö asettaa toiminnan laadulle erityisiä vaatimuksia.
Rakennustehokkuus e=0,4
Rakennusoikeus jäljellä noin 499m2
Lämmitysjärjestelmänä ilma-vesilämpöpumppu, joka takaa edulliset lämmityskulut.
Hintapyyntö 650 000 euroa
Heti vapaa.
Lisää toimitiloja www.rhg.fi
Kohteella ei lain edellyttämää energiatodistusta tai energialuokka ei tiedossa.
RHG Real Estate
Hämeenkatu 2 B20, 20500 Turku
Näytä puhelinnumero
020 734 4020
Tony Rosenblad
Hallituksen puheenjohtaja
Näytä puhelinnumero
+358 50 551 5375
