Vuokrataan toimistotilat - Helsinki
Siltasaarenkatu 12, Hakaniemi, 00530 Helsinki #10804288
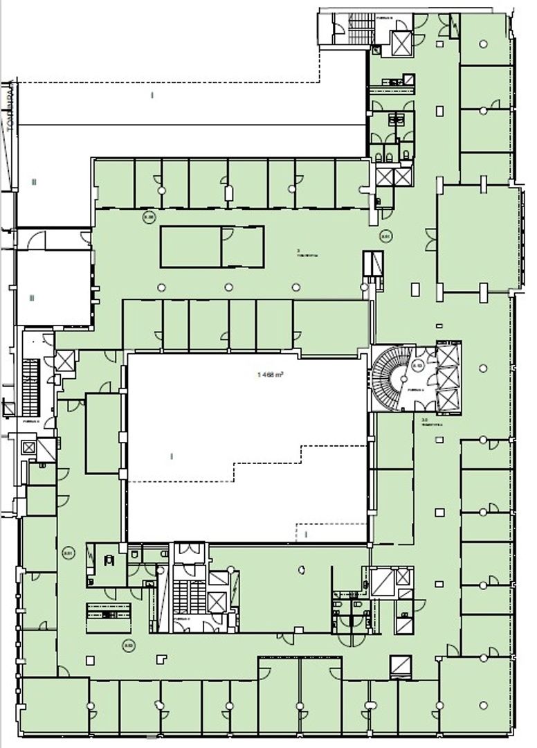
Upeilla näkymillä varustettu toimistotila Hakaniemessä on nyt vapaana. Tilasta löytyy runsaasti työ- ja neuvottelutiloja sekä wc-tilat. Kohde on jaettavissa pienemmäksi, alkaen noin 250 m². Toimistotila on rakennettu vastuullisesti ja siinä käytetään uusiutuvaa kiertolämpöä sekä omaa aurinkovoimalaa. Tilalla on myös BREEAM Excellent -sertifikaatti, joka kertoo sen ympäristöystävällisyydestä.
Siltasaari 12:n tiloja uudistetaan tämän päivän tarpeisiin sopiviksi, mutta 50-luvun tyylistä henkeä kunnioittaen. Perinteikkään Paasitalon tilat ovat erinomaisten palveluiden ääressä. Lähialueen valikoimaan lukeutuu esimerkiksi monipuolinen valikoima lounasravintoloita, kahviloita, päivittäistavarakauppoja sekä vaateliikkeitä. Upeat näkymät Hakaniemen yli tarjoava kiinteistö valmistui saneerauksesta vuonna 2020.
Me Croisettella autamme teitä löytämään teille parhaat tilat! Olemme puolueettomia asiantuntijoita ja tunnemme toimitilamarkkinat, talot sekä tilat vankalla kokemuksella. Meillä on välityksessä kaikki toimitilat ja tiedämme niiden alustavat vuokratasot.
Tehtävämme on tehdä toimitilahaustanne onnistunut ja helppo. Saamme palkkiomme kiinteistönomistajalta, joten sinulle palvelumme on täysin maksuton.
Croisette Real Estate Partner
Erottajankatu 5 A 6, 00130 Helsinki
Näytä puhelinnumero
+358 400 585 857
Croisette Vuokraus
Näytä puhelinnumero
+358400585857
