Vuokrataan toimistotilat - Joensuu
Toimisto @ Kauppakatu 35, Keskusta, 80100 Joensuu #10804103
Toimisto
Osoite
Toimisto @ Kauppakatu 35, 80100 Joensuu
Tilatyyppi
Toimistotilaa
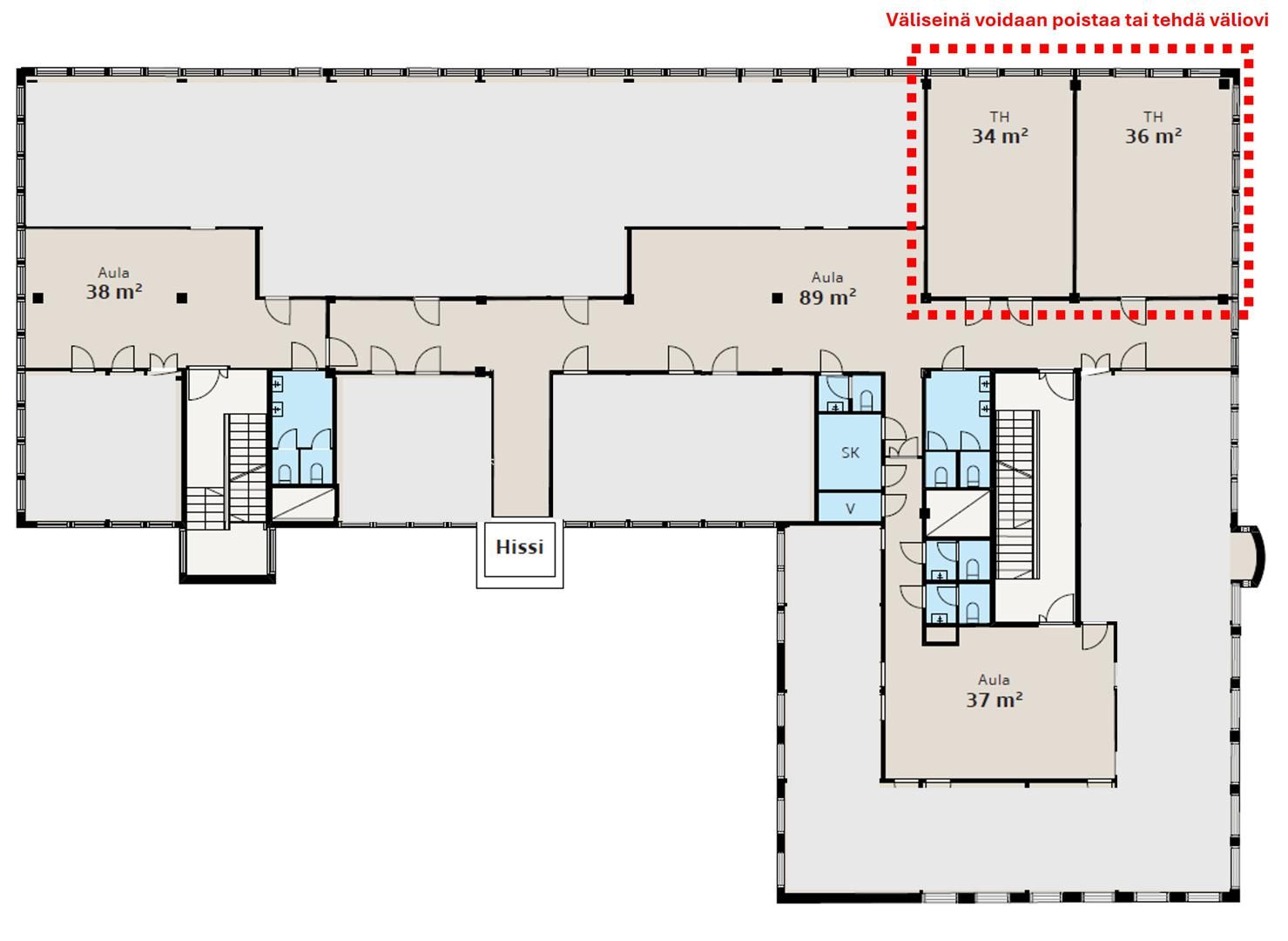
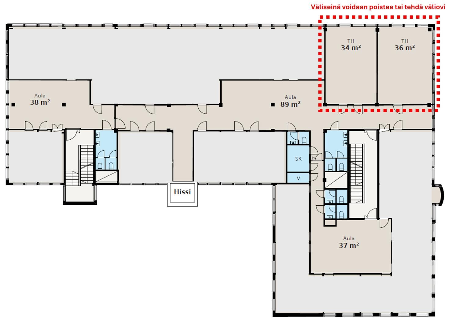
34 - 170 m2
Kiinteistö
Tyylikästä ja siistiä toimistotilaa @ Joensuun ytimestä
Vuokrattavana Joensuun keskusta-alueelta napakka n. 34 m² toimistotila.
Vaihtoehto #2 toimistokokonaisuus n. 137 m².
Vaihtoehto #3 toimistokokonaisuus n. 170 m².
Nämä siistit toimistotilat sopivat hyvin 2-20 hengen toimistotilaksi sellaiselle toimijalle, joka arvostaa ydinkeskustassa työskentelyä ja vaivattomuutta.
ITC-yritys, tilitoimisto, lakitoimisto, mainostoimisto, myyntitoimisto eli hyvin laajalle työyhteisölle sopiva kokonaisratkaisu.
Asiakkaiden ja henkilökunnan on helppoa saapua toimistolle. Samaan pakettiin henkilökunnan pysäköintipaikat turvalliseen alakerran parkkihalliin.
Laminaattilattia, tekstiilipalamatto, koneellinen ilmanvaihto, sosiaalitilat... eli kaikki löytyy.
Mikäli tilantarve yrityksessä muuttuu, voidaan rakennuksen sisällä muuntaa tilakokonaisuutta sisäisellä muutolla.
Kiinteistö ja sijainti
Kauppakadun ja Yläsatamakadun kulmauksessa oleva Liiketalo on saneerattu uuteen uskoon. Kaikki on kunnossa ja kiinteistö on sisäilmaltaan terve.
Kulkuyhteydet ovat vaivattomat julkisilla, polkupyörällä tai autolla.
Kokonaisuus on erittäin toimiva ja päivän aikana löytyvät lähistöltä kaikki tarvittavat palvelut.
Soita ja sovi kohdekäyntiaika!
Vuokrattavana Joensuun keskusta-alueelta napakka n. 34 m² toimistotila.
Vaihtoehto #2 toimistokokonaisuus n. 137 m².
Vaihtoehto #3 toimistokokonaisuus n. 170 m².
Nämä siistit toimistotilat sopivat hyvin 2-20 hengen toimistotilaksi sellaiselle toimijalle, joka arvostaa ydinkeskustassa työskentelyä ja vaivattomuutta.
ITC-yritys, tilitoimisto, lakitoimisto, mainostoimisto, myyntitoimisto eli hyvin laajalle työyhteisölle sopiva kokonaisratkaisu.
Asiakkaiden ja henkilökunnan on helppoa saapua toimistolle. Samaan pakettiin henkilökunnan pysäköintipaikat turvalliseen alakerran parkkihalliin.
Laminaattilattia, tekstiilipalamatto, koneellinen ilmanvaihto, sosiaalitilat... eli kaikki löytyy.
Mikäli tilantarve yrityksessä muuttuu, voidaan rakennuksen sisällä muuntaa tilakokonaisuutta sisäisellä muutolla.
Kiinteistö ja sijainti
Kauppakadun ja Yläsatamakadun kulmauksessa oleva Liiketalo on saneerattu uuteen uskoon. Kaikki on kunnossa ja kiinteistö on sisäilmaltaan terve.
Kulkuyhteydet ovat vaivattomat julkisilla, polkupyörällä tai autolla.
Kokonaisuus on erittäin toimiva ja päivän aikana löytyvät lähistöltä kaikki tarvittavat palvelut.
Soita ja sovi kohdekäyntiaika!
Vapautuu
Kysy
Kerros
2. kerros
Ota yhteyttä
Logistila Oy
Ankkuritie 1, 70460 KUOPIO
Timo Puustinen
Näytä puhelinnumero
0400 33 00 30
Pyydä lisätietoa
