Vuokrataan liiketilat - Joensuu
Liiketila & Myymälä Kuurnakatu 3 B, Käpykangas, 80100 Joensuu #10804002
Liiketila & Myymälätila
Osoite
Liiketila & Myymälä Kuurnakatu 3 B, 80100 Joensuu
Tilatyyppi
Liiketilaa
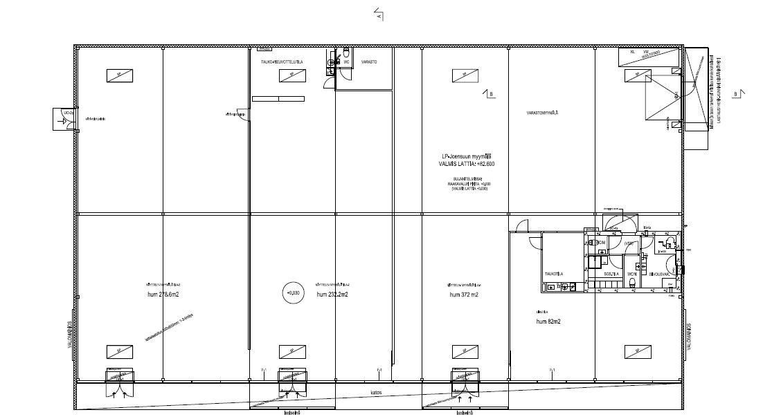
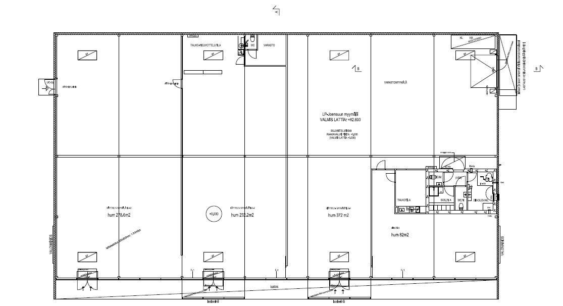
100 - 800 m2
Kiinteistö
Liike & Myymälätilaa 100 - 800 m² @ Joensuu
Tunnetussa Liiketalossa on vapaana liiketilaa ja myymälätilaa alkaen 100 neliöstä isompaan päin.
Tilat sopivat hyvin yritykselle, joka tarvitsee asiakasvirtaa tontille ja myymälään. Erikoistavarakauppa, käyttötavarakauppa sopivat hyvin kiinteistölle ja tiloja voidaan säätää sopivaksi yrityksen käyttötarpeen mukaisesti. Tilat sisältävät valmiiksi laadukkaat pinnat, joten sisustusta vaille ovat tilat käyttöön otettavissa.
Valmiina on muun muassa:
iso piha-alue
lastaussilta nosto-ovella
laattalattiat sisätiloissa
keittiötilat
sos.tilat
koneellinen ilmanvaihto
viilennys
hyvä valaistus
kuituyhteys kiinteistölle
hälytinvalmius
isot näyteikkunat
näkyvät mainospaikat
Pyloni
Kiinteistö ja sijainti
Käpykangas on vilkas työssäkäyntialue ja Liiketalo sijaitsee vilkkaan liikenneympyrän vieressä. Osoite on Kuurnankatu 3 ja tontille saapuminen on vaivatonta.
Kiinteistöä on ylläpidetty hyvin ja kaikki fasiliteetit ovat kunnossa ja perusmuuttovalmiina.
Mahdolliset muutos- ja lisätyöt sovitaan helposti kiinteistön omistajan kanssa ja muutostyöt toteutetaan nopealla aikataululla.
Piha-alueella on runsaasti asiakaspaikkoja ja vuokralaiselle korvamerkitään omat tolppapaikat.
Ota yhteyttä ja sovitaan, miten edetään asiassa!
Tunnetussa Liiketalossa on vapaana liiketilaa ja myymälätilaa alkaen 100 neliöstä isompaan päin.
Tilat sopivat hyvin yritykselle, joka tarvitsee asiakasvirtaa tontille ja myymälään. Erikoistavarakauppa, käyttötavarakauppa sopivat hyvin kiinteistölle ja tiloja voidaan säätää sopivaksi yrityksen käyttötarpeen mukaisesti. Tilat sisältävät valmiiksi laadukkaat pinnat, joten sisustusta vaille ovat tilat käyttöön otettavissa.
Valmiina on muun muassa:
iso piha-alue
lastaussilta nosto-ovella
laattalattiat sisätiloissa
keittiötilat
sos.tilat
koneellinen ilmanvaihto
viilennys
hyvä valaistus
kuituyhteys kiinteistölle
hälytinvalmius
isot näyteikkunat
näkyvät mainospaikat
Pyloni
Kiinteistö ja sijainti
Käpykangas on vilkas työssäkäyntialue ja Liiketalo sijaitsee vilkkaan liikenneympyrän vieressä. Osoite on Kuurnankatu 3 ja tontille saapuminen on vaivatonta.
Kiinteistöä on ylläpidetty hyvin ja kaikki fasiliteetit ovat kunnossa ja perusmuuttovalmiina.
Mahdolliset muutos- ja lisätyöt sovitaan helposti kiinteistön omistajan kanssa ja muutostyöt toteutetaan nopealla aikataululla.
Piha-alueella on runsaasti asiakaspaikkoja ja vuokralaiselle korvamerkitään omat tolppapaikat.
Ota yhteyttä ja sovitaan, miten edetään asiassa!
Vapautuu
Kysy
Kerros
Katutaso
Lastauslaituri
Ota yhteyttä
Logistila Oy
Ankkuritie 1, 70460 KUOPIO
Timo Puustinen
Näytä puhelinnumero
0400 33 00 30
Pyydä lisätietoa
