Vuokrataan toimistotilat - Helsinki
Kuortaneenkatu 1, Vallila, 00520 Helsinki #10803169
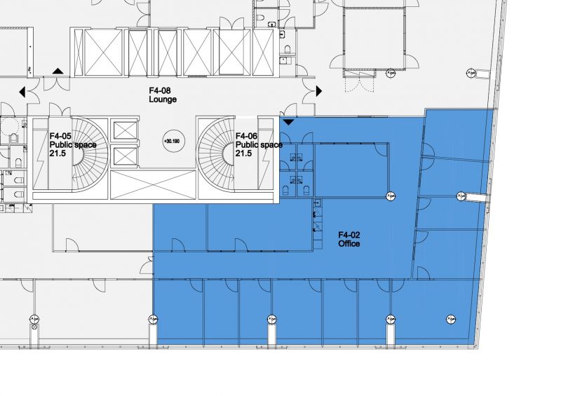
Elimäenkadun ja Kuortaneenkadun kulmassa avara ja tyylikäs 301 m² toimisto loistopaikalla!
Osoite
Kuortaneenkatu 1, 00520 Helsinki
Tilatyyppi
Toimistotilaa
301 m2
Pohjapiirros
Kiinteistö
Industrial-henkinen ja avara toimistotila 4. kerroksesta. Tilan tekniikka modernisoitu, ja tila remontoidaan uudelle käyttäjälle. Kohteesta löytyy kattavat vuokralaispalvelut lounasravintola, aulapalvelu, kuntosali, vuokrattavia neuvotteluhuoneita ja AimoParkin operoima pysäköintihalli. Pasilan juna-asema ja Triplan palvelut ovat 10 minuutin kävelymatkan päässä.
Vallilassa sijaitseva, vuonna 1969 valmistunut teollisuuskiinteistö, joka on saneerattu toimistokäyttöön vuonna 1998. Yhteiset aula- ja neuvottelutilat on kunnostettu keväällä 2013.
Kiinteistössä vuokralaisia palvelevat aulavastaanotto, lounasravintola, kuntosali sekä yhteiset neuvottelutilat. Kellarikerroksessa on vuokrattavissa varastotilaa.
Kiinteistössä on kaksi henkilöhissiä sekä kolme tavarahissiä, joilla on yhteys lastauslaiturilta kerroksiin. Tavarahissien kantavuus on 1000 kg ja 2000 kg.
Kellarikerroksissa on runsaasti vuokrattavia autopaikkoja ja sisäpihalla asiakaspysäköinti. Lisää kadunvarsipysäköintitilaa Kuortaneenkadulla.
Pyöräilijöitä varten talossa on suihkutilat ja sisäpihalta löytyy pyöräparkki.
Vallilassa sijaitseva, vuonna 1969 valmistunut teollisuuskiinteistö, joka on saneerattu toimistokäyttöön vuonna 1998. Yhteiset aula- ja neuvottelutilat on kunnostettu keväällä 2013.
Kiinteistössä vuokralaisia palvelevat aulavastaanotto, lounasravintola, kuntosali sekä yhteiset neuvottelutilat. Kellarikerroksessa on vuokrattavissa varastotilaa.
Kiinteistössä on kaksi henkilöhissiä sekä kolme tavarahissiä, joilla on yhteys lastauslaiturilta kerroksiin. Tavarahissien kantavuus on 1000 kg ja 2000 kg.
Kellarikerroksissa on runsaasti vuokrattavia autopaikkoja ja sisäpihalla asiakaspysäköinti. Lisää kadunvarsipysäköintitilaa Kuortaneenkadulla.
Pyöräilijöitä varten talossa on suihkutilat ja sisäpihalta löytyy pyöräparkki.
Pysäköinti
Autopaikkoja vuokrattavana talon omasta lämpimästä parkkihallista.
Lisäpaikkoja vuokrattavissa viereisestä Q-Parkista.
Lisäpaikkoja vuokrattavissa viereisestä Q-Parkista.
Kulkuyhteydet
Elimäenkadulle on helppo tulla myös julkisilla liikennevälineillä (bussit 22, 51, 59 ja 70T). Teollisuuskatua kulkee uusi raitiovaunulinja 9, lisäksi Mäkelänkadulla kulkevat raitiovaunut 7A ja 7B sekä useita lähi- ja seutuliikenteen busseja. Sturenkadulla kulkevat raitiovaunut 1 ja 1A. Lähijunat pysähtyvät Pasilassa.
Metroasema 1,3 km, Raitiovaunupysäkki 200 m, Bussipysäkki 200 m, Juna-asema 700 m, Lentoasema 13,4 km
Metroasema 1,3 km, Raitiovaunupysäkki 200 m, Bussipysäkki 200 m, Juna-asema 700 m, Lentoasema 13,4 km
Vapautuu
Heti
Rakennusvuosi
1969
Saneerausvuosi
2013
Kerros
1 / 7
Energiatehokkuusluokka
Ei lain edellyttämää energiatodistusta
Katutasossa
Näkyvällä paikalla
Hissi
Ota yhteyttä
ScanReal Oy LKV
Opus Business Park
Hitsaajankatu 24
00810 Helsinki
info@scanreal.fi
Puh:
Näytä puhelinnumero
020 730 8830
Sopivat toimitilat yhdellä otolla!
Kartoitamme toimitilatarpeesi ja etsimme yrityksellesi parhaiten sopivat vapaat toimitilat. Koska vuokranantajat maksavat palvelumme, on tämä yrityksellesi veloituksetonta.
OTA YHTEYTTÄ - SOVI NÄYTTÖ!
Kaikki kohteemme eivät ole netissä, kerro tilatarpeesi niin kartoitamme vaihtoehdot.
Palvelumme on tilanhakijalle ilmainen
Pyydä lisätietoa
