Vuokrataan toimistotilat - Helsinki
Iso Roobertinkatu 21-25, Punavuori, 00120 Helsinki #10803144
Siisti, ilmastoitu avotoimisto ylimmässä kerroksessa. Loistava sijainti ja sisäpihan rauha.
Osoite
Iso Roobertinkatu 21-25, 00120 Helsinki
Tilatyyppi
Toimistotilaa
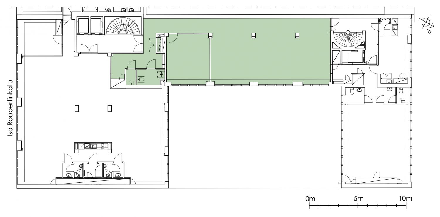
135 m2
Pohjapiirros
Kiinteistö
Eloisalla alueella Helsingin ydinkeskustassa sijaitseva monipuolinen toimisto- ja liikekiinteistö, jonka avarat tilat vastaavat loistavasti nykyaikaisen toimistotyön vaatimuksia.
Tilat sopivat keskeistä sijaintia sekä tehokkaasti toteutettuja neliöitä etsivälle yritykselle. Muuntelukelpoiset tilat voidaan toteuttaa yrityksen tarpeiden mukaisesti. Kiinteistössä on vuokrattavissa toimistotilaa 3 380 m² ja liiketilaa 769 m². Lisäksi pohjakerroksesta on mahdollista vuokrata varastotiloja.
Kohteeseen kuuluu kaksi toimistorakennusta. Kiinteistöyhtiön vanhempi, vuonna 1965 valmistunut rakennus on sisätiloiltaan ja tekniikaltaan täysin saneerattu vuonna 2009. Uudempi rakennus on valmistunut vuonna 1984 ja se on pintaremontoitu vuonna 2010.
Kiinteistölle on myönnetty BREEAM In-Use Excellent -tason ympäristösertifikaatti. BREEAM (Building Research Establishment Environmental Assessment Method) on kansainvälinen rakennusten ympäristöluokitusjärjestelmä, joka tähtää rakennuksen käytön ympäristövaikutusten vähentämiseen sekä terveellisempien työympäristöjen kehittämiseen.
Tilat sopivat keskeistä sijaintia sekä tehokkaasti toteutettuja neliöitä etsivälle yritykselle. Muuntelukelpoiset tilat voidaan toteuttaa yrityksen tarpeiden mukaisesti. Kiinteistössä on vuokrattavissa toimistotilaa 3 380 m² ja liiketilaa 769 m². Lisäksi pohjakerroksesta on mahdollista vuokrata varastotiloja.
Kohteeseen kuuluu kaksi toimistorakennusta. Kiinteistöyhtiön vanhempi, vuonna 1965 valmistunut rakennus on sisätiloiltaan ja tekniikaltaan täysin saneerattu vuonna 2009. Uudempi rakennus on valmistunut vuonna 1984 ja se on pintaremontoitu vuonna 2010.
Kiinteistölle on myönnetty BREEAM In-Use Excellent -tason ympäristösertifikaatti. BREEAM (Building Research Establishment Environmental Assessment Method) on kansainvälinen rakennusten ympäristöluokitusjärjestelmä, joka tähtää rakennuksen käytön ympäristövaikutusten vähentämiseen sekä terveellisempien työympäristöjen kehittämiseen.
Sijainti
Iso Roobertinkatu sijaitsee Helsingin Punavuoressa Erottajan ja Fredrikintorin välittömässä läheisyydessä. Lähimmät raitiovaunu- ja bussipysäkit sijaitsevat Fredrikinkadulla.
Kiinteistössä on autopaikkoja autohallissa 33 kpl. Q-park Erottajan pysäköintilaitokset sijaitsevat kävelyetäisyydellä.
Kiinteistössä on autopaikkoja autohallissa 33 kpl. Q-park Erottajan pysäköintilaitokset sijaitsevat kävelyetäisyydellä.
Pysäköinti
Autopaikkoja autohallissa sekä Q-park Erottaja
Palvelut
Alueella on runsaasti ravintoloita, hotelleja ja neuvottelukeskuksia.
Kulkuyhteydet
Lähimmälle bussipysäkille 100 m
Lähimmälle juna-asemalle 1,1 km
Lähimmälle metroasemalle 950 m
Lähimmälle raitiovaunupysäkille 100 m
Lentokentälle 30 min
Lähimmälle juna-asemalle 1,1 km
Lähimmälle metroasemalle 950 m
Lähimmälle raitiovaunupysäkille 100 m
Lentokentälle 30 min
Vapautuu
Kysy
Rakennusvuosi
1965
Kerros
5
Energiatehokkuusluokka
C2018
Ympäristöluokitus
BREEAM In-Use Excellent,GRESB Global Sector Leader 2025
Ota yhteyttä
Sponda Oy
Yrjönkatu 29C, 00100 Helsinki
Näytä puhelinnumero
020 43131
Joni Rajaniemi
Senior Leasing Manager
Näytä puhelinnumero
+358 50 505 7504
Sponda Oy
https://www.sponda.fiPyydä lisätietoa
