Vuokrataan toimistotilat - Espoo
Polaris Business Park - Castor, Itsehallintokuja 4, Perkkaa, 02600 Espoo #10803004
Leppävaaran lähistöllä sijaitsevan tasokkaan Polaris Business Parkin 4. kerroksen 147,5 m² moderni toimisto.
Osoite
Itsehallintokuja 4, 02600 Espoo
Tilatyyppi
Toimistotilaa
147,5 m2
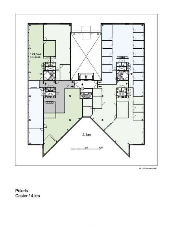
Pohjapiirros
Kiinteistö
Vuokrataan tehokas ja moderni 4. kerroksen 147,5 m² toimistotila Polaris Business Parkin Castor-talosta. Valoisa toimistotila selkeällä pohjalla. Tilassa on runsaasti avotilaa ja kompakteja toimistohuoneita, sekä keittiö- ja WC-tilat.
Polaris sijaitsee näkyvällä paikalla Turuntien varrella Espoon Leppävaaran Perkkaalla. Polaris tarjoaa käyttäjille todella monipuoliset ja laadukkaat palvelut mm. aulapalvelu, neuvotteluhuoneet, laadukas ravintola, kuntosali ja edustussauna. Pysäköintipaikkoja tarjolla runsaasti Polariksen omassa parkkitalossa ja pihalla.
Kiinteistö on rakennettu ympäristöarvoja kunnioittaen ja kohteella on Breeam ympäristösertifikaatti Very Good. Miellyttävän työympäristön Polariksessa sinetöi erittäin valoisat tilat, laadukkaat materiaalit ja moderni talotekniikka viilennyksineen.
Ilmoituksen kuvat ovat osaltaan havainnekuvia ja pohjapiirros suuntaa-antava.
Huom! Kohteessa myös muita vastaavankokoisia, mutta pohjaltaan erilaisia tiloja vapaana, kysy lisää.
Polaris sijaitsee näkyvällä paikalla Turuntien varrella Espoon Leppävaaran Perkkaalla. Polaris tarjoaa käyttäjille todella monipuoliset ja laadukkaat palvelut mm. aulapalvelu, neuvotteluhuoneet, laadukas ravintola, kuntosali ja edustussauna. Pysäköintipaikkoja tarjolla runsaasti Polariksen omassa parkkitalossa ja pihalla.
Kiinteistö on rakennettu ympäristöarvoja kunnioittaen ja kohteella on Breeam ympäristösertifikaatti Very Good. Miellyttävän työympäristön Polariksessa sinetöi erittäin valoisat tilat, laadukkaat materiaalit ja moderni talotekniikka viilennyksineen.
Ilmoituksen kuvat ovat osaltaan havainnekuvia ja pohjapiirros suuntaa-antava.
Huom! Kohteessa myös muita vastaavankokoisia, mutta pohjaltaan erilaisia tiloja vapaana, kysy lisää.
Kulkuyhteydet
Bussipysäkki 200 m, Juna-asema 1 km, Lentoasema 19,3 km
Vapautuu
Heti
Kerros
4 / 5
Energiatehokkuusluokka
Ei lain edellyttämää energiatodistusta
Näkyvällä paikalla
Hissi
Ota yhteyttä
ScanReal Oy LKV
Opus Business Park
Hitsaajankatu 24
00810 Helsinki
info@scanreal.fi
Puh:
Näytä puhelinnumero
020 730 8830
Sopivat toimitilat yhdellä otolla!
Kartoitamme toimitilatarpeesi ja etsimme yrityksellesi parhaiten sopivat vapaat toimitilat. Koska vuokranantajat maksavat palvelumme, on tämä yrityksellesi veloituksetonta.
OTA YHTEYTTÄ - SOVI NÄYTTÖ!
Kaikki kohteemme eivät ole netissä, kerro tilatarpeesi niin kartoitamme vaihtoehdot.
Palvelumme on tilanhakijalle ilmainen
Pyydä lisätietoa
