Vuokrataan toimistotilat - Helsinki
Rälssintie 2, Pukinmäki, 00720 Helsinki #10802916
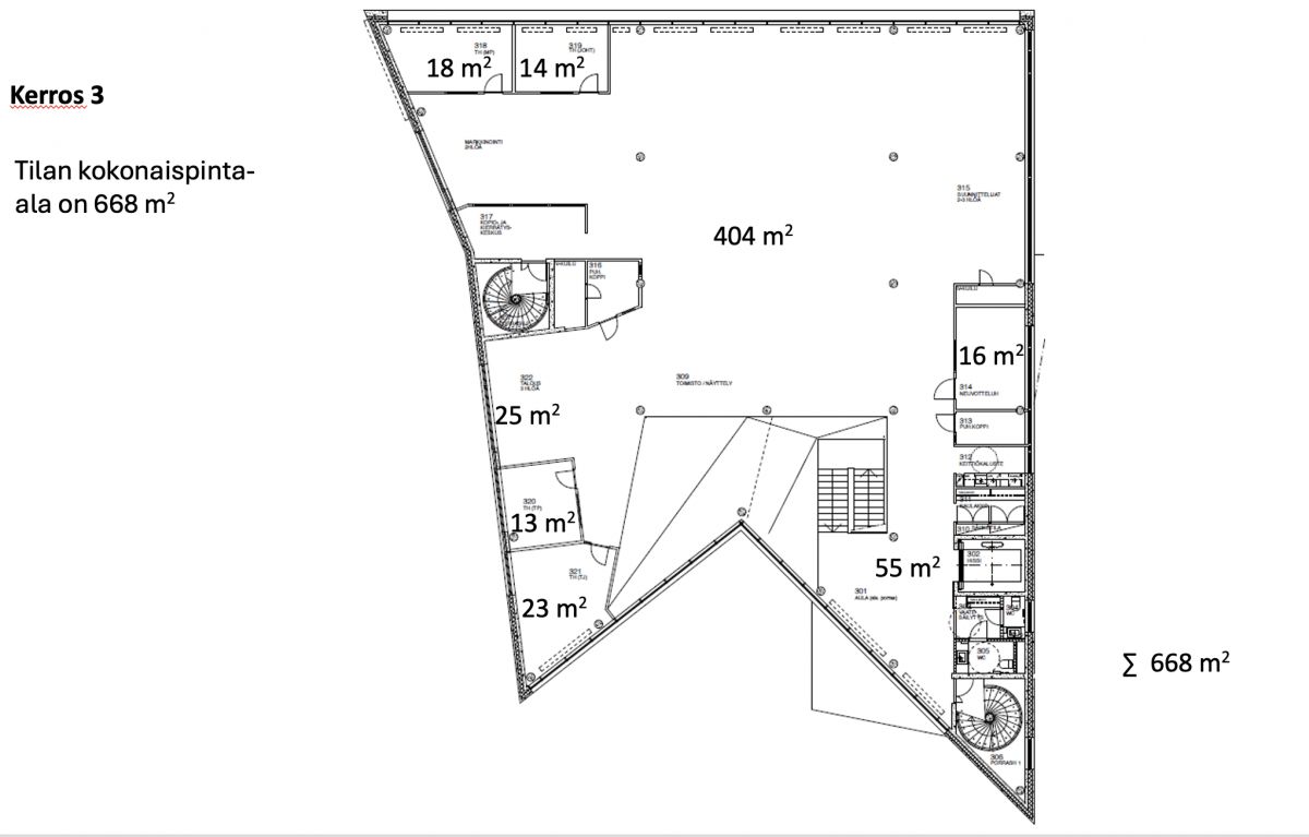
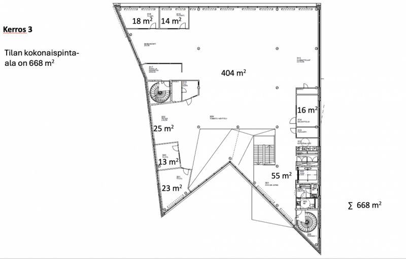
Vuokrataan valoisaa ja avaraa toimisto- tai näyttelytilaa Kehä I:n varrelta. Näyttävässä ja hyväkuntoisessa tilassa on avonaista työskentytilaa ja 5 huonetta, jotka toimivat hyvin myös neuvottelutiloina.
Samasta talosta on mahdollista vuokrata myös ensimmäisestä kerroksesta hyvä sisäänajettava varastotila noin 135m2, sekä upea näyttelytila noin 145m2.
Rälssintie 2 on näyttävä toimistorakennus Kehä I:n varrella. Kohteeseen on hyvät liikenneyhteydet, niin autolla kuin julkisella liikenteellä. Talossa on myös pukuhuoneet ja suihkutilat työmatkapyöräilijöille. Autopaikkoja saatavilla kiinteistön pihalta.
Lisätietoja soita 020 730 4530 tai info@repoint.fi. Palvelumme on tilanhakijalle ilmainen.
Repoint Toimitilat Oy
Itälahdenkatu 22 B, 00210 Helsinki
Näytä puhelinnumero
020 730 4530
Lisätietoja soita Näytä puhelinnumero 020 730 4530 tai info@repoint.fi
https://repoint.fi/