Vuokrataan toimistotilat, liiketilat, tuotantotilat - Kuopio
Kartanonkatu 4 A, Levänen, 70700 Kuopio #10801794
Liiketila + Toimistotila
Osoite
Kartanonkatu 4 A, 70700 Kuopio
Tilatyyppi
Toimistotilaa
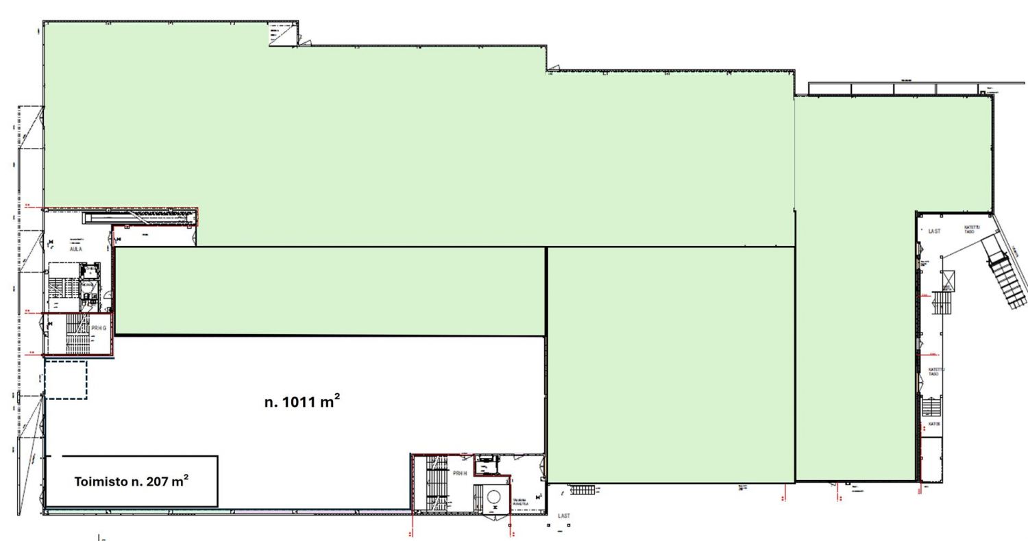
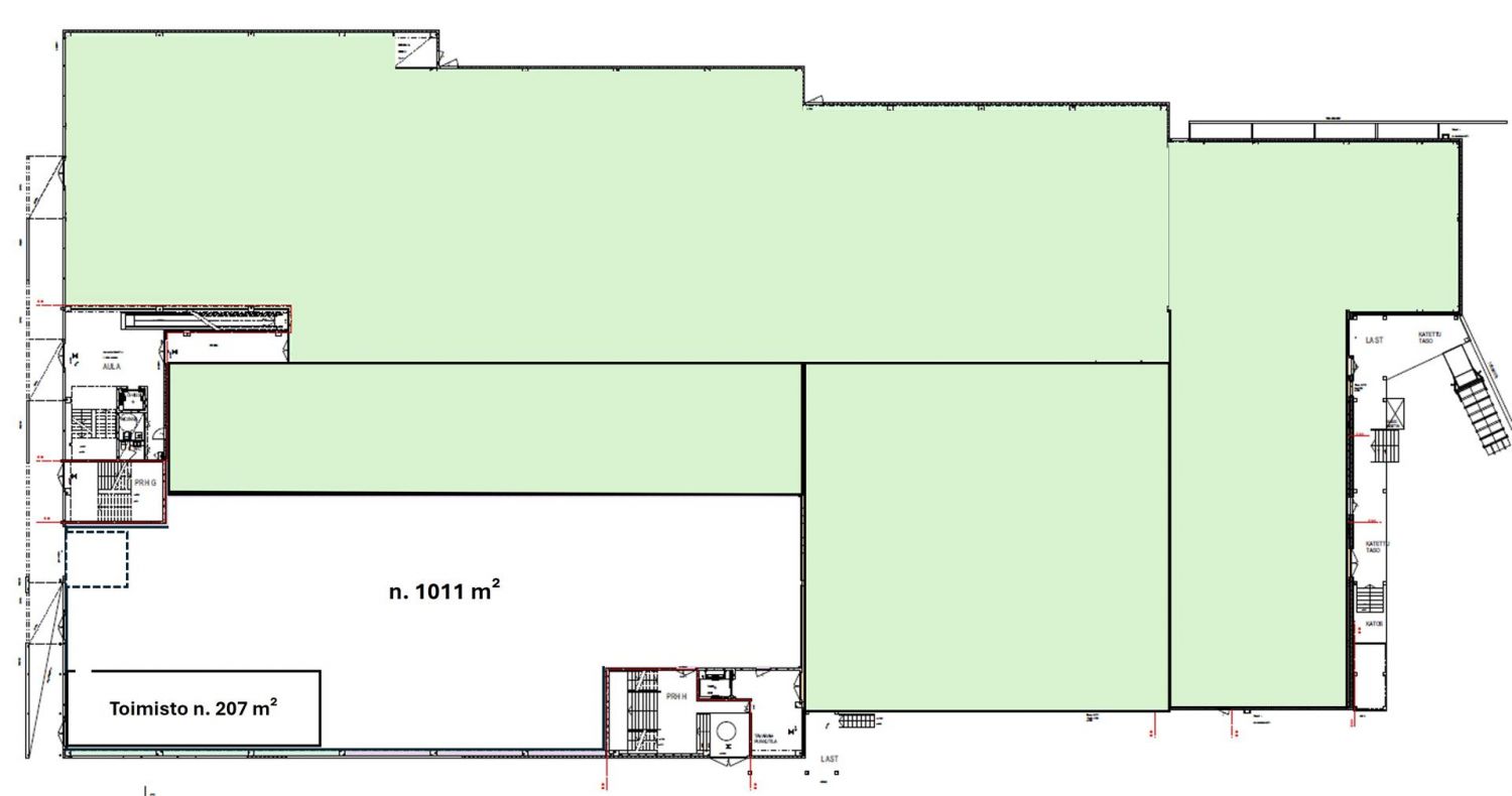
207 m2
Liiketilaa
1011 m2
Tuotantotilaa
1011 m2
Yhteensä
1011 - 1218 m2
Kiinteistö
Cantti Kauppakeskus @ vuokrattavaa liiketilaa + toimistoa
Kauppakeskus Cantti sijaitsee Leväsen kaupallisella alueella.
Kohde on tunnettu ja menestyvä kauppapaikka, jossa toimivat muun muassa BLC Turva, SaKa, ISKU, MASKU, JYSK, PTV GYM sekä muita tunnettuja toimijoita.
Cantti tarjoaa monipuolisen kattauksen liikkeitä ja palveluita koko perheen tarpeisiin.
Kiinteistöä on ryhdytty kehittämään entistä paremmaksi ja uusia avauksia on saatu aikaiseksi!
Liiketila 1011 m² + toimistotila 207 m² kokonaisuus = 1218 m²
Uudenveroinen ja tyylikäs tilaratkaisu soveltuu erinomaisesti erikois- ja käyttötavaramyymäläksi ja tukkuliiketoimintaan
Kokonaisuutta voidaan suunnitella, tarvittaessa säätää ja saneerata asiakkaan tilatarpeiden mukaisesti.
Tilaan on oma käyntiovi, tuulikaappi sekä nosto-ovi (4,0 m x 3,5 m) ja sisätilat ovat uudenveroiset ja valoisat.
Lisäksi on taukotila/lounge minikeittiövarusteilla.
Takapihan puolella on lastauslaituri ja lastauseteinen.
Piha-alue on laaja ja pysäköintipaikat ovat liiketilan edustalla.
Kiinteistö ja sijainti
Cantti koostuu kahdesta liikerakennuksesta, joiden vuokrattavat liiketilat ovat sisäkorkeita showroom-tyyppisiä tiloja.
Tällä suositulla kaupallisella alueella sijaitsevat myös esimerkiksi Puuilo, K-rauta, Dahl, Biltema ja useita kymmeniä palveluyrityksiä.
Näkyvät valomainospaikat, Pyloni ja lipputangot ovat tontilla käytettävissä.
Uudet liikennejärjestelyt tontille
Leväsentien liikennöintiä päivitetään ja tontille saapuminen helpottuu. Leväsentie on Vitostien rinnakkaistie ja eteläisten kaupunginosien ja keskustan välinen pääkatu. Vuorokautinen liikenne on 6 000-11 000 autoa.
Ota yhteyttä ja mennään katsastamaan vuokratilat!
Kauppakeskus Cantti sijaitsee Leväsen kaupallisella alueella.
Kohde on tunnettu ja menestyvä kauppapaikka, jossa toimivat muun muassa BLC Turva, SaKa, ISKU, MASKU, JYSK, PTV GYM sekä muita tunnettuja toimijoita.
Cantti tarjoaa monipuolisen kattauksen liikkeitä ja palveluita koko perheen tarpeisiin.
Kiinteistöä on ryhdytty kehittämään entistä paremmaksi ja uusia avauksia on saatu aikaiseksi!
Liiketila 1011 m² + toimistotila 207 m² kokonaisuus = 1218 m²
Uudenveroinen ja tyylikäs tilaratkaisu soveltuu erinomaisesti erikois- ja käyttötavaramyymäläksi ja tukkuliiketoimintaan
Kokonaisuutta voidaan suunnitella, tarvittaessa säätää ja saneerata asiakkaan tilatarpeiden mukaisesti.
Tilaan on oma käyntiovi, tuulikaappi sekä nosto-ovi (4,0 m x 3,5 m) ja sisätilat ovat uudenveroiset ja valoisat.
Lisäksi on taukotila/lounge minikeittiövarusteilla.
Takapihan puolella on lastauslaituri ja lastauseteinen.
Piha-alue on laaja ja pysäköintipaikat ovat liiketilan edustalla.
Kiinteistö ja sijainti
Cantti koostuu kahdesta liikerakennuksesta, joiden vuokrattavat liiketilat ovat sisäkorkeita showroom-tyyppisiä tiloja.
Tällä suositulla kaupallisella alueella sijaitsevat myös esimerkiksi Puuilo, K-rauta, Dahl, Biltema ja useita kymmeniä palveluyrityksiä.
Näkyvät valomainospaikat, Pyloni ja lipputangot ovat tontilla käytettävissä.
Uudet liikennejärjestelyt tontille
Leväsentien liikennöintiä päivitetään ja tontille saapuminen helpottuu. Leväsentie on Vitostien rinnakkaistie ja eteläisten kaupunginosien ja keskustan välinen pääkatu. Vuorokautinen liikenne on 6 000-11 000 autoa.
Ota yhteyttä ja mennään katsastamaan vuokratilat!
Vapautuu
Kysy
Kerros
Katutaso
Lastauslaituri
Ota yhteyttä
Logistila Oy
Ankkuritie 1, 70460 KUOPIO
Timo Puustinen
Näytä puhelinnumero
0400 33 00 30
Pyydä lisätietoa
