Vuokrataan varastotilat - Helsinki
Kiviaidankatu 2, Lauttasaari, 00210 Helsinki #10801520
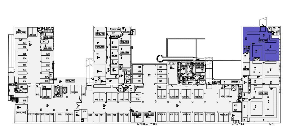
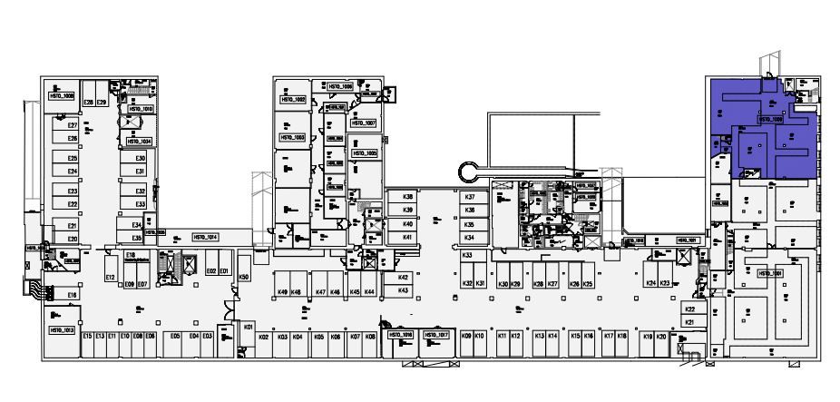
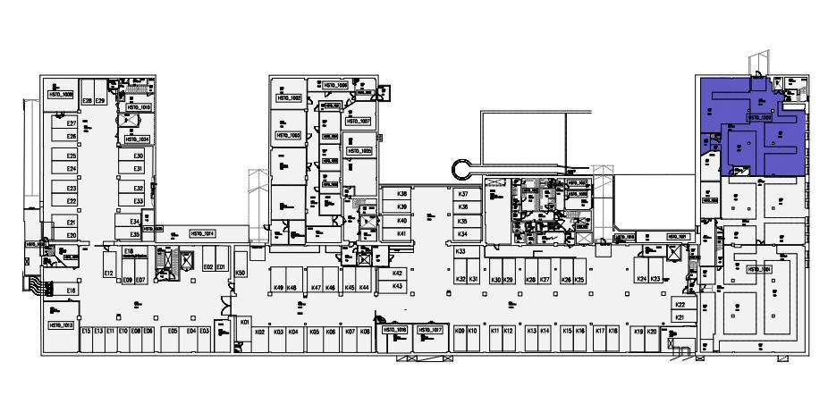
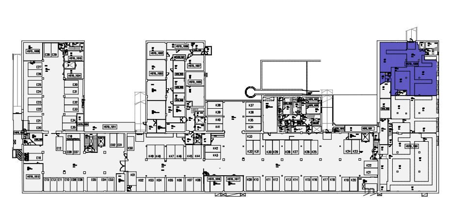
Vuokrataan varastotila Helsingin Lauttasaaressa. Tilassa on nosto-ovi ja tavarahissi, ja tila on yhdistettävissä kerroksen toisen varastotilan kanssa.
Kiinteistö sijaitsee erinomaisella paikalla, hyvien kulkuyhteyksien varrella.
Lisätietoja saat numerosta 020 7290 710. Lisää kohteita osoitteessa premises.fi.
Energialuokka E.Kerros: K
Osoite
Kiviaidankatu 2, 00210 Helsinki
Tilatyyppi
Varastotilaa
329 m2
Kulkuyhteydet
Helsingin Lauttasaareen hyvät bussiyhteydet keskustasta. Läheinen Länsiväylä takaa sujuvat yhteydet Helsingin keskustaan sekä Espoon suuntaan.
Ota yhteyttä
CRE PREMISES
Puh. Näytä puhelinnumero 020 7290 710
Vantaankoskentie 14
01670 VANTAA
Pyydä lisätietoa
