Vuokrataan toimistotilat - Helsinki
Ratakatu 1B, Kaartinkaupunki, 00120 Helsinki #10801345
Eleganttia toimistotilaa loistosijainnilla
Osoite
Ratakatu 1B, 00120 Helsinki
Tilatyyppi
Toimistotilaa
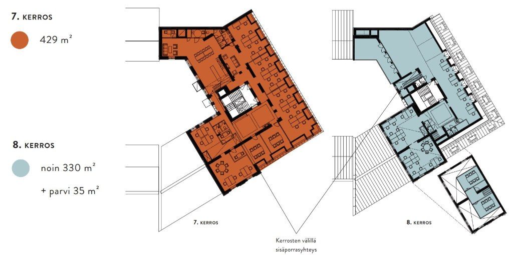
794 m2
Muuta
Vuokrattavana 794m² toimistotila erinomaisella sijainnilla Kaartinkaupungin ja Punavuoren rajalla, Johanneksen kirkon naapurissa. Kahden kerroksen tilassa on terassi, huonekorkeus parhaillaan 6m ja sisäiset portaat. Valmistuu loppuvuodesta 2025. Tilan pohjaratkaisu ja viimeistely suunnitellaan yhdessä tulevan vuokralaisen kanssa, joten se voidaan muokata juuri teidän tarpeisiinne sopivaksi.
Kuvat ovat havainnekuvia kiinteistön eri tiloista.
Toimitilakiinteistö Glorian eleganteissa toimistotiloissa yhdistyvät historiallinen arvokkuus ja modernit mukavuudet Suuri huonekorkeus ja ajalle tyypilliset, leveät ikkunalaudat lisäävät tilojen viehättävyyttä entisestään. Kiinteistön atrium-henkinen sisäpiha on mukava rentoutumis- ja kohtaamispaikka.
Gloria peruskorjataan parhaillaan, ja ensimmäiset vuokralaiset muuttavat sisään vuoden 25 alusta. Kiinteistölle haetaan LEED-sertifikaattia korkeimmalla Platinum-tasolla, mikä takaa rakennuksen ympäristöystävällisyyden ja energiatehokkuuden. Kiinteistö sijaitsee loistavien palveluiden ja yhteyksien varrella, mikä tekee siitä ihanteellisen toimipaikan yrityksellenne.
Tervetuloa tutustumaan, varaathan välittäjältä oman esittelyaikasi. Voit kysyä meiltä myös muita sopivia vaihtoehtoja, kauttamme löydät juuri teidän tarpeisiinne sopivat tilat. Palvelumme on tilanhakijalle veloitukseton!
Kuvat ovat havainnekuvia kiinteistön eri tiloista.
Toimitilakiinteistö Glorian eleganteissa toimistotiloissa yhdistyvät historiallinen arvokkuus ja modernit mukavuudet Suuri huonekorkeus ja ajalle tyypilliset, leveät ikkunalaudat lisäävät tilojen viehättävyyttä entisestään. Kiinteistön atrium-henkinen sisäpiha on mukava rentoutumis- ja kohtaamispaikka.
Gloria peruskorjataan parhaillaan, ja ensimmäiset vuokralaiset muuttavat sisään vuoden 25 alusta. Kiinteistölle haetaan LEED-sertifikaattia korkeimmalla Platinum-tasolla, mikä takaa rakennuksen ympäristöystävällisyyden ja energiatehokkuuden. Kiinteistö sijaitsee loistavien palveluiden ja yhteyksien varrella, mikä tekee siitä ihanteellisen toimipaikan yrityksellenne.
Tervetuloa tutustumaan, varaathan välittäjältä oman esittelyaikasi. Voit kysyä meiltä myös muita sopivia vaihtoehtoja, kauttamme löydät juuri teidän tarpeisiinne sopivat tilat. Palvelumme on tilanhakijalle veloitukseton!
Vapautuu
Kysy
Kerros
7 ja 8
Ota yhteyttä
Tuloskiinteistöt Oy
Rikhardinkatu 2 B 5, 00130 Helsinki
Näytä puhelinnumero
(09) 6841 620
Nina Meyke
Commercial Real Estate Advisor
Näytä puhelinnumero
+358 50 466 1519
Otto Ahtola
Commercial Real Estate Advisor
Näytä puhelinnumero
+358 40 042 2830
Pyydä lisätietoa
