Myydään tuotantotilat, varastotilat, työtilat, autotalli/-hallitilat - Nurmijärvi
Ilvesvuorenkatu 27, 01900 Nurmijärvi #10801205
Nyt myynnissä iso moneen käyttöön sopiva hallirakennus Nurmijärvellä!
Osoite
Ilvesvuorenkatu 27, 01900 Nurmijärvi
Tilatyyppi
Tuotantotilaa
1016 m2
Varastotilaa
1016 m2
Työtilaa
1016 m2
Autotalli/-hallitilaa
1016 m2
Yhteensä
1016 m2
Pohjapiirros
Myyntihinta
890'000 € (velaton)
Muuta
Nurmijärven Ilvesvuoren teollisuusalueella on myytävänä hyväkuntoinen hallirakennus.
Rakennuksen pinta-ala on noin 1016 m² ja sen hyvään varusteluun kuuluu kaksi sähkökäyttöistä nosto-ovea (L 4 m x K 5 m) ja kolme manuaalikäyttöistä nosto-ovea. Hallissa on koneellinen poisto ja painovoimainen tulo ja kaukolämmöllä toimiva lattialämmitys. Rakennuksessa erinomainen valaistus, sähkökäyttöiset savunpoistoluukut ja paljon voimavirtapistokkeita. Tilassa ei ole lattiakaivoja.
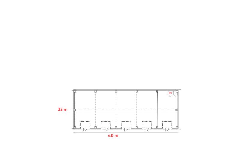
Hallin vapaa korkeus on noin 8 metriä, leveys noin 25 metriä ja pituus noin 40 metriä. Tilat soveltuvat hyvin jaettaviksi 1–5 osaan, tällä hetkellä hallissa on yksi väliseinä asennettuna. Yhden lohkon pinta-ala on 200 m² ja siinä on WC asennettuna. Mikäli halli jaetaan useampaan lohkoon, on muihin tiloihin WC-varaukset olemassa.
Rakennus on toiminut kuljetusliikkeen varastotilana ja tällä hetkellä tiloissa on 700 lavapaikkaa. Lavahyllyt ovat lunastettavissa oston yhteydessä.
Iso asfaltoitu ja aidattu piha-alue oma tontilla 2600 m², jossa rakennusoikeutta jäljellä noin 382 m².
Rakennus sijaitsee hyvällä paikalla; alueelta on nopea yhteys Tampereen moottoritielle.
Erinomainen hallirakennus, jonka omalla tontilla vielä rakennusoikeutta jäljellä!
Kohdetiedot
Sijainti:
Katuosoite: Ilvesvuorenkatu 27, 01900 Nurmijärvi
Kaupunginosa: Ilvesvuori
Ympäristö: Teollisuusalue
Tontti
Pinta-ala: 2600 m² (RO jäljellä 382 m²)
Omistusmuoto: Oma
Rakennus/huoneisto
Pinta-ala: Noin 1016 m²
Kiinteistötyyppi: Varastohallirakennus
Kunto, varusteet ja palvelut: Uudenkarheat tilat. Hallissa nosto-ovia, koneellinen ilmanvaihto, lattialämmitys, wc, kuormalavahyllyt (700 kpl)
Lämmitys: Kaukolämpö (lattialämmitys järjestelmä)
Vapautuminen: Nopeasti
Myyntihinta ja kulut
Velaton hinta: 890’000 €
Kiinteistövero: 5’320 €/v
Vakuutus: 1’500 €/v
Lämmityskulut: 4'800 €/v
Sähkökulut: 2’100 €/v
Rakennuksen pinta-ala on noin 1016 m² ja sen hyvään varusteluun kuuluu kaksi sähkökäyttöistä nosto-ovea (L 4 m x K 5 m) ja kolme manuaalikäyttöistä nosto-ovea. Hallissa on koneellinen poisto ja painovoimainen tulo ja kaukolämmöllä toimiva lattialämmitys. Rakennuksessa erinomainen valaistus, sähkökäyttöiset savunpoistoluukut ja paljon voimavirtapistokkeita. Tilassa ei ole lattiakaivoja.
Hallin vapaa korkeus on noin 8 metriä, leveys noin 25 metriä ja pituus noin 40 metriä. Tilat soveltuvat hyvin jaettaviksi 1–5 osaan, tällä hetkellä hallissa on yksi väliseinä asennettuna. Yhden lohkon pinta-ala on 200 m² ja siinä on WC asennettuna. Mikäli halli jaetaan useampaan lohkoon, on muihin tiloihin WC-varaukset olemassa.
Rakennus on toiminut kuljetusliikkeen varastotilana ja tällä hetkellä tiloissa on 700 lavapaikkaa. Lavahyllyt ovat lunastettavissa oston yhteydessä.
Iso asfaltoitu ja aidattu piha-alue oma tontilla 2600 m², jossa rakennusoikeutta jäljellä noin 382 m².
Rakennus sijaitsee hyvällä paikalla; alueelta on nopea yhteys Tampereen moottoritielle.
Erinomainen hallirakennus, jonka omalla tontilla vielä rakennusoikeutta jäljellä!
Kohdetiedot
Sijainti:
Katuosoite: Ilvesvuorenkatu 27, 01900 Nurmijärvi
Kaupunginosa: Ilvesvuori
Ympäristö: Teollisuusalue
Tontti
Pinta-ala: 2600 m² (RO jäljellä 382 m²)
Omistusmuoto: Oma
Rakennus/huoneisto
Pinta-ala: Noin 1016 m²
Kiinteistötyyppi: Varastohallirakennus
Kunto, varusteet ja palvelut: Uudenkarheat tilat. Hallissa nosto-ovia, koneellinen ilmanvaihto, lattialämmitys, wc, kuormalavahyllyt (700 kpl)
Lämmitys: Kaukolämpö (lattialämmitys järjestelmä)
Vapautuminen: Nopeasti
Myyntihinta ja kulut
Velaton hinta: 890’000 €
Kiinteistövero: 5’320 €/v
Vakuutus: 1’500 €/v
Lämmityskulut: 4'800 €/v
Sähkökulut: 2’100 €/v
Vapautuu
Sopimuksen mukaan
Katutasossa
Näkyvällä paikalla
Ota yhteyttä
Tilat.fi
KTM, LKV Antti Soivio
Näytä puhelinnumero
0400 446 553
OTM, LKV Riikka Tuominen
Näytä puhelinnumero
0400 551 790
KTM, LKV Maria-Sofia Puhakka
Näytä puhelinnumero
0400-150330
HTM, LKV Aleksandra Riki
Näytä puhelinnumero
0400-211288
Tilat.fi Oy on toimitilojen välitykseen erikoistunut yritys.
http://www.tilat.fiPyydä lisätietoa
