Vuokrataan toimistotilat - Oulu
Uusikatu 35 tsto 203, 90100 Oulu #10800318
Vuokrataan siisti toisen kerroksen toimistohuoneisto vastapäätä keskustan Technopolista.
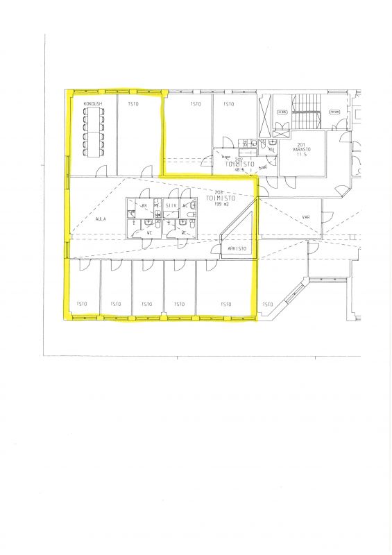
Huoneisto asemoituu keskustan puoleiseen päätyyn. Työhuoneita on 7kpl ja avotilaakin löytyy.
Naapurista löytyy loistava lounaspaikka ja vaihtelua lisäksi ydinkeskustan paikoista.
Osoite
Uusikatu 35 tsto 203, 90100 Oulu
Tilatyyppi
Toimistotilaa
199 m2
Pohjapiirros
Vuokra
13,50€/m² +alv, lisäksi käyttösähkö ja vesi
Vuokraan sisältyy lämpö
Sijainti
Ydinkeskustan tuntumassa
Pysäköinti
Saatavana 4 pistokepaikkaa
Palvelut
Ydinkeskustan
Muuta
Huoneistossa hyvä ilmanvaihto
Vapautuu
01.11.2024
Rakennusvuosi
1985
Kerros
2 / 3
Energiatehokkuusluokka
F2013
E-luku
253 kWhE/m²/vuosi
Näkyvällä paikalla
Ota yhteyttä
Pohjois-Suomen Toimitilat Oy
Sepänkatu 20, 90100 Oulu
Pekka Valkola
Näytä puhelinnumero
044 311 0555
Pyydä lisätietoa
