Vuokrataan toimistotilat - Helsinki
Yrjönkatu 23 B, Kamppi, 00100 Helsinki #10800228
Ylimmän kerroksen siisti ja valoisa toimistotila Forumin sydämessä. Ikkunanäkymät Kukontorille.
Osoite
Yrjönkatu 23 B, 00100 Helsinki
Tilatyyppi
Toimistotilaa
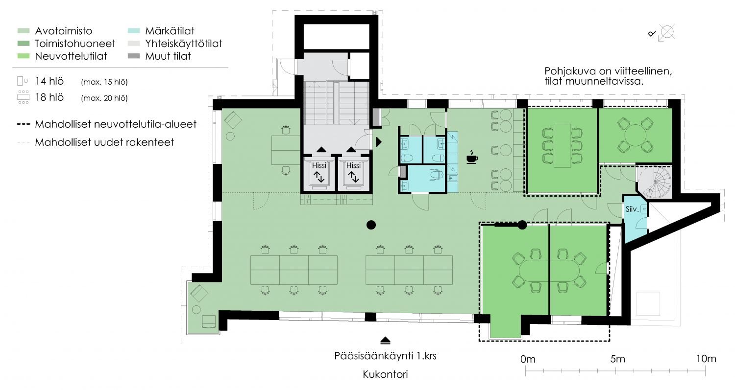
251 m2
Pohjapiirros
Kiinteistö
Helsingin keskeisimmällä paikalla Forum Kukontorilla sijaitsee moderni toimistokiinteistö.
Forum-korttelin ainutlaatuinen kokonaisuus muodostuu kuudesta kiinteistöstä. Helsingin keskeisimmällä paikalla sijaitsevissa rakennuksissa on persoonallisia yksityiskohtia ja pitkän kulttuuriperinteen tuomaa arvokkuutta.
Kaikille Forum-korttelin kiinteistöille on myönnetty BREEAM In-Use Excellent -tason ympäristösertifikaatti. BREEAM (Building Research Establishment Environmental Assessment Method) on kansainvälinen rakennusten ympäristöluokitusjärjestelmä, joka tähtää rakennuksen käytön ympäristövaikutusten vähentämiseen sekä terveellisempien työympäristöjen kehittämiseen.
Forum-kortteli on myös täysin hiilineutraali käytön aikaisen energiankulutuksen osalta.
Forum-korttelin ainutlaatuinen kokonaisuus muodostuu kuudesta kiinteistöstä. Helsingin keskeisimmällä paikalla sijaitsevissa rakennuksissa on persoonallisia yksityiskohtia ja pitkän kulttuuriperinteen tuomaa arvokkuutta.
Kaikille Forum-korttelin kiinteistöille on myönnetty BREEAM In-Use Excellent -tason ympäristösertifikaatti. BREEAM (Building Research Establishment Environmental Assessment Method) on kansainvälinen rakennusten ympäristöluokitusjärjestelmä, joka tähtää rakennuksen käytön ympäristövaikutusten vähentämiseen sekä terveellisempien työympäristöjen kehittämiseen.
Forum-kortteli on myös täysin hiilineutraali käytön aikaisen energiankulutuksen osalta.
Sijainti
Kiinteistö sijaitsee aivan Helsingin ydinkeskustassa. Bussit, raitiovaunut, junat ja metro ovat välittömässä läheisyydessä tai muutaman minuutin kävelymatkan päässä. Forum-kortteli on Helsingin vilkkaimpia läpikulkupaikkoja. Sieltä on kulkutunneliyhteys muualle keskustaan, kuten päärautatieasemalle ja Kampin liikenneterminaaliin.
Pysäköinti
Forum-P
Palvelut
Korttelissa on kattava valikoima kaupanalan toimijoita sekä palveluita terveyden- ja kauneudenhoidosta kahviloihin ja ravintoloihin. Kaikki Kauppakeskus Forumin ja ydinkeskustan palvelut ovat lähellä.
Kulkuyhteydet
Lähimmälle bussipysäkille 250 m
Lähimmälle juna-asemalle 500 m
Lähimmälle metroasemalle 400 m
Lähimmälle raitiovaunupysäkille 150 m
Lentokentälle 35 min
Lähimmälle juna-asemalle 500 m
Lähimmälle metroasemalle 400 m
Lähimmälle raitiovaunupysäkille 150 m
Lentokentälle 35 min
Vapautuu
Kysy
Rakennusvuosi
1980
Kerros
7
Energiatehokkuusluokka
B2018 (liiketilat) C2018 (toimistot)
Ympäristöluokitus
BREEAM In-Use Excellent,GRESB Global Sector Leader 2025
Ota yhteyttä
Sponda Oy
Yrjönkatu 29C, 00100 Helsinki
Näytä puhelinnumero
020 43131
Harri Autio
Director, Leasing
Näytä puhelinnumero
+358 40 846 6560
Heidi Svartsjö
Leasing Manager, Retail
Näytä puhelinnumero
+35850 012 1183
Sponda Oy
https://www.sponda.fiPyydä lisätietoa
