Vuokrataan toimistotilat - Helsinki
Töölönkatu 4, Etu-Töölö, 00100 Helsinki #10799349
Remontoitua ja uudistettua toimistotilaa Kuparitalossa.
Osoite
Töölönkatu 4, 00100 Helsinki
Tilatyyppi
Toimistotilaa
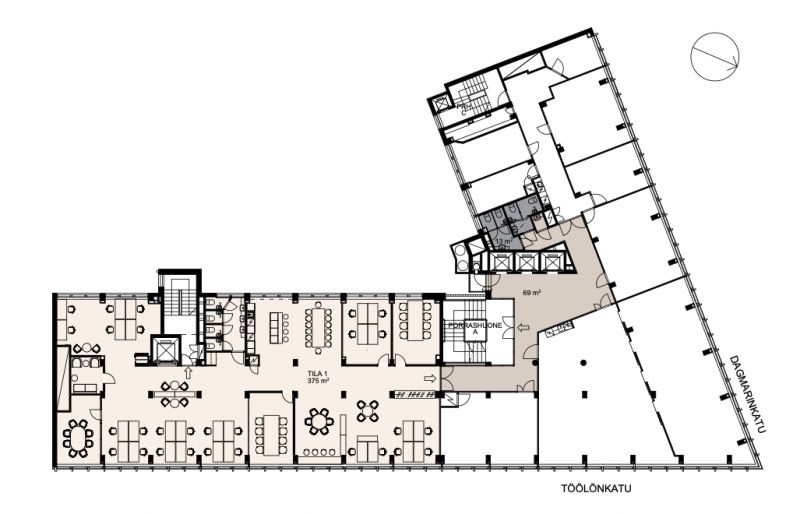
375 m2
Virtuaaliesittely
Kiinteistö
Vuonna 1957 Outokumpu Oy:n käyttöön valmistuneessa toimistorakennuksessa pääkonttoritason arvokkuus kohtaa modernin raikkauden. Kuparitalon tilat ovat juuri remontoitu ja uusi vuokralainen voi päättää oman toimistotilan sisustuksen kolmesta vaihtoehdosta.
Toimistotila sijaitsee kinteistön 4 kerroksessa ja siinä on nykyjaolla:
- 4 kpl toimisto/neuvotteluhuonetta
- Avotilaa
- avokeittiö
- teams/puhelinhuone
- 4 kpl wc tiloja
Kaunis ja ajaton kupari elää sen historiassa, julkisivussa ja sisätilojen detaljeissa.
Toimistotila sijaitsee kinteistön 4 kerroksessa ja siinä on nykyjaolla:
- 4 kpl toimisto/neuvotteluhuonetta
- Avotilaa
- avokeittiö
- teams/puhelinhuone
- 4 kpl wc tiloja
Kaunis ja ajaton kupari elää sen historiassa, julkisivussa ja sisätilojen detaljeissa.
Sijainti
Kuparitalo sijaitsee Etu-Töölössä, eduskuntlon naapurissa. Kiinteistö on erinomaisten kulkuyhteyksien, kulttuuririentojen ja palveluiden keskellä, vajaan vartin kävelymatkan päässä rautatieasemalta ja Kampin keskuksesta.
Ympäristö
Samassa kiinteistössä on ALepa ja vieressä legendaarinen Manala.
Pysäköinti
Pysäköintiin on tarjolla viisi autohallipaikkaa ja neljätoista pihapaikkaa. Autopaikkoja on myös vuokrattavissa naapurikiinteistöltä ja Finlandiatalon parkkihallista.
Palvelut
Aulapalvelut
Edustustilat
Lounasravintola
Sauna
Vuokrattavat neuvottelutilat
Edustustilat
Lounasravintola
Sauna
Vuokrattavat neuvottelutilat
Kulkuyhteydet
Raitiovaunupysäkki 200 m
Juna-asema 500 m
Metro 500 m
Juna-asema 500 m
Metro 500 m
Muuta
Tutustu kiinteistöön kätevästi 3D virtual kierroksen avulla.
Vapautuu
Heti
Energiatehokkuusluokka
Ei lain edellyttämää energiatodistusta
Näkyvällä paikalla
Ota yhteyttä
Comreal Oy LKV
Joonas Nilsson
Näytä puhelinnumero
044 328 3425
Läkkisepänkuja 6, 00620 Helsinki
Comreal on valtakunnallinen, asiantunteva ja aktiivinen kiinteistöalan kumppani, joka palvelee sekä kiinteistönomistajia että toimitilojen käyttäjiä. Toimintamme ydin on yksinkertainen: tarjota erinomaista palvelua kaikille.
Pyydä lisätietoa
