Vuokrataan/myydään tuotantotilat, varastotilat, työtilat - Kuopio
Hakekatu 2, 70800 Kuopio #10798700
Myydään osuus teollisuusrakennuksesta erittäin hyvällä sijainnilla Kuopion Kylmämäessä. Ajoaika moottoritielle vain muutamia minuutteja, ja myös keskustaan ajaa alle vartissa.
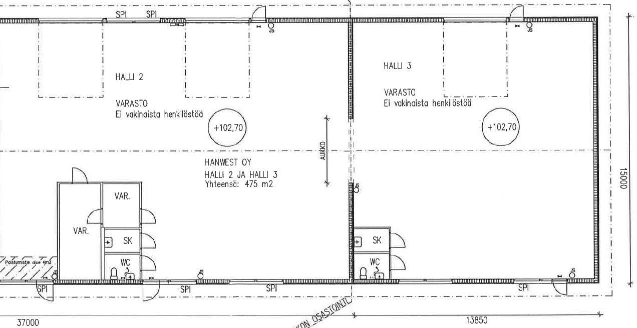
Myytävä osuus sisältää hallin 2 (275 m2) ja hallin 3 (203 m2). Halli 2 (275 m2) myös vuokrattavissa!
Hallissa 2 on kaksi nosto-ovea (3,6x3,4 ja 3x3 m), ja se on mahdollista erottaa edelleen kahdeksi pienemmäksi halliksi. Hallissa 3 on yksi nosto-ovi (3,5x3,5 m). Hallien vapaa korkeus on reilut 3 metriä.
Nosto-ovien lisäksi hallien varusteluun kuuluvat öljynerotuskaivot. Rakennuksessa on koneellinen tulo- ja poistoilmanvaihto, lämmitys kaukolämmöllä.
Katutasossa
Suomen Toimitila-asiantuntijat Oy
Vuorikatu 26 A, 70100 KUOPIO
Näytä puhelinnumero
044 3636 198
Tanja Nylander
