Vuokrataan toimistotilat - Helsinki
Kaivokatu 8, Kluuvi, 00101 Helsinki #10798085
Hyväkuntoinen toimistotila Citycenterin sydämessä. Upeat näkymät kattojen yli etelään.
Osoite
Kaivokatu 8, 00101 Helsinki
Tilatyyppi
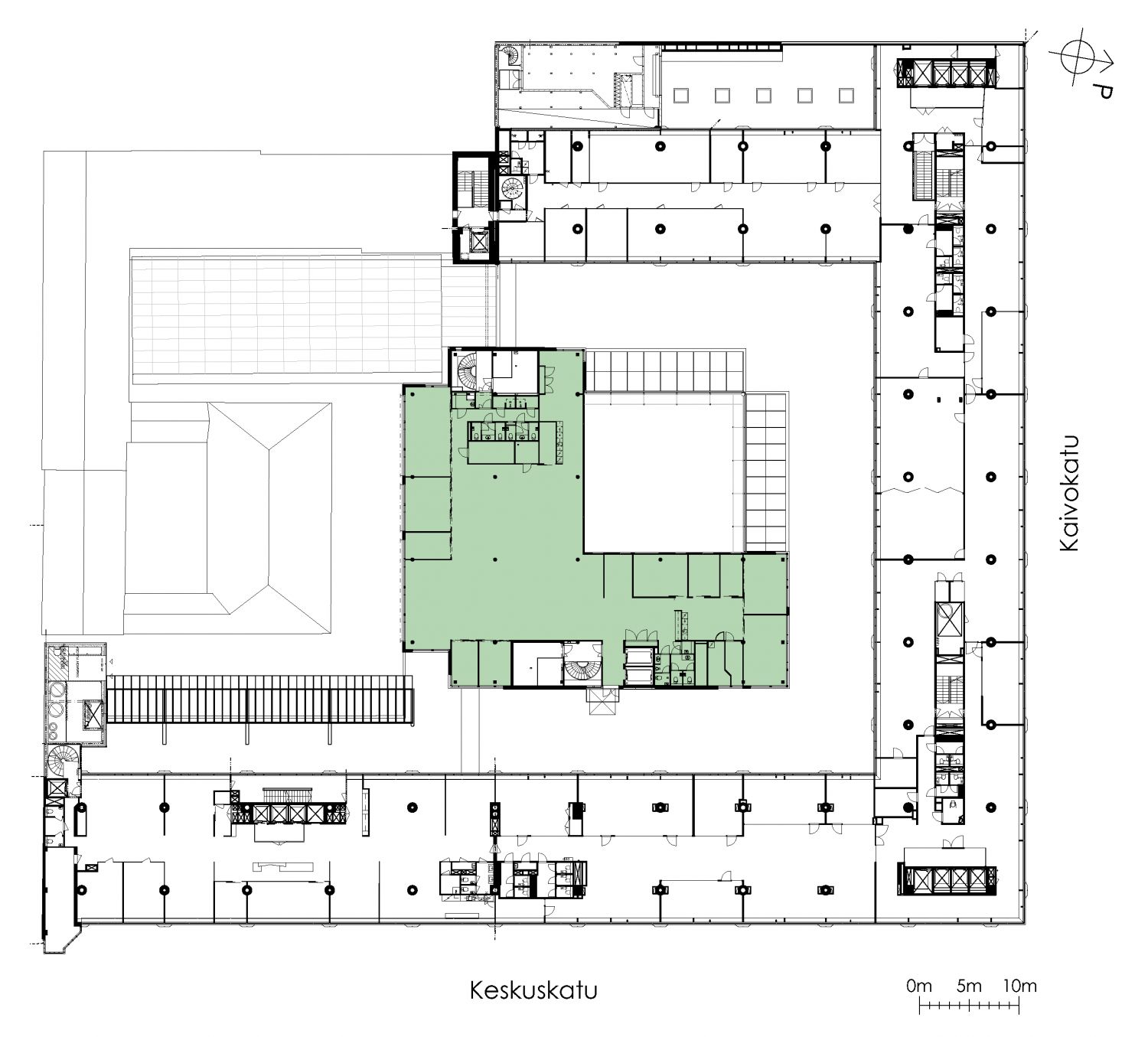
Toimistotilaa
727 m2
Pohjapiirros
Kiinteistö
Tämä moderni vuonna 2011 rakennettu toimistotorni sijaitsee Citycenterin liike- ja toimistokeskuksen sisäpihalla aivan Helsingin sydämessä. Toimistotiloista on upeat näkymät keskustan kattojen ylle sekä Citycenterin sisäpihalle.
Toimistotalo on Helsingin päärautatieaseman ja Stockmannin välissä kaupungin parhaiden kulkuyhteyksien ja palvelujen äärellä. Aluetta palvelevat kaupungin julkiset pysäköintihallit ja pyöräilijöille on tarjolla lukittu säilytystila. Rautatieasemalle, Kampin kaukoliikenteen bussiterminaaliin ja Forumin kauppakeskukseen pääsee kuivin jaloin kävelytunneleita pitkin.
Citycenterin toimistoille on myönnetty BREEAM In-Use Excellent -tason ympäristösertifikaatti. BREEAM (Building Research Establishment Environmental Assessment Method) on kansainvälinen rakennusten ympäristöluokitusjärjestelmä, joka tähtää rakennuksen käytön ympäristövaikutusten vähentämiseen sekä terveellisempien työympäristöjen kehittämiseen.
Lisäksi toimistotornilla on rakentamisenaikainen LEED Gold ympäristösertifikaatti, jolla todennettiin suunnittelun ja rakentamisen ympäristötavoitteiden täyttyminen.
Citycenter toimii 100 % päästöttömällä energialla, kuten tuulisähköllä ja uusiutuvalla kaukolämmöllä. Lisäksi katolle asennettu aurinkovoimala tuottaa uusiutuvaa energiaa kiinteistön käyttöön.
Toimistotalo on Helsingin päärautatieaseman ja Stockmannin välissä kaupungin parhaiden kulkuyhteyksien ja palvelujen äärellä. Aluetta palvelevat kaupungin julkiset pysäköintihallit ja pyöräilijöille on tarjolla lukittu säilytystila. Rautatieasemalle, Kampin kaukoliikenteen bussiterminaaliin ja Forumin kauppakeskukseen pääsee kuivin jaloin kävelytunneleita pitkin.
Citycenterin toimistoille on myönnetty BREEAM In-Use Excellent -tason ympäristösertifikaatti. BREEAM (Building Research Establishment Environmental Assessment Method) on kansainvälinen rakennusten ympäristöluokitusjärjestelmä, joka tähtää rakennuksen käytön ympäristövaikutusten vähentämiseen sekä terveellisempien työympäristöjen kehittämiseen.
Lisäksi toimistotornilla on rakentamisenaikainen LEED Gold ympäristösertifikaatti, jolla todennettiin suunnittelun ja rakentamisen ympäristötavoitteiden täyttyminen.
Citycenter toimii 100 % päästöttömällä energialla, kuten tuulisähköllä ja uusiutuvalla kaukolämmöllä. Lisäksi katolle asennettu aurinkovoimala tuottaa uusiutuvaa energiaa kiinteistön käyttöön.
Sijainti
Bussit, raitiovaunut, junat ja metro ovat pienen kävelymatkan päässä.
Pysäköinti
P-Eliel, WTC ja Forum-P
Palvelut
Kaikki keskustan palvelut ovat lyhyen kävelymatkan etäisyydellä. Alueella on runsaasti ravintoloita, kauppoja, hotelleja ja neuvottelukeskuksia.
Kulkuyhteydet
Lähimmälle bussipysäkille 150 m
Lähimmälle juna-asemalle 150 m
Lähimmälle metroasemalle 150 m
Lähimmälle raitiovaunupysäkille 40 m
Lentokentälle 30 min
Lähimmälle juna-asemalle 150 m
Lähimmälle metroasemalle 150 m
Lähimmälle raitiovaunupysäkille 40 m
Lentokentälle 30 min
Vapautuu
Kysy
Rakennusvuosi
2011
Kerros
7
Energiatehokkuusluokka
C2018
Ympäristöluokitus
BREEAM In-Use Excellent,GRESB Global Sector Leader 2025,LEED Gold
Ota yhteyttä
Sponda Oy
Yrjönkatu 29C, 00100 Helsinki
Näytä puhelinnumero
020 43131
Magnus Öster
Director, Leasing
Näytä puhelinnumero
+358 40 768 4926
Sponda Oy
https://www.sponda.fiPyydä lisätietoa
