Vuokrataan toimistotilat - Helsinki
Mannerheimintie 18, Kamppi, 00100 Helsinki #10797905
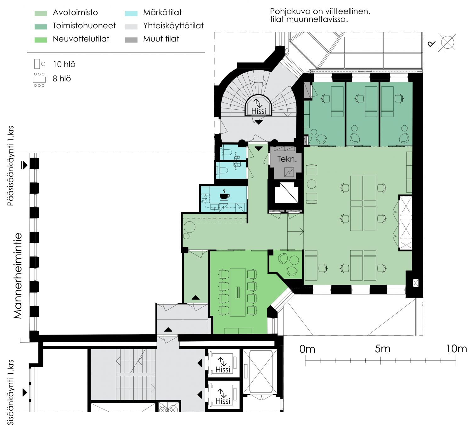
Valoisa ja remontoitu toimisto, josta ikkuna näkymät sisäpihalle.
Osoite
Mannerheimintie 18, 00100 Helsinki
Tilatyyppi
Toimistotilaa
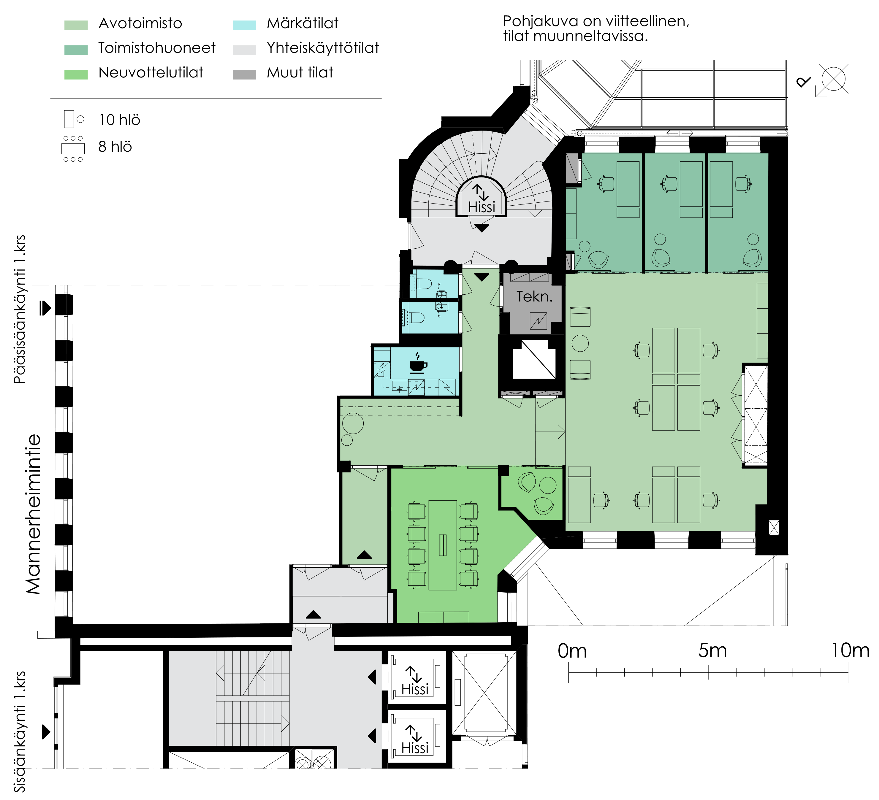
171 m2
Pohjapiirros
Kiinteistö
Entinen sanomalehti Hufvudstadsbladetin liikepalatsi. Lehden entiset painotilat on uudistettu katetuksi atriumiksi, jossa on ravintola- ja liiketiloja sekä läpikulkukäytävä portaineen.
Lehden toimitus työskentelee Mannerheimintie 18:ssa yhä.Forum-korttelin ainutlaatuinen kokonaisuus muodostuu kuudesta kiinteistöstä. Helsingin keskeisimmällä paikalla sijaitsevissa rakennuksissa on persoonallisia yksityiskohtia ja pitkän kulttuuriperinteen tuomaa arvokkuutta.
Kaikille Forum-korttelin kiinteistöille on myönnetty BREEAM In-Use Excellent -tason ympäristösertifikaatti. BREEAM (Building Research Establishment Environmental Assessment Method) on kansainvälinen rakennusten ympäristöluokitusjärjestelmä, joka tähtää rakennuksen käytön ympäristövaikutusten vähentämiseen sekä terveellisempien työympäristöjen kehittämiseen.
Forum-kortteli on myös täysin hiilineutraali käytön aikaisen energiankulutuksen osalta.
Lehden toimitus työskentelee Mannerheimintie 18:ssa yhä.Forum-korttelin ainutlaatuinen kokonaisuus muodostuu kuudesta kiinteistöstä. Helsingin keskeisimmällä paikalla sijaitsevissa rakennuksissa on persoonallisia yksityiskohtia ja pitkän kulttuuriperinteen tuomaa arvokkuutta.
Kaikille Forum-korttelin kiinteistöille on myönnetty BREEAM In-Use Excellent -tason ympäristösertifikaatti. BREEAM (Building Research Establishment Environmental Assessment Method) on kansainvälinen rakennusten ympäristöluokitusjärjestelmä, joka tähtää rakennuksen käytön ympäristövaikutusten vähentämiseen sekä terveellisempien työympäristöjen kehittämiseen.
Forum-kortteli on myös täysin hiilineutraali käytön aikaisen energiankulutuksen osalta.
Sijainti
Kiinteistö sijaitsee Forum-korttelissa aivan Helsingin ydinkeskustassa. Bussit, raitiovaunut, junat ja metro ovat välittömässä läheisyydessä tai muutaman minuutin kävelymatkan päässä. Forum-kortteli on Helsingin vilkkaimpia läpikulkupaikkoja. Sieltä on kulkutunneliyhteys muualle keskustaan, kuten päärautatieasemalle ja Kampin liikenneterminaaliin.
Pysäköinti
Forum-P
Palvelut
Korttelissa on kattava valikoima kaupanalan toimijoita sekä palveluita terveyden- ja kauneudenhoidosta kahviloihin ja ravintoloihin. Kaikki Kauppakeskus Forumin ja ydinkeskustan palvelut ovat lähellä.
Kulkuyhteydet
Lähimmälle bussipysäkille 300 m
Lähimmälle juna-asemalle 300 m
Lähimmälle metroasemalle 300 m
Lähimmälle raitiovaunupysäkille 100 m
Lentokentälle 30 min
Lähimmälle juna-asemalle 300 m
Lähimmälle metroasemalle 300 m
Lähimmälle raitiovaunupysäkille 100 m
Lentokentälle 30 min
Vapautuu
Kysy
Rakennusvuosi
1923
Kerros
6
Energiatehokkuusluokka
C2018
Ympäristöluokitus
BREEAM In-Use Excellent,GRESB Global Sector Leader 2025
Ota yhteyttä
Sponda Oy
Yrjönkatu 29C, 00100 Helsinki
Näytä puhelinnumero
020 43131
Ilkka Tani
Key Account Manager
Näytä puhelinnumero
+358 50 444 0669
Sponda Oy
https://www.sponda.fiPyydä lisätietoa
