Vuokrataan toimistotilat, näyttelytilat, työtilat - Kerava
Kumitehtaankatu 5, 04260 Kerava #10797379
Moderni ja valoisa toimistotila Keravan Klondyke talossa! Kuukausivuokra: 14 €/m²/kk + alv
Osoite
Kumitehtaankatu 5, 04260 Kerava
Tilatyyppi
Toimistotilaa
280 m2
Näyttelytilaa
280 m2
Työtilaa
280 m2
Yhteensä
280 m2
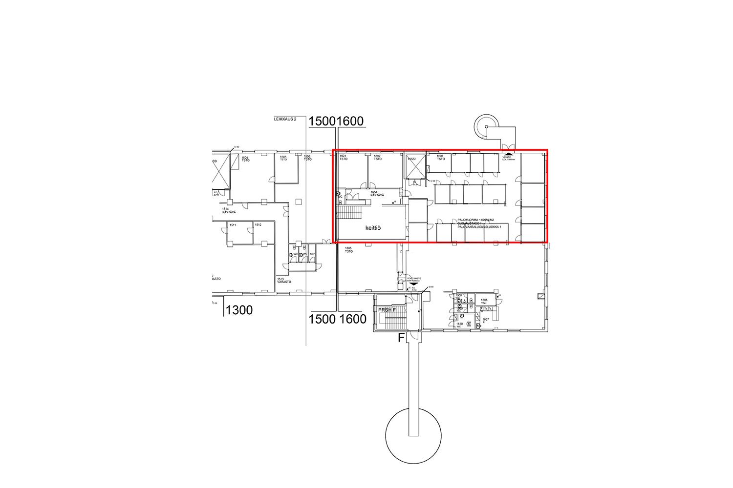
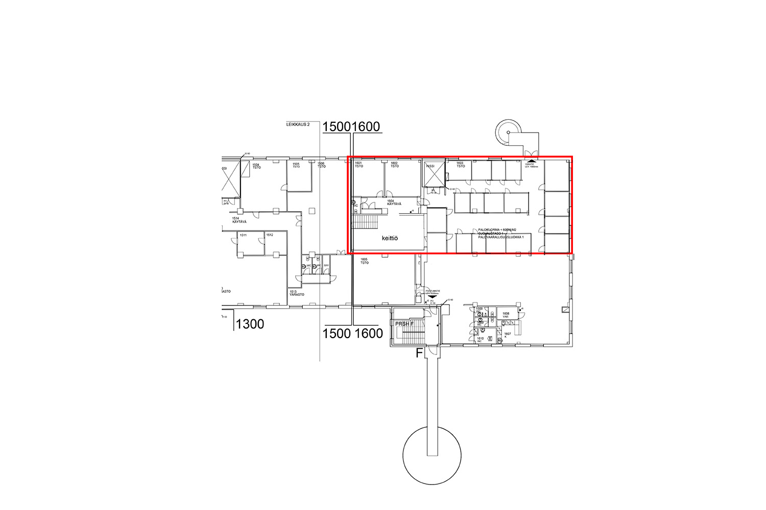
Pohjapiirros
Vuokra
14 €/m²/kk + alv
Vuokraan sisältyy vesi, lämpö
Muuta
Keravan Klondyke talossa on valoisa, upea toimistohuoneisto kivenheiton päässä Savion juna-asemalta. Huoneisto on ison rakennuksen 1. kerroksessa.
Industrial-henkistä tunnelmaa huokuvassa toimistohuoneistossa on noin 20 pienempää 10 m² toimistohuonetta. Tilassa on WC ja tilaan tehdään keittiötila. Oma sisäänkäynti ja tilaan on myös pääsy tavarahissillä. Tavarahissin (3000 kg) mitat ovat; leveys 2 metriä, syvyys 3,4 metriä ja korkeus 2 metriä. Lastauslaiturin korkeus on noin 1 metri.
Pihalla on suuri paikoitusalue, josta vuokrattavissa nimettyjä paikkoja hintaan 20 €/kk ja sähkötolpallisia paikkoja hintaan 50 €/kk. Klondyken talossa palvelee lisäksi viihtyisä lounasravintola, Lunch and Cafe FunFun.
Valoisat ja modernit tilat monenlaisille yrityksille. Tämä ainutlaatuinen toimistotila yhdistää toiminnallisuuden ja tyylikkyyden. Tule tutustumaan ja ihastumaan! Kohteessa myös paljon erikokoista varastotilaa – kysy tästä lisää.
Ali-Keravan yritysalueen palvelut lähellä ja Keravan keskustaan on muutama kilometri. Tämä sijainti tarjoaa erinomaiset liikenneyhteydet, jotka tekevät työmatkoista sujuvia ja käteviä.
Punatiilinen Klondyke-talo on vanha tehdasrakennus, josta on ajan kuluessa muotoutunut upea kokonaisuus useine siipineen industrial-henkisessä ympäristössä. Monimuotoinen Klondyke-talo on kooltaan 30 000 kerrosneliömetriä ja siellä toimii nykyään noin 70 eri alan yritystä.
Modernit ja monipuoliset tilat hyvien kulkuyhteyksien varrella!
Kohdetiedot
Sijainti
Katuosoite: Kumitehtaankatu 5, 04260 Kerava
Kaupunginosa: Ali-Kerava
Ympäristö: Ali-Keravan yritysalue
Rakennus/huoneisto
Pinta-alat: 280 m²
Huoneistoselitelmä: Toimistotila
Hissi: On
Kerros: 1/4
Kunto, varusteet ja palvelut: Erinomainen kunto, toimistohuoneita ja wc tila. Savion juna-asema kulkee aivan vierestä
Pysäköinti: Rakennuksen parkkipaikalla on paikoitustilaa (ilmaisia ja maksullisia)
Vuokrahinta ja kulut
Vuokra: 14 €/m²/kk + alv
Sähkömaksut: Määräytyy neliöpohjaisesti (vuonna 2023 0,46 €/m²) Huom! poikkeuksellisen suuren sähkön käyttö erikseen sovitusti.
Vesimaksu: Sisältyy vuokraan (normaali käyttö)
Lämmitys: Sisältyy vuokraan
Jätehuolto: Sisältyy vuokraan (normaali määrä – ei tuotannosta aiheutuvaa prosessijätettä)
Muut kulut: Vuokralainen vastaa omasta jätehuollosta
Muut ehdot: Minimisopimuskausi 12 kk, vakuus 3 kk:n vuokraa vastaava summa, luottotietojen on oltava kunnossa
Industrial-henkistä tunnelmaa huokuvassa toimistohuoneistossa on noin 20 pienempää 10 m² toimistohuonetta. Tilassa on WC ja tilaan tehdään keittiötila. Oma sisäänkäynti ja tilaan on myös pääsy tavarahissillä. Tavarahissin (3000 kg) mitat ovat; leveys 2 metriä, syvyys 3,4 metriä ja korkeus 2 metriä. Lastauslaiturin korkeus on noin 1 metri.
Pihalla on suuri paikoitusalue, josta vuokrattavissa nimettyjä paikkoja hintaan 20 €/kk ja sähkötolpallisia paikkoja hintaan 50 €/kk. Klondyken talossa palvelee lisäksi viihtyisä lounasravintola, Lunch and Cafe FunFun.
Valoisat ja modernit tilat monenlaisille yrityksille. Tämä ainutlaatuinen toimistotila yhdistää toiminnallisuuden ja tyylikkyyden. Tule tutustumaan ja ihastumaan! Kohteessa myös paljon erikokoista varastotilaa – kysy tästä lisää.
Ali-Keravan yritysalueen palvelut lähellä ja Keravan keskustaan on muutama kilometri. Tämä sijainti tarjoaa erinomaiset liikenneyhteydet, jotka tekevät työmatkoista sujuvia ja käteviä.
Punatiilinen Klondyke-talo on vanha tehdasrakennus, josta on ajan kuluessa muotoutunut upea kokonaisuus useine siipineen industrial-henkisessä ympäristössä. Monimuotoinen Klondyke-talo on kooltaan 30 000 kerrosneliömetriä ja siellä toimii nykyään noin 70 eri alan yritystä.
Modernit ja monipuoliset tilat hyvien kulkuyhteyksien varrella!
Kohdetiedot
Sijainti
Katuosoite: Kumitehtaankatu 5, 04260 Kerava
Kaupunginosa: Ali-Kerava
Ympäristö: Ali-Keravan yritysalue
Rakennus/huoneisto
Pinta-alat: 280 m²
Huoneistoselitelmä: Toimistotila
Hissi: On
Kerros: 1/4
Kunto, varusteet ja palvelut: Erinomainen kunto, toimistohuoneita ja wc tila. Savion juna-asema kulkee aivan vierestä
Pysäköinti: Rakennuksen parkkipaikalla on paikoitustilaa (ilmaisia ja maksullisia)
Vuokrahinta ja kulut
Vuokra: 14 €/m²/kk + alv
Sähkömaksut: Määräytyy neliöpohjaisesti (vuonna 2023 0,46 €/m²) Huom! poikkeuksellisen suuren sähkön käyttö erikseen sovitusti.
Vesimaksu: Sisältyy vuokraan (normaali käyttö)
Lämmitys: Sisältyy vuokraan
Jätehuolto: Sisältyy vuokraan (normaali määrä – ei tuotannosta aiheutuvaa prosessijätettä)
Muut kulut: Vuokralainen vastaa omasta jätehuollosta
Muut ehdot: Minimisopimuskausi 12 kk, vakuus 3 kk:n vuokraa vastaava summa, luottotietojen on oltava kunnossa
Vapautuu
Heti
Kerros
1 / 4
Huoneiden lukumäärä
20
Näkyvällä paikalla
Lastauslaituri
Ota yhteyttä
Tilat.fi
KTM, LKV Antti Soivio
Näytä puhelinnumero
0400 446 553
OTM, LKV Riikka Tuominen
Näytä puhelinnumero
0400 551 790
KTM, LKV Maria-Sofia Puhakka
Näytä puhelinnumero
0400-150330
Yrityksen virallinen nimi: LKV Toimitilaa.fi Oy. Toimitilojen välitykseen erikoistunut yritys.
http://www.tilat.fiPyydä lisätietoa
