Vuokrataan toimistotilat - Helsinki
Vuorikatu 14, Kluuvi, 00100 Helsinki #10796461
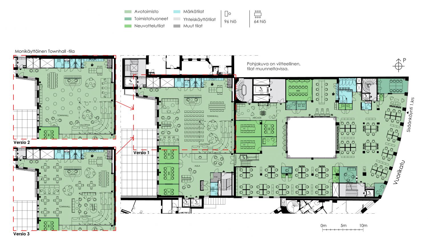
Monien mahdollisuuksien monitilatoimisto räätälöidään toiveiden ja käyttötarkoituksen mukaan.
Osoite
Vuorikatu 14, 00100 Helsinki
Tilatyyppi
Toimistotilaa
1438 m2
Pohjapiirros
Kiinteistö
Halosen talona tunnettu toimisto- ja liikekiinteistö sijaitsee Helsingin ydinkeskustassa. Kiinteistölle on erinomaiset julkisen liikenteen yhteydet.
Keskeinen sijainti takaa myös sen, että kaikki keskustan kaupalliset ja yrityspalvelut ovat lyhyen kävelymatkan etäisyydellä ja asiakasvirrat alueella ovat vertaansa vailla.
Vuonna 1927 valmistunut kiinteistö on saneerattu 2000-luvun alussa nykyaikaisia tarpeita palvelevaksi toimisto- ja liikekiinteistöksi. Katutasossa on liiketiloja ja ylemmissä kerroksissa toimistotilaa. Tilat ovat helposti muunneltavissa yrityskohtaisesti. Fennia-korttelin ytimessä sijaitseva kaikille avoin ravintola-alue, Ruoka & Mat tarjoaa viihtyisät puitteet ja monipuoliset ravintolat kohtaamisille kaupungin keskellä. Halonen sopii loistavasti hyviä julkisen liikenteen kulkuyhteyksiä ja keskustan palvelutarjontaa arvostavalle yritykselle.
Kaikille Fennia-korttelin kiinteistöille on myönnetty BREEAM In-Use Excellent -tason ympäristösertifikaatti ja koko kortteli toimii 100 % päästöttömällä energialla, kuten tuulisähköllä ja uusiutuvalla kaukolämmöllä.
Keskeinen sijainti takaa myös sen, että kaikki keskustan kaupalliset ja yrityspalvelut ovat lyhyen kävelymatkan etäisyydellä ja asiakasvirrat alueella ovat vertaansa vailla.
Vuonna 1927 valmistunut kiinteistö on saneerattu 2000-luvun alussa nykyaikaisia tarpeita palvelevaksi toimisto- ja liikekiinteistöksi. Katutasossa on liiketiloja ja ylemmissä kerroksissa toimistotilaa. Tilat ovat helposti muunneltavissa yrityskohtaisesti. Fennia-korttelin ytimessä sijaitseva kaikille avoin ravintola-alue, Ruoka & Mat tarjoaa viihtyisät puitteet ja monipuoliset ravintolat kohtaamisille kaupungin keskellä. Halonen sopii loistavasti hyviä julkisen liikenteen kulkuyhteyksiä ja keskustan palvelutarjontaa arvostavalle yritykselle.
Kaikille Fennia-korttelin kiinteistöille on myönnetty BREEAM In-Use Excellent -tason ympäristösertifikaatti ja koko kortteli toimii 100 % päästöttömällä energialla, kuten tuulisähköllä ja uusiutuvalla kaukolämmöllä.
Sijainti
Kiinteistön tuntumassa sijaitsevat Rautatieasema sekä Rautatientorin linja-autoasema takaavat erinomaisen julkisen liikenteen saavutettavuuden, jota täydentää korttelin alapuolella sijaitseva Helsingin yliopiston metroasema.
Pysäköinti
Autopaikat P-Eliel ja P-Kluuvi
Palvelut
Fennia-korttelissa on mittava määrä ravintola- ja muita viihdepalveluita. Keskeinen sijainti ydinkeskustassa takaa sen, että kaikki kaupalliset ja yrityspalvelut sijaitsevat lyhyen kävelymatkan etäisyydellä. Työmatkapyöräilijöita varten löytyy pyörävarasto sekä sosiaalitilat.
Kulkuyhteydet
Lähimmälle bussipysäkille 200 m
Lähimmälle juna-asemalle 550 m
Lähimmälle metroasemalle 150 m
Lähimmälle raitiovaunupysäkille 80 m
Lentokentälle 25 min
Lähimmälle juna-asemalle 550 m
Lähimmälle metroasemalle 150 m
Lähimmälle raitiovaunupysäkille 80 m
Lentokentälle 25 min
Vapautuu
Kysy
Rakennusvuosi
1927
Kerros
2
Energiatehokkuusluokka
B2018 (liiketilat) C2018 (toimistot)
Ympäristöluokitus
BREEAM In-Use Excellent,GRESB Global Sector Leader 2025
Ota yhteyttä
Sponda Oy
Yrjönkatu 29C, 00100 Helsinki
Näytä puhelinnumero
020 43131
Janika Tikkakoski
Leasing Manager
Näytä puhelinnumero
+358 40 589 2752
Sirpa Vuorimaa
Director, Retail
Näytä puhelinnumero
+358 40 7654 222
Sponda Oy
https://www.sponda.fiPyydä lisätietoa
