Vuokrataan liiketilat - Kuopio

Vuorikatu 22, 70100 Kuopio #10796347

Upea sijainti Kuopion ydinkeskustassa!

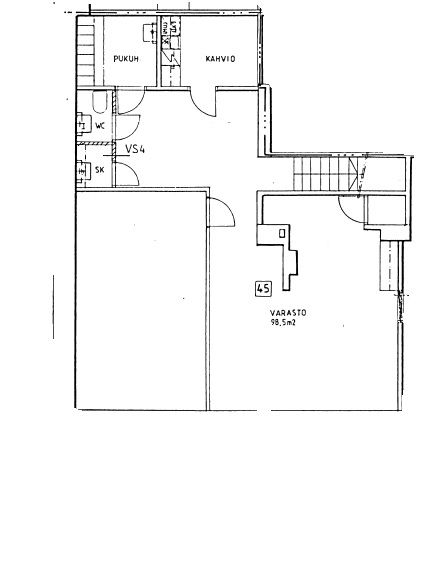
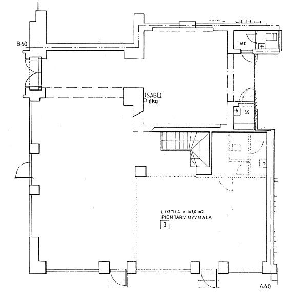
Hienolla paikalla kirkkoa vastapäätä vapaa katutason kulmahuoneisto. Myymälätilaa on 163 m2 ja alakerrassa varasto- ja sosiaalitiloja 111 m2.

Tule tutustumaan tiloihin ja suunnittelemaan, kuinka voisit tarjota yrityksesi asiakkaille palveluitasi tässä upeassa rakennuksessa ja erinomaisella sijainnilla. Onpa liikeideasi sitten kahvila, coctailbaari tai viihtyisä kohtaamispaikka kaikkine vivahteineen, niin puitteet olisivat erinomaiset tässä kahteen suuntaan avautuvassa kulmahuoneistossa.

Tila ei sovellu sellaisenaan ruokaravintolaksi, yhtiössä ei ole rasvakanavaa eikä tilassa rasvanerotuskaivoa. Vuokralaisen tulee hankkia puuttuvat järjestelmät, kalusteet ja laitteet sekä huolehtia tarvittavasta määrästä vesi- ja sähköpisteitä. Toimintaa varten tehtävät muutokset jäävät vuokralaisen kustannukseksi. Vuokralaisen tulee esittää kirjallisesti tilaan kohdistuva toimintasuunnitelma vuokratarjouksen jättämisen yhteydessä.

Vuokrasopimus tehdään arvonlisäverollisena eli vuokraan lisätään kulloinkin voimassa oleva arvonlisävero.

Ota yhteyttä, niin sovitaan esittely!

Osoite
Vuorikatu 22, 70100 Kuopio
Tilatyyppi
Liiketilaa
274 m2
Tilajako
Myymälätilaa 163 m2 Alakerrassa varasto 111 m2
Vuokra
Kysy hintaa
Vapautuu
Heti
Rakennusvuosi
1932
Ota yhteyttä

Lumo Kodit Oy

Pyydä lisätietoa

Kohteesta Vuorikatu 22, Kuopio

 

B2B palvelut

LASTAUSRATKAISUT

Mainos
Lastauksien ratkaisut tehokkaammin ja turvallisemmin

MARKKINOINTI

Tavoita oikea kohderyhmä!