Vuokrataan - Tampere

Annalankatu 8, 33710 Tampere #10796346

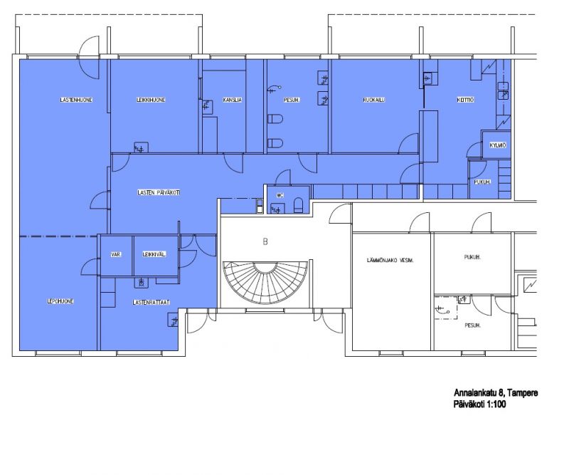
Vuokralle tarjotaan toimila, joka sopii päiväkoti- tai yhdistystoimintaan. Sisätilat ovat kooltaan 159m2, aidattu piha- ja leikkialue.

Toimitilassa on ollut päiväkotitoimintaa jo lähes kymmenen vuoden ajan.

Osoite
Annalankatu 8, 33710 Tampere
Pohjapiirros
Vuokra
Kysy hintaa
 
Vuokraan sisältyy lämpö
Vapautuu
Heti
Rakennusvuosi
1974
Ota yhteyttä

Lumo Kodit Oy

Pyydä lisätietoa

Kohteesta Annalankatu 8, Tampere

 

B2B palvelut

LASTAUSRATKAISUT

Mainos
Lastauksien ratkaisut tehokkaammin ja turvallisemmin

MARKKINOINTI

Tavoita oikea kohderyhmä!