Vuokrataan tuotantotilat, varastotilat, työtilat - Kuopio
Hakekatu 2, 70800 Kuopio #10796320
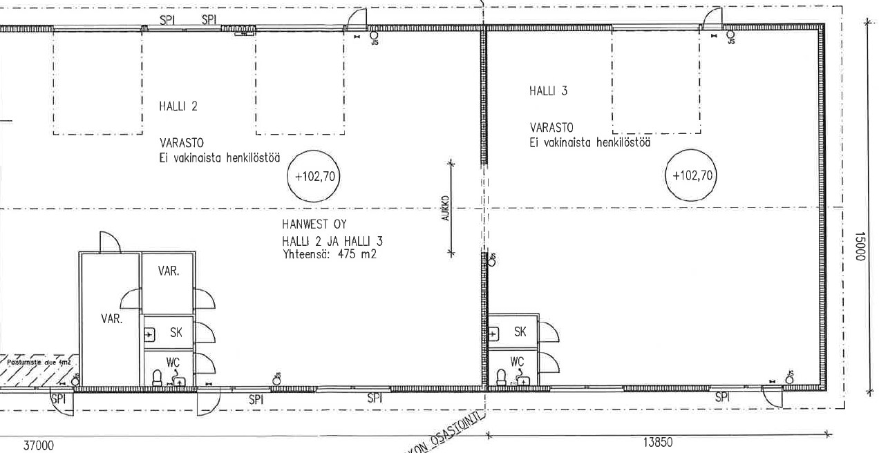
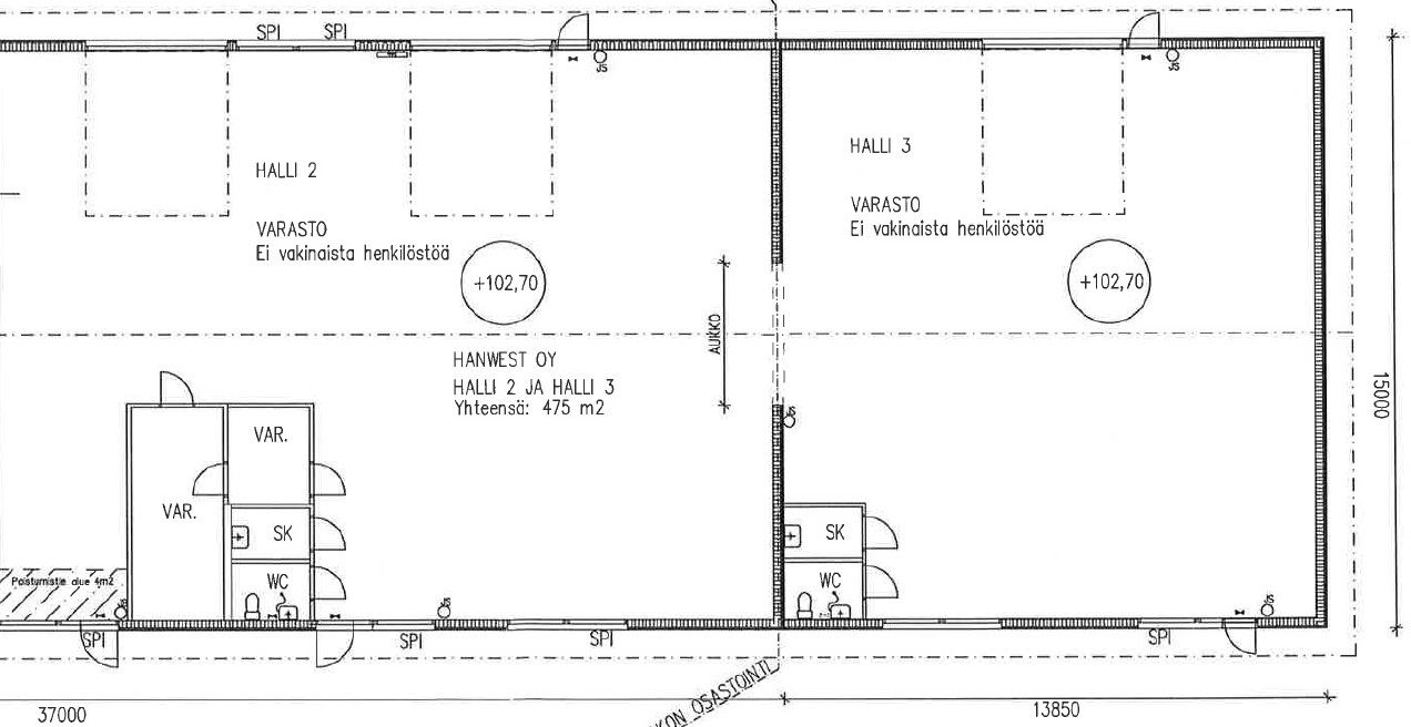
Vuokrataan moneen käyttöön taipuvaa hallitilaa Kuopiossa Kylmämäen teollisuusalueella. Tila soveltuu esimerkiksi harrasteporukoille ajoneuvojen rassaukseen. Tästä sijainnista pääset moottoritielle minuuteissa, ja myös keskustaan alle vartissa. Hallitila on avara ja siistissä kunnossa. Nosto-ovet 2 kpl (3,6 x 3,4 m ja 3 x 3 m), käyttäjä voi jakaa tilan kahteen lohkoon käytön mukaan. Tilassa myös toimistotila keittiöllä ja wc. Hallin vapaa korkeus noin 3,2 m (iv/valaisinkiskoon), kaukolämpö ja lattiakaivo öljynerotuksella.
Pohjakuvassa tilan merkintä on halli 2.
Katutasossa
Suomen Toimitila-asiantuntijat Oy
Vuorikatu 26 A, 70100 KUOPIO
Näytä puhelinnumero
044 3636 198
Tanja Nylander
