Videoesittely
Vuokrataan toimistotilat - Helsinki
Bulevardi 21, Bulevardi 21 / Albertinkatu 25, Kamppi, 00180 Helsinki #10795573
Laadukasta, edustavaa ja modernia toimistotilaa huippusijainnilla.
Osoite
Bulevardi 21 / Albertinkatu 25, 00180 Helsinki
Tilatyyppi
Toimistotilaa
205 m2
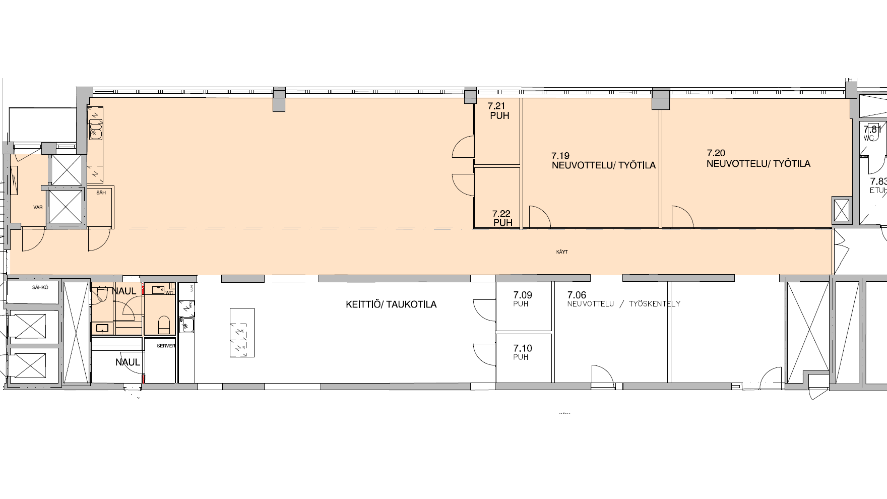
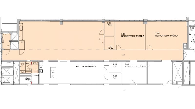
Tilajako
Tilat muokattavissa asiakkaan tarpeiden mukaisesti
Pohjapiirros
Kiinteistö
Bulevardi 21 on edustava toimitilakiinteistö kaupunkitunnelmaa huokuvan puistokadun varrella. Rakennushistoriallisesti arvokkaan kiinteistön sisällä on nykyaikaista toimistotilaa, joka sijaintiinsa yhdistettynä vastaa tämän päivän monipaikkaisen työnteon tarpeisiin. Bulevardi 21 tarjoaa joustavat puitteet jatkuvassa muutoksessa olevalle työelämälle. Jos kaipaat työpäiviisi kaupunkitunnelmaa ja tyylikkäitä tiloja, Bulevardilta voit löytää etsimäsi
Sijainti
Sijainti Albertinkadun ja Bulevardin risteyksessä takaa helpon saavutettavuuden joka suunnasta.
Ympäristö
Bulevardi ei esittelyjä kaipaa. Historiallinen puistokatu houkuttelee varrelleen korkean profiilin toimijoita, luovia toimistoja, putiikkeja, hotelleja sekä ravintoloita. Helsingin merellinen keskusta puistoineen ja kivijalkaliikkeiden reunustamine katuineen on täynnä mahdollisuuksia reitistä riippumatta
Pysäköinti
Lämmin parkkihalli, pyöräparkki
Palvelut
Erittäin suosittu vietnamilaisravintola Lie Mi toimii kohteen kivijalassa. Työmatkapyöräilijöitä ilahduttavat viihtyisät peseytymis- ja pukeutumistilat säilytyslokerikkoineen ja kuivauskaappeineen. Polkupyörät säilyvät turvallisesti lukitulla sisäpihalla tai pysäköintihallissa, mistä löytyy myös polkupyörien
huoltopiste. Ja tietenkin pysäköintipaikkoja myös autoille.
Kiinteistön kellariin avattiin vuonna 2024 uusi kuntosali, joka on vuokralaisten vapaassa käytössä ilman lisäkustannuksia. Kesällä 2025 palvelukattausta parantavat entisestään uusi pelihuone, jossa on mahdollisuus haastaa työtoverit mm. biljardissa, pingiksessä tai dartsissa sekä remontoidulle sisäpihalle aukeava uusi terassi.
huoltopiste. Ja tietenkin pysäköintipaikkoja myös autoille.
Kiinteistön kellariin avattiin vuonna 2024 uusi kuntosali, joka on vuokralaisten vapaassa käytössä ilman lisäkustannuksia. Kesällä 2025 palvelukattausta parantavat entisestään uusi pelihuone, jossa on mahdollisuus haastaa työtoverit mm. biljardissa, pingiksessä tai dartsissa sekä remontoidulle sisäpihalle aukeava uusi terassi.
Kulkuyhteydet
Albertinkadun ja Bulevardin risteyksessä on bussi- ja raitiovaunupysäkkejä lähes ulko-oven vieressä. Lähin metroasema löytyy Kampista noin 600 metrin päästä
Lisätietoa saneerauksista
Vuosina 2017-2021 rakennus on käynyt läpi mittavia muutostöitä. Peruskorjatussa kiinteistössä sekä talotekniikka että tilat ovat erinomaisessa kunnossa, ja toimistot on suunniteltu jaettaviksi sekä muokattavaksi tilankäyttäjän tarpeisiin. Tilojen jäähdytys ja koneellinen tulo- ja poistoilma pitävät ilmanlaadun hyvänä vuodenajasta toiseen. Myös kiinteistön esteettömyyttä parannettiin peruskorjauksen yhteydessä.
Vapautuu
Heti
Rakennusvuosi
1961
Saneerausvuosi
2021
Kerros
7 / 9
Energiatehokkuusluokka
B2018
Ympäristöluokitus
BREEAM In-Use Excellent
Näkyvällä paikalla
Hissi
Liitetiedostot
Ota yhteyttä

NREP Oy
luka.lahtinen@nrep.com, Näytä puhelinnumero 044 2725 755
https://woods-office.com/fi/bulevardi-21/Pyydä lisätietoa